**Standout Features:**
- Expansive plot of nearly 3 acres with vast potential
- Detached property previously used for commercial purposes
- Residential consent granted for development into a spacious home
- Marvelous rural location in the desirable Eden Valley village of Culgaith
- Excellent transport links, close to A66 for easy commuting
- Low crime rate in a peaceful village setting
**Concerns:**
- Requires renovation to bring the property to a modern standard
- Existing infrastructure may need upgrading for optimum use
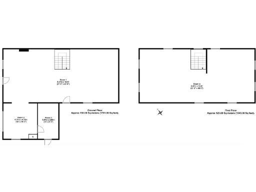
Discover a unique investment opportunity in the heart of scenic Culgaith, where this expansive detached property awaits your creative vision. Spread over just under 3 acres, this site not only offers a firm foundation for a residential retreat, backed by granted planning consent, but also presents options for light industrial use or small business ventures. With easy access to major transport routes and nearby amenities including schools, shops, and leisure facilities, you can enjoy both the tranquility of rural life and the practicality of modern convenience.
While the property requires significant refurbishment, the potential for personalization and enhancement is tremendous. Imagine crafting your dream home within the charming character of this brick building, featuring striking arched windows and surrounded by lush greenery. The sense of community in Culgaith, paired with the low crime rate, makes it an ideal setting for families or anyone seeking peace and security. Opportunities like this are rare—don’t miss your chance to create something truly special in this coveted location.**Viewing strictly by appointment only.**
Plot for sale in Culgaith, CA10 — £300,000 • 1 bed • 1 bath
5 bedroom country house for sale in Thrimby, Penrith, CA10 — £595,000 • 5 bed • 4 bath • 2013 ft²
Leisure facility for sale in Cliburn, Penrith, CA10 — £1,195,000 • 6 bed • 4 bath • 3000 ft²
3 bedroom detached bungalow for sale in Eden Heights, Culgaith, CA10 — £325,000 • 3 bed • 1 bath • 1143 ft²
4 bedroom detached house for sale in The Brook, Culgaith, Penrith, CA10 — £475,000 • 4 bed • 2 bath • 1593 ft²
Land for sale in The Green, Wreay, CA4 — £250,000 • 4 bed • 3 bath










































