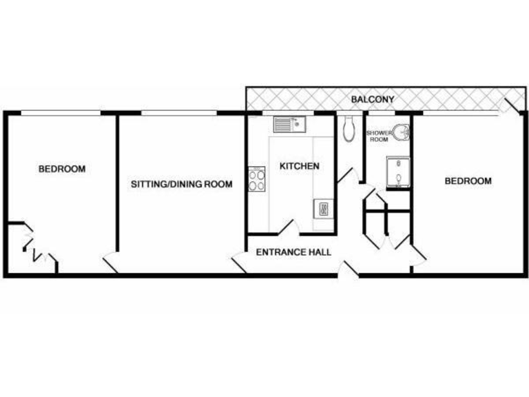
**Key Features:**
- Stunning sea views and balcony
- Two spacious double bedrooms
- Modern shower room with separate WC
- Convenient store room included
- Chain free sale & share of freehold tenure
- Close proximity to Meads high street and Eastbourne town centre
- Average service charge and low crime rate
Discover the charm of this beautifully presented two-bedroom fourth-floor flat, nestled in the desirable Dolphin Court. Spanning 743 square feet, this light-filled apartment boasts breathtaking views of the sea and South Downs, accessible through a charming private balcony. The modernized kitchen includes fitted wall and floor units, enhancing your culinary experience, while the comfortable sitting/dining room creates an inviting space for relaxation and entertainment.
Positioned conveniently near Meads high street, the flat offers excellent amenities, ensuring daily essentials are within easy reach. With the added benefits of double glazing and electric heating, plus the allure of a haven in a serene, affluent neighborhood, this property presents a blend of comfort and potential. While there are modest maintenance fees, the property's chain-free status makes it an attractive option for families, couples, or first-time buyers looking for a coastal retreat. Act quickly; this vibrant space is set to be in high demand!
3 bedroom apartment for sale in Cliff Road, Meads, Eastbourne, BN20 — £335,000 • 3 bed • 1 bath • 961 ft²
3 bedroom flat for sale in Cliff Road, Eastbourne, BN20 7XE, BN20 — £340,000 • 3 bed • 1 bath • 905 ft²
3 bedroom ground floor flat for sale in Cliff Road, Meads, Eastbourne, East Sussex, BN20 — £350,000 • 3 bed • 1 bath • 879 ft²
3 bedroom apartment for sale in Cliff Road, Eastbourne, BN20 — £300,000 • 3 bed • 1 bath • 923 ft²
2 bedroom apartment for sale in Cliff Road, Eastbourne, BN20 — £355,000 • 2 bed • 1 bath • 762 ft²
2 bedroom apartment for sale in Cliff Road, Meads, Eastbourne, East Sussex, BN20 — £355,000 • 2 bed • 1 bath • 762 ft²






































































