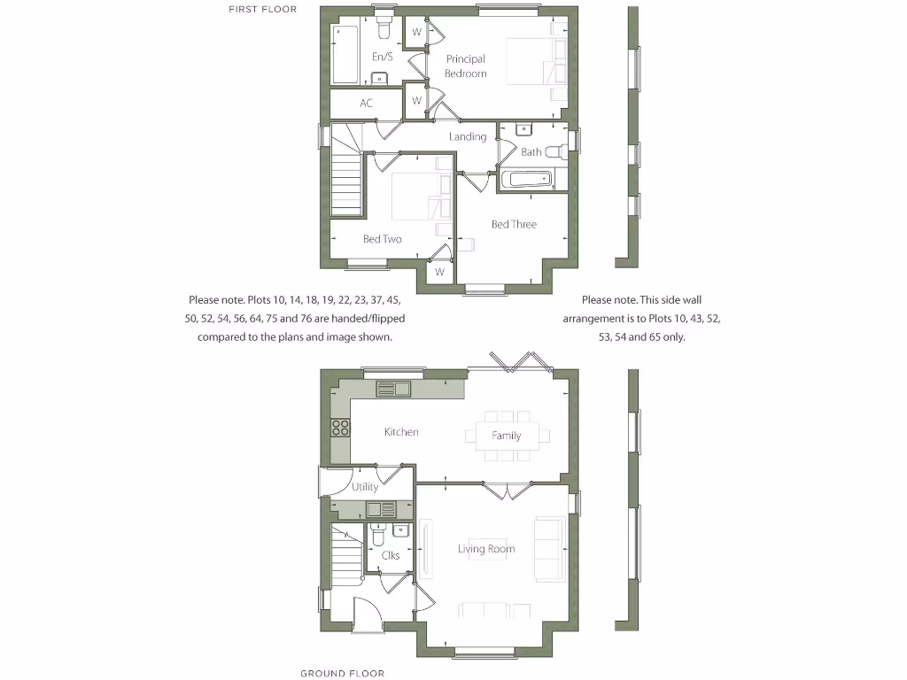
- Three bedrooms with master en-suite and contemporary family bathroom
- Large rear garden and substantial plot size for outdoor living
- Driveway for two cars plus single garage
- Solar panels and air source heat pump for energy efficiency
- High-spec finishes throughout; open-plan kitchen/family room with bi-folds
- 10-year structural warranty; new build consumer protections
- Management charge £352/year; pumping station services communal drainage
- Slow broadband and average mobile signal in the area
Plot 38, The Paris at Chattowood is a three-bedroom detached new build designed for modern family living. The house offers a generous rear garden, driveway for two cars plus a single garage, and energy-saving features including solar panels and an air source heat pump. Interiors are finished to a high specification with an open-plan kitchen/family room and bi-fold doors to the garden.
The layout works well for family life: a dual-aspect living room, useful ground-floor cloakroom, separate utility room and a first-floor master with en‑suite. Buyers benefit from a 10-year structural warranty and a development management arrangement that covers communal upkeep and the on-site pumping station.
Practical points to note: occupiers will pay an annual management charge of £352 for communal maintenance and the pumping station. Broadband speeds in the area are reported as slow and mobile signal average. Some specification choices and brick colours are subject to build stage and availability; photos are of the show home and some floorplans are handed (mirrored) versions.
Situated in the sought-after village of Elmstead Market, the development is close to local shops, good primary schools and easy road links to Colchester, the coast and nearby mainline stations. For families seeking a contemporary, energy-efficient new home with a large garden in a peaceful village setting, Plot 38 offers strong appeal with transparent practical considerations.







































































