NR14 7TT - 3 bedroom semidetached house for sale in Framingham Crescen…

View on Property Piper

3 bedroom semi-detached house for sale in Framingham Crescent, Poringland, Norwich, NR14

Summary - 26, Framingham Crescent, Poringland, NORWICH NR14 7TT

3 bed 2 bath Semi-Detached

Move-in ready three-bedroom home on a large private plot with garage and no onward chain.
No chain — ready for a quick move
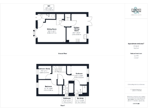
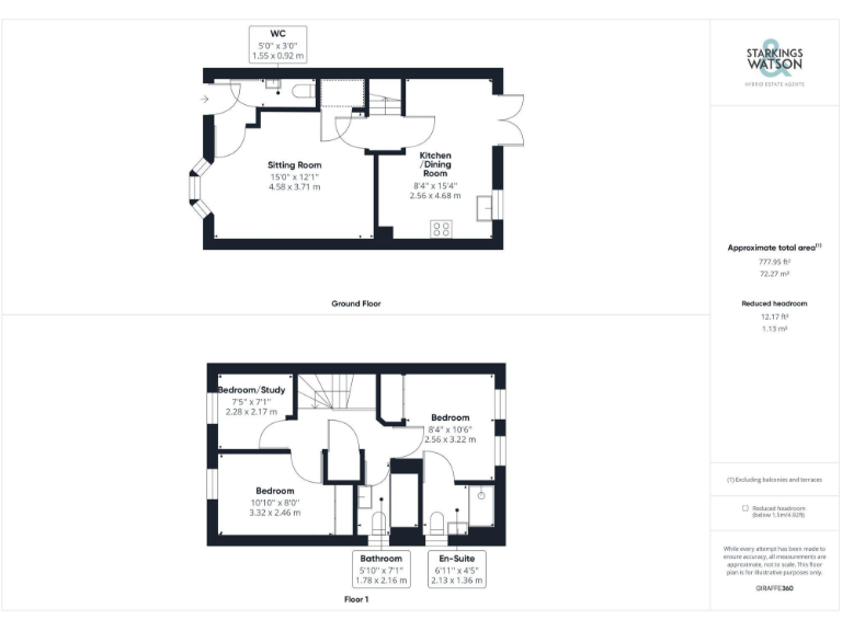
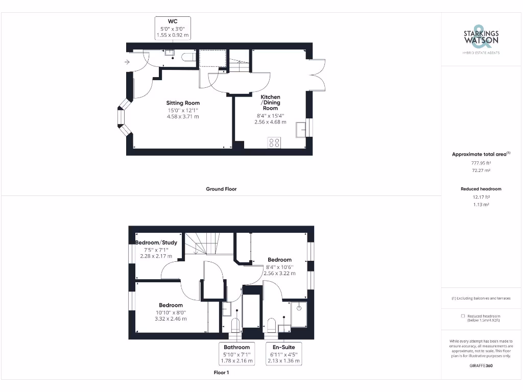
A modern three-bedroom semi-detached home built in 2016, presented in move-in condition and offered with no onward chain. The house sits on an unusually large plot with private, landscaped gardens and a non-overlooked rear aspect that gives a rare feeling of privacy for a recent build. The ground floor is practical and contemporary — bay-fronted sitting room with Amtico flooring, cloakroom, and a wide open-plan kitchen/dining room with Corian surfaces and integrated appliances.

The first floor provides three bedrooms (two with built-in wardrobes) and a principal en suite, plus a family bathroom. Practical storage is good with under-stairs and an airing cupboard; central heating, uPVC double glazing and an EPC B rating help keep running costs reasonable. The oversized detached garage and tandem driveway provide substantial parking and storage for a property of this size.

Considerations: the internal living area is compact for a three-bedroom house (overall size described as small), and the tandem driveway can be restrictive for multiple users or larger vehicles. Despite the modest internal footprint, the combination of a huge plot, private garden and strong local amenities — outstanding and good schools within walking distance, fast broadband and very low crime — makes this a strong family-first purchase or a comfortable long-term home for buyers wanting outdoor space and privacy.

Property Details

Brochure Descriptions

Image Descriptions

Floorplan Description

Rooms

Textual Property Features

Target Audience

AI Tags

Detected Visual Features

EPC Details

Nearby Schools

Nearest Bars And Restaurants

,,,,}

Nearest General Shops

,,}

Nearest Grocery shops

,,}

Nearest Supermarkets

,,}

Nearest Religious buildings

,,}

Nearest Medical buildings

,,,}

Nearest Leisure Facilities

,,,,}

Nearest Tourist attractions

,,}

Nearest Train stations

,,,,}

Nearest Bus stations and stops

,,,,}

Nearest Hotels

,,}

Tags

Local Market Stats

Similar Properties

Meta

High Res Images

Compatible Images

Low res Images

Thumbnails

Raw Images

High Res Floorplan Images

Compatible Floorplan Images

Low res Floorplan Images

FloorplanImages Thumbnail

Raw Floorplan Images