**Standout Features:**
- Spacious five-bedroom terraced house
- Off-road parking and low-maintenance landscaped garden
- Numerous original period features alongside modern updates
- Expansive open-plan living space with bi-fold doors to the garden
- Quiet location, mere minutes from local amenities
**Concise Summary:**
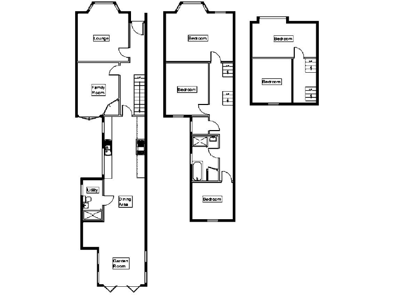
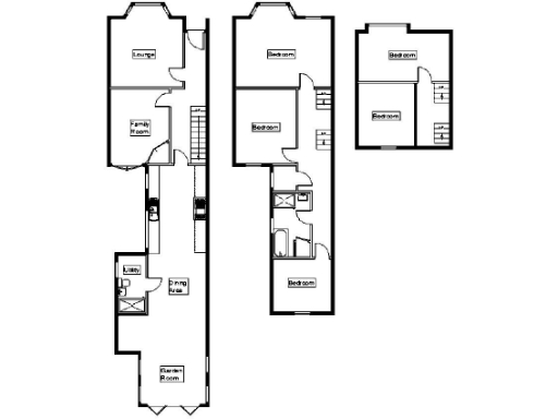
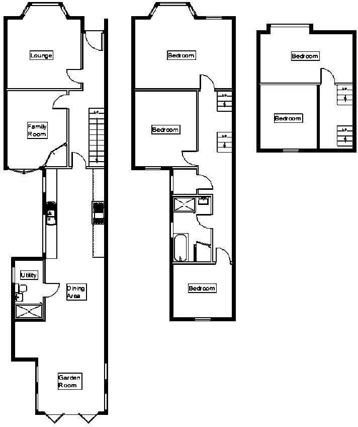
Discover this enchanting five-bedroom terraced house on Ranelagh Road, nestled in the heart of Felixstowe. This period property combines elegant original features, such as high ceilings, ornate fireplaces, and intricate coving, with modern comforts, including a stunning open-plan living area that seamlessly connects to a beautifully landscaped garden—an ideal space for alfresco dining. Each bedroom boasts generous proportions, creating a comfortable family home.
While the property shines with character and convenience, its vintage charm comes with the need for occasional upkeep typical of older homes. Notably, the off-road parking and inviting garden set it apart, making this a perfect option for families and investors alike. With its excellent location just minutes from Hamilton Road and access to quality local schools, this property is poised to provide a cozy sanctuary with room for future renovations. Don't miss the chance to own a piece of Felixstowe's heritage—schedule a viewing today to experience this unique home for yourself!
4 bedroom terraced house for sale in Ranelagh Road, Felixstowe, IP11 — £400,000 • 4 bed • 2 bath • 1096 ft²
5 bedroom semi-detached house for sale in Cobbold Road, Felixstowe, IP11 — £410,000 • 5 bed • 2 bath • 1664 ft²
6 bedroom semi-detached house for sale in Leopold Road, Felixstowe, IP11 — £560,000 • 6 bed • 2 bath • 2132 ft²
4 bedroom end of terrace house for sale in Gainsborough Road, Felixstowe, IP11 — £375,000 • 4 bed • 1 bath • 1442 ft²
5 bedroom semi-detached house for sale in Quilter Road, Felixstowe, IP11 — £525,000 • 5 bed • 2 bath • 2185 ft²
5 bedroom end of terrace house for sale in Manning Road, Felixstowe, IP11 — £380,000 • 5 bed • 2 bath • 1959 ft²


























































































































