Well-located one-bedroom terrace with garden, parking and strong rental potential.
Chain-free freehold one-bedroom terraced home
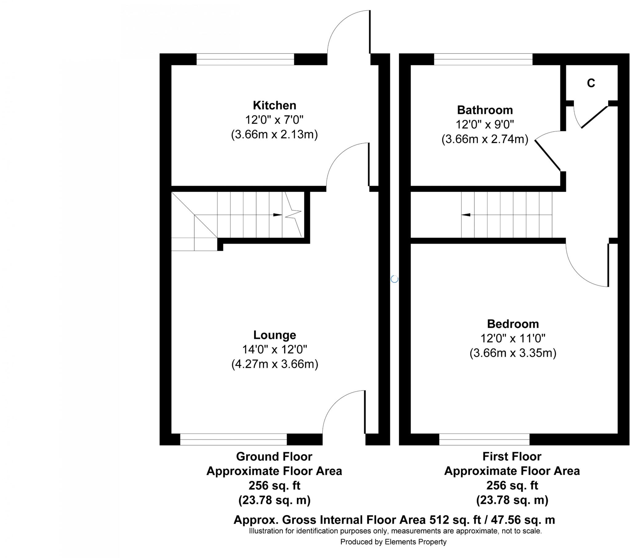
This chain-free, freehold one-bedroom terraced house in Hedge End offers an efficient, low-maintenance home with private outdoor space and off-street parking. At about 512 sq ft the layout includes a generous lounge, kitchen opening to a private rear garden, a double bedroom and a modern bathroom — attractive for a first-time buyer or a buy-to-let investor seeking straightforward tenancy.
The property sits in a well-served area with fast broadband, excellent mobile signal and nearby amenities including shops, healthcare, and frequent bus links. Local schools are rated Good and include a top 10% primary, supporting family convenience despite the modest size. The small, landscaped garden and front parking add everyday practicality seldom found on similar terraces.
Financially this home is compact but viable: rent evidence suggests around £995 pcm and strong local tenant demand, making it a realistic investment with minimal management. For owner-occupiers it provides a manageable starter home with low running complexity and no upward chain.
Limitations are straightforward and important to note: the house is small (512 sq ft) with a small plot, so storage and entertaining space are restricted. As a one-bedroom terrace it offers limited long-term flexibility for growing households. Crime levels are average and the property is typical of contemporary terraced construction, so buyers seeking period character or large gardens should look elsewhere.
1 bedroom end of terrace house for sale in Stroudley Way, Hedge End, Southampton, Hampshire, SO30 — £180,000 • 1 bed • 1 bath • 479 ft²
2 bedroom terraced house for sale in Beattie Rise, Hedge End, SO30 — £290,000 • 2 bed • 1 bath • 474 ft²
1 bedroom end of terrace house for sale in Haileybury Gardens, Hedge End, Southampton, SO30 — £210,000 • 1 bed • 1 bath • 431 ft²
2 bedroom terraced house for sale in The Foxgloves, Hedge End, SO30 — £230,000 • 2 bed • 1 bath • 580 ft²
1 bedroom terraced house for sale in Cudworth Mead, Hedge End, SO30 — £190,000 • 1 bed • 1 bath • 445 ft²
2 bedroom terraced house for sale in Bedford Close, Hedge End, Southampton, SO30 — £230,000 • 2 bed • 1 bath • 558 ft²


































