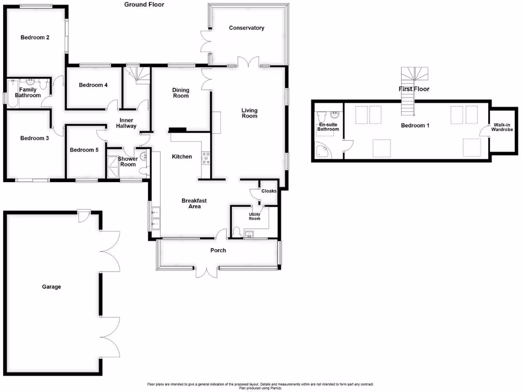
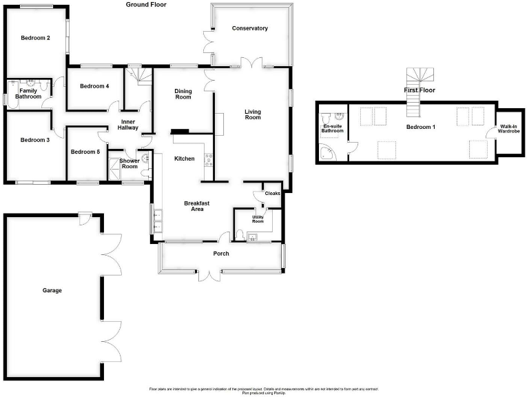
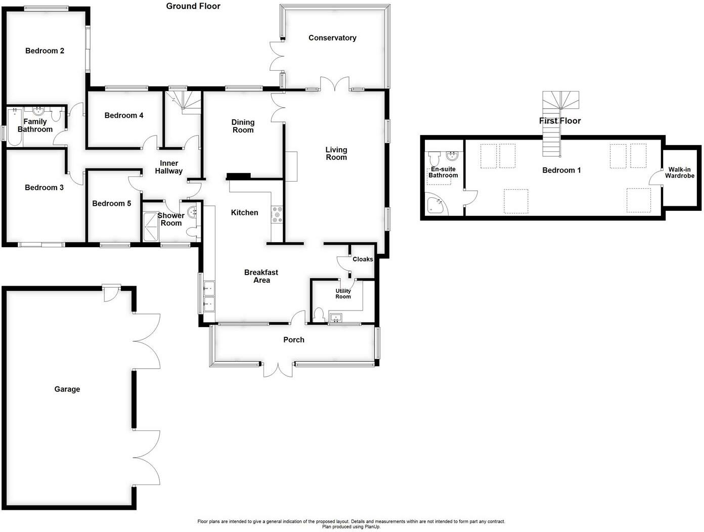
Five-bedroom bungalow on 0.78 acres with annexe, garage and excellent broadband—ideal for rural family living.
Five bedrooms plus sizeable timber annexe/studio
Set back down a long private drive, this five-bedroom detached bungalow sits on about 0.78 acres of mature grounds in a quiet Warwickshire hamlet. The main house offers generous reception rooms including a large living room with multi-fuel stove, a conservatory that opens to the garden, and an open-plan kitchen/breakfast area — all arranged for practical family living and entertaining.
The plot is the standout feature: very large lawned gardens, mature trees, several outbuildings, a substantial garage with two vehicle doors and power, plus a timber annexe suitable for a home studio, gym or guest space. Broadband and mobile signal are excellent, and the property has mains drainage and water connected.
Built in the 1930s–1940s with solid brick walls and LPG-fired boiler and radiators, the house will suit buyers who want character and space but are willing to invest in modernisation. The property likely needs insulation upgrades and some internal updating; double glazing is installed but the installation date is unknown. Energy and running costs may be higher than newer homes due to solid-wall construction and LPG heating.
This home will appeal to families seeking countryside seclusion with good access to local schools and nearby towns, buyers wanting an on-site annexe or workspace, and anyone looking for a large garden and equestrian or recreational potential. Note the setting is quiet and remote — good for privacy but less convenient for frequent urban commuting. Crime in the local area is reported above average, which should be considered alongside the rural advantages.
7 bedroom detached house for sale in Kings Lane, Stratford-upon-Avon, CV37 — £2,850,000 • 7 bed • 5 bath • 5200 ft²
5 bedroom detached house for sale in Church Road, Wilmcote, Stratford-Upon-Avon, CV37 — £975,000 • 5 bed • 1 bath • 3455 ft²
4 bedroom detached house for sale in Langley, Stratford-upon-Avon, CV37 — £1,350,000 • 4 bed • 3 bath • 2184 ft²
5 bedroom semi-detached house for sale in Ardens Grafton, Alcester, B49 — £625,000 • 5 bed • 3 bath • 2236 ft²
3 bedroom detached house for sale in Wyre Lane, Long Marston, CV37 — £1,200,000 • 3 bed • 3 bath • 2925 ft²
6 bedroom country house for sale in Preston Fields Lane, Preston Bagot, Warwickshire, B95 — £4,000,000 • 6 bed • 5 bath • 9281 ft²










































































































































