CR7 8LD - 3 bed spacious end terrace in The Retreat, CR7 8LD

View on Property Piper

3 bedroom end of terrace house for sale in The Retreat, Thornton Heath, Surrey, CR7

Summary - 3 THE RETREAT THORNTON HEATH CR7 8LD

3 bed 1 bath End of Terrace

Lifetime-lease saving opportunity for over-60s seeking low-maintenance living.
Available Home for Life Lifetime Lease for buyers aged 60+
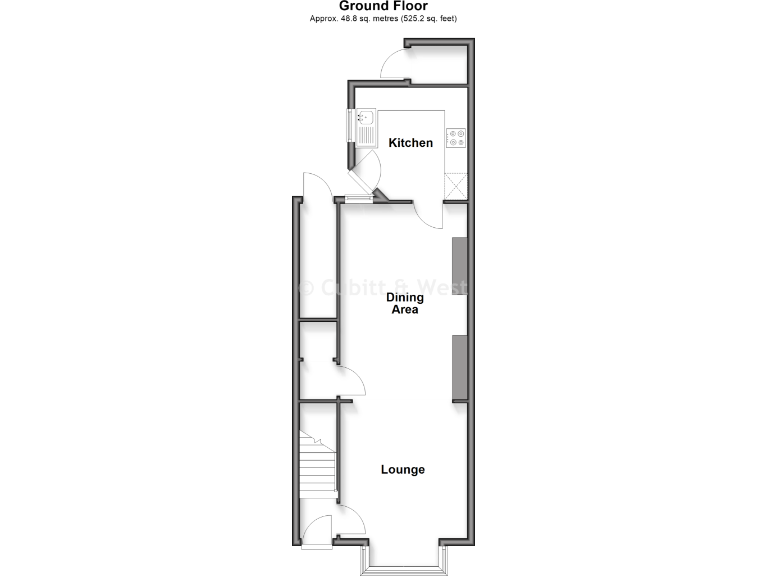
This end-of-terrace home offers spacious living across approximately 912 sqft with a long lounge/day area and a private rear garden. Built 2007–2011, the property has double glazing and gas central heating, and includes a garage for off-street parking.

The Home for Life Lifetime Lease option from Homewise is available to buyers aged 60+, with a guide Lifetime Lease price of £314,000 (market value £475,000). The plan lets eligible purchasers buy a share of the property (up to 50%) to reduce upfront cost; actual price depends on age and circumstances.

Accommodation is flexible: three principal bedrooms with an additional fourth accessed via bedroom 1, a single family bathroom and a kitchen. The plot is small and the front and rear gardens are modest but private, suitable for outdoor seating and low-maintenance planting.

Notable negatives are straightforward: the exterior shows wear and peeling paint and will need maintenance; the area is flagged as deprived with above-average crime levels. The bathroom is a single, modest-sized facility and some internal decor and finishes are dated, offering clear scope for refurbishment and value improvement.

Property Details

Image Descriptions

Floorplan Description

Rooms

Textual Property Features

Target Audience

AI Tags

Detected Visual Features

EPC Details

Nearby Schools

Nearest Bars And Restaurants

,,,,}

Nearest General Shops

,,}

Nearest Grocery shops

,,}

Nearest Supermarkets

,,}

Nearest Religious buildings

,,}

Nearest Medical buildings

,,,}

Nearest Airports

,,}

Nearest Leisure Facilities

,,,,}

Nearest Tourist attractions

,,}

Nearest Train stations

,,,,}

Nearest Bus stations and stops

,,,,}

Nearest Hotels

,,}

Tags

Local Market Stats

AirBnB Data

Similar Properties

Meta

High Res Images

Compatible Images

Low res Images

Thumbnails

Raw Images

High Res Floorplan Images

Compatible Floorplan Images

Low res Floorplan Images

FloorplanImages Thumbnail

Raw Floorplan Images