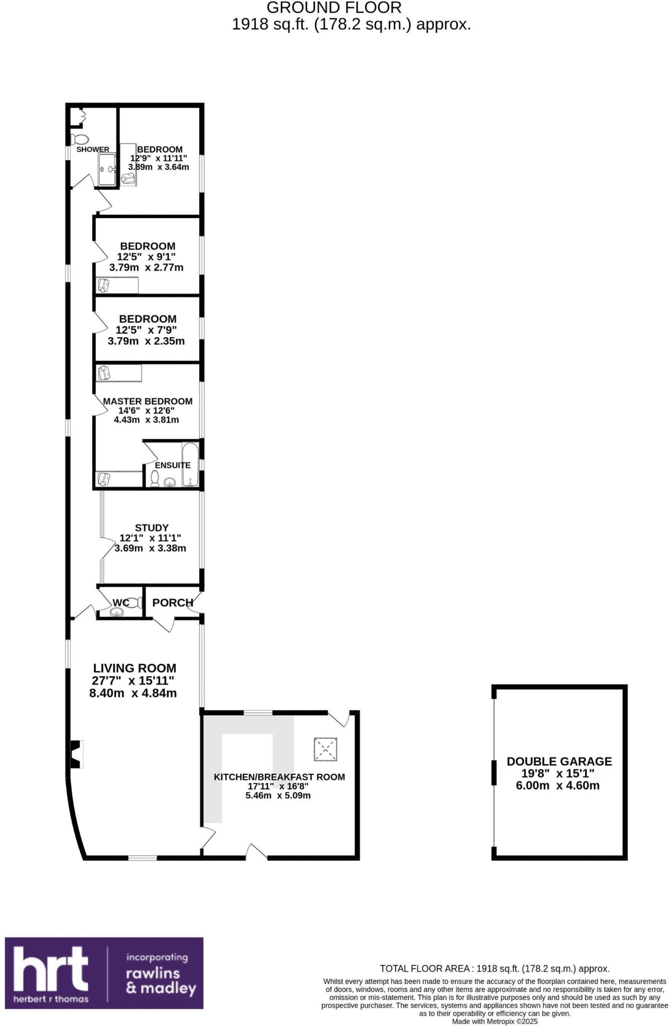
Spacious single-storey home with large covered patio and double garage.
Four bedrooms including principal suite with fitted wardrobes and en-suite
Set in the peaceful hamlet of Talygarn, this single-storey barn conversion blends period character with practical family living. Vaulted ceilings, exposed stone walls and timber beams give the principal reception room a dramatic, welcoming feel, while the kitchen is well equipped with AEG appliances and plenty of workspace for everyday cooking and entertaining.
Four bedrooms include a principal suite with fitted wardrobes and an en-suite, plus a versatile office that opens onto the courtyard. The property’s outdoor spaces are a major asset: a private 85m2 patio beneath a bespoke steel-framed veranda provides year-round outdoor living, while a stream-side boundary and open-field outlook deliver real rural privacy. A detached double garage and extensive gravel driveway offer ample parking and storage.
Buyers should note a few practical points: heating is oil-fired via boiler and radiators, the original granite walls are presumed uninsulated, and broadband speeds are slow. Council tax is described as quite expensive and the wider locality appears to have high levels of deprivation despite the peaceful setting. These factors affect running costs and suitability for homeworking.
Overall this is a well-presented rural conversion for families seeking characterful, low-maintenance single-storey living with strong outdoor amenities and parking. It will suit buyers who prioritise countryside privacy and character over immediate modern energy performance or high-speed connectivity.
5 bedroom house for sale in St Athan Road, Flemingston, Barry, CF62 — £950,000 • 5 bed • 4 bath • 2767 ft²
4 bedroom barn conversion for sale in Higher End, St. Athan, CF62 — £499,500 • 4 bed • 2 bath • 1884 ft²
4 bedroom barn conversion for sale in Croffta Lane, Groesfaen, Pontyclun, CF72 — £585,000 • 4 bed • 2 bath • 1914 ft²
3 bedroom barn conversion for sale in Court Farm Granary, Llansannor, Cowbridge, CF71 7RX, CF71 — £629,950 • 3 bed • 2 bath • 2397 ft²
5 bedroom detached house for sale in Barn at Gadairwen House, Peterston Road, Groesfaen CF72 8NU, CF72 — £750,000 • 5 bed • 2 bath • 3208 ft²
4 bedroom barn conversion for sale in Llantrithyd, Near Cowbridge, Vale of Glamorga, CF71 7UB, CF71 — £1,300,000 • 4 bed • 4 bath • 2668 ft²














































































































