SG18 0DY - 4 bed spacious detached home in Banks Road, SG18 0DY

View on Property Piper

4 bedroom detached house for sale in Banks Road, Biggleswade, Bedfordshire, SG18

Summary - 17 BANKS ROAD BIGGLESWADE SG18 0DY

4 bed 2 bath Detached

Chain-free four double bedroom detached house with annexe potential and large garden..
Four double bedrooms, recently converted garage annexe with separate entrance
This spacious four-double-bedroom detached home sits 0.7 miles from Biggleswade station and town centre, offering practical family living with generous outdoor space. The house benefits from a recently converted garage with its own entrance, creating clear annexe or home-office potential, plus a long 90ft+ rear garden with insulated, powered summer house and shed.

The property already has planning permission granted and works underway for a full-width rear extension and a double brick-built car port with additional driveway (drop kerb in place). The current owners have updated several services including a newly fitted combination boiler (2024) and a valid EICR (2025), reducing immediate maintenance concerns for incoming buyers.

Notable points to check: the EPC is rated D (67) and, while well presented, parts of the house reflect mid-20th-century construction and will suit buyers comfortable with continued improvement or finishing works. Planning being active means ongoing site works and associated disruptions may occur; buyers should review the planning documentation and current status before offer.

Chain-free and offered by motivated sellers, this home is well placed for families seeking good transport links, schooling and outdoor space, while also appealing to buyers wanting an annexe, extended footprint or parking enhancement at the rear.

Property Details

Image Descriptions

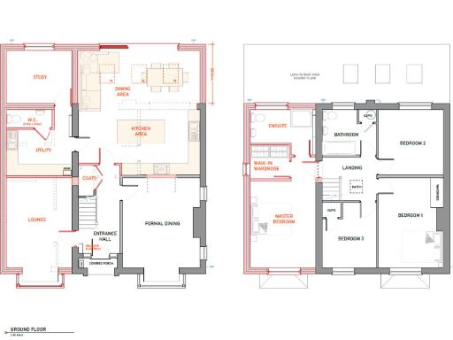
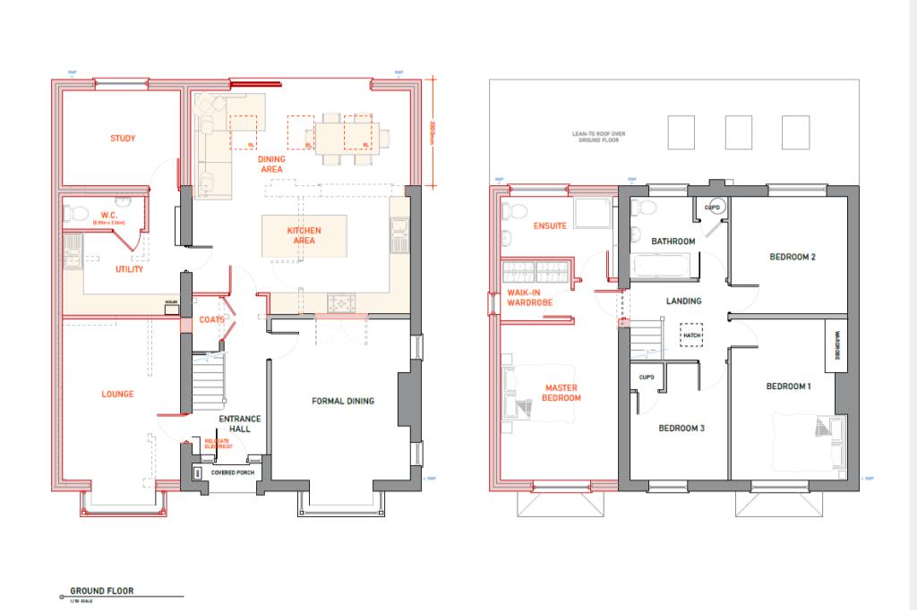
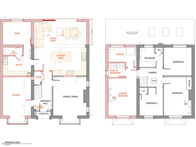
Floorplan Description

Rooms

Textual Property Features

Target Audience

AI Tags

Detected Visual Features

EPC Details

Nearby Schools

Nearest Bars And Restaurants

,,,,}

Nearest General Shops

,,}

Nearest Grocery shops

,,}

Nearest Supermarkets

,,}

Nearest Religious buildings

,,}

Nearest Medical buildings

,,,}

Nearest Airports

,}

Nearest Leisure Facilities

,,,,}

Nearest Tourist attractions

,,}

Nearest Train stations

,,,,}

Nearest Bus stations and stops

,,,,}

Nearest Hotels

,,}

Tags

Local Market Stats

AirBnB Data

Similar Properties

Meta

High Res Images

Compatible Images

Low res Images

Thumbnails

Raw Images

High Res Floorplan Images

Compatible Floorplan Images

Low res Floorplan Images

FloorplanImages Thumbnail

Raw Floorplan Images