Bright eighth-floor home with balcony, pool access and Canary Wharf close by.
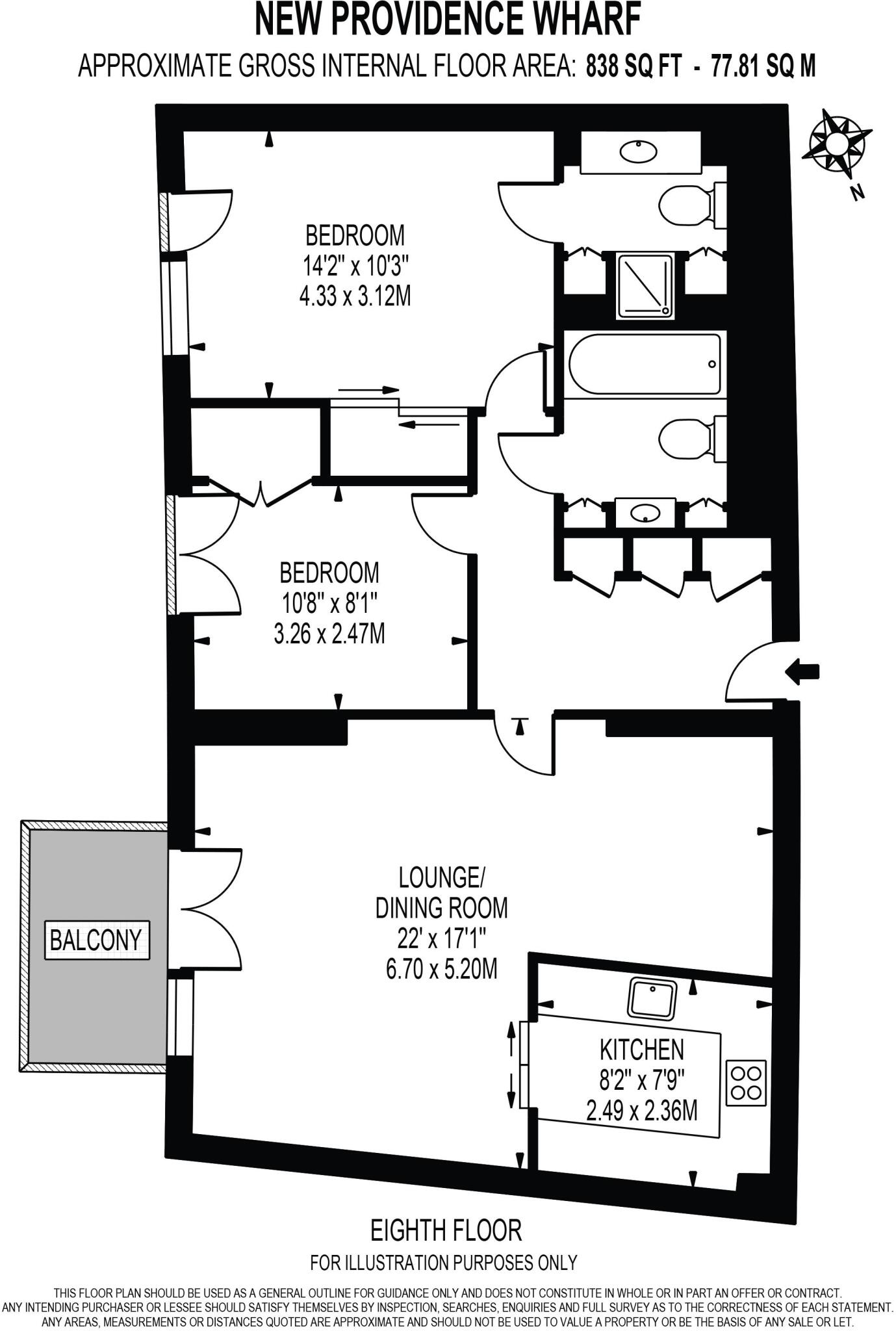
Eighth-floor apartment with River Thames and O2 views
Set on the eighth floor of New Providence Wharf, this two-bedroom apartment delivers bright, well-proportioned living across 838 sq ft. Floor-to-ceiling windows and a private balcony frame views of the River Thames and the O2, while a separate kitchen and generous living room make entertaining straightforward. The master bedroom includes a high-spec en-suite for added privacy.
Residents benefit from full development amenities — gym, swimming pool and 24-hour concierge — and excellent transport links via the nearby DLR and a short walk to Canary Wharf. The building was constructed in the early 2000s and has double glazing; communal facilities and the riverside setting add lifestyle value for professionals or buyers seeking turnkey city living.
Practical considerations: the property is leasehold with a ground rent of £350 (average) and council tax described as expensive. Heating is electric underfloor, and main fuel is electricity, which may mean higher running costs compared with gas-heated homes. The apartment is well-maintained but suits buyers comfortable with apartment living and managing leasehold obligations.
This home will suit first-time buyers or city professionals seeking a modern riverside base close to Canary Wharf, with strong transport links and on-site amenities. There is also potential appeal for investors targeting high-demand rental areas, subject to lease and management checks.
2 bedroom apartment for sale in New Providence Wharf, London, E14 — £625,000 • 2 bed • 2 bath • 878 ft²
2 bedroom flat for sale in New Providence Wharf, Canary Wharf, London, E14 — £575,000 • 2 bed • 2 bath • 808 ft²
2 bedroom apartment for sale in New Providence Wharf, 1 Fairmont Avenue, London, E14 — £530,000 • 2 bed • 2 bath • 879 ft²
2 bedroom apartment for sale in New Providence Wharf, London, E14 — £650,000 • 2 bed • 2 bath • 1009 ft²
2 bedroom apartment for sale in New Providence Wharf, Fairmont Avenue, London, E14 , E14 — £550,000 • 2 bed • 2 bath • 836 ft²
2 bedroom flat for sale in Fairmont Avenue, London, E14 — £625,000 • 2 bed • 2 bath • 871 ft²


















































