**Standout Features:**
- Expansive 1.28-acre building plot with full planning permission for a 4-bedroom detached house and double garage.
- Beautifully mature, tree-lined setting with a tranquil parkland feel, ideal for domestic or equestrian use (subject to planning).
- Located on the outskirts of Willoughby village, blending rural charm with community spirit.
**Potential Concerns:**
- Planning restrictions limit use to residential or equestrian only.
- Buyers are responsible for installation of boundary fencing within three months of purchase.
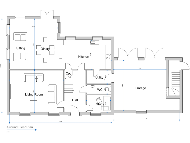
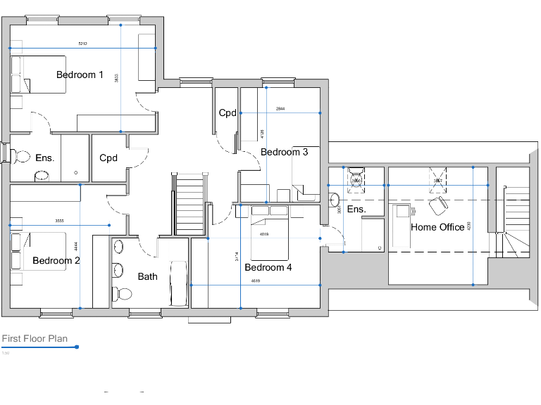
This exceptional building plot on Bonthorpe Lane spans a generous 1.28 acres, providing a unique opportunity to create your dream home. With full planning permission granted for a spacious 4-bedroom house complete with an attached double garage, the possibilities for customization are limitless. The property is set in a picturesque, parkland-like environment, surrounded by mature trees that ensure privacy and a serene atmosphere.
Strategically located just outside Willoughby village, this plot is perfect for families or investors seeking a peaceful retreat infused with community charm. You’ll be able to enjoy ample green space for gardening or equestrian activities, making it a desirable locale for outdoor enthusiasts. The area boasts essential amenities within easy reach, and the inviting village spirit makes it an exceptional place to raise a family. Don’t miss out on this rare chance to secure a slice of idyllic countryside living with significant development potential.
Plot for sale in School Lane, Raithby, Spilsby, PE23 — £395,000 • 1 bed • 1 bath • 3186 ft²
Land for sale in Plot 5, Tothby Lane, Alford , LN13 — £165,000 • 4 bed • 3 bath • 13939 ft²
Plot for sale in Long Lane, Mumby, Alford, LN13 — £250,000 • 4 bed • 2 bath
Plot for sale in Goose Lane, Raithby, Spilsby, PE23 — £395,000 • 1 bed • 1 bath • 2241 ft²
Plot for sale in The Common, Burgh Le Marsh, Skegness, PE24 — £86,000 • 1 bed • 1 bath
Land for sale in Church Lane, East Keal, Spilsby, PE23 — £125,000 • 1 bed • 1 bath














































