Large four-bedroom detached home with annexe and double garage, ideal for family life or flexible living.
Quiet cul-de-sac in popular Culloden neighbourhood
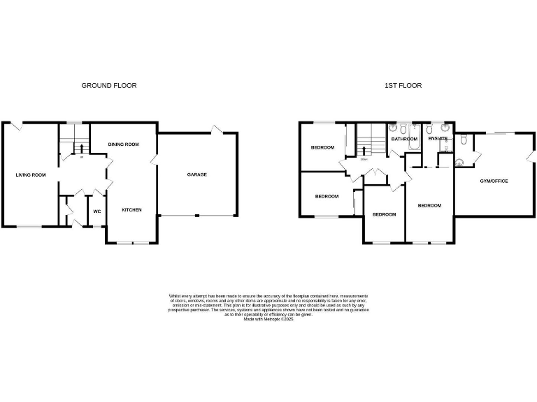
Set in a quiet Culloden cul-de-sac, this four-bedroom detached house offers generous, beautifully presented family accommodation across two floors. The ground floor centres on a bright, open-plan kitchen/dining/family room with tri-fold doors to the rear deck and a comfortable lounge with multi-fuel stove. Upstairs there are four well-proportioned bedrooms, including a master with en-suite, and a contemporary family shower room.
A key asset is the large double garage with fitted utility space and electronically operated doors, plus additional self-contained accommodation above accessed by an external stair. That annexe currently trades as a salon but would suit home office use, guest suite or potential rental income subject to consents. The established, generous garden grounds provide private outdoor space for children and pets.
Practical details: the property is freehold, benefits from fast broadband and a nearby choice of schools, shops and public transport. Important considerations are the local area classification (noted as having high deprivation in available data) and a relatively expensive council tax band, which may affect running costs. Mobile signal is average. A home report and EPC are available via the property listing for full condition and energy details.
3 bedroom detached house for sale in 10 Moray Park Wynd, Inverness, IV2 7FZ, IV2 — £265,000 • 3 bed • 2 bath • 754 ft²
4 bedroom detached house for sale in 52 Moray Park Terrace, Culloden, Inverness, IV2 7RW, IV2 — £320,000 • 4 bed • 3 bath • 948 ft²
4 bedroom detached house for sale in 9 Campbell Court, Croy, IV2 — £380,000 • 4 bed • 2 bath • 1368 ft²
2 bedroom terraced house for sale in Culloden Court, Inverness, IV2 7DX, IV2 — £225,000 • 2 bed • 1 bath • 1109 ft²
4 bedroom detached house for sale in Moray Park Terrace, Inverness, IV2 7RQ, IV2 — £430,000 • 4 bed • 3 bath • 2196 ft²
5 bedroom detached house for sale in 16 Culcabock Road, Inverness, IV2 3XQ, IV2 — £490,000 • 5 bed • 3 bath • 2250 ft²






































































































































































