Income-producing one-bedroom flat near Taunton station — investor only, tenant in situ..
- Investor sale: tenant in situ, sold with current tenancy
- Passing rent £740 pcm (income-producing from day one)
- Long lease: 999 years from 01/01/1998
- Service charge approx £1,537.48 per annum
- Dedicated off-street parking and visitor spaces
- West-facing first-floor apartment with large industrial windows
- EPC D; council tax band A (very cheap)
- Local area: higher crime and deprivation levels
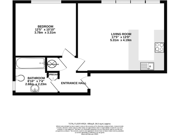
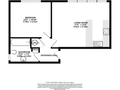
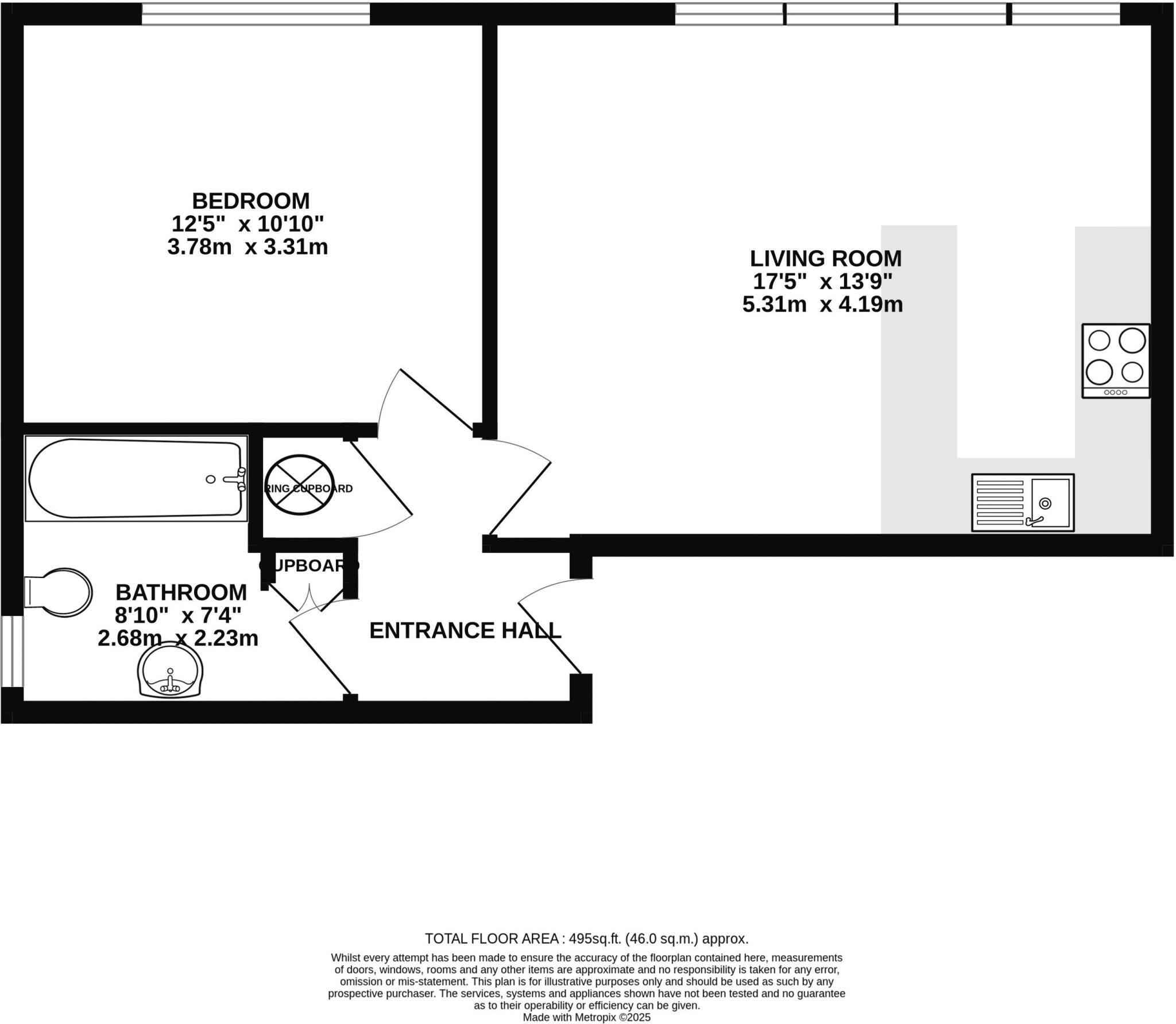
A well-presented one-bedroom apartment in a converted red-brick warehouse, offered to investors with a tenant in situ. The first-floor, west-facing flat benefits from large industrial-style windows, good natural light and an open-plan living room/kitchen. Dedicated off-street parking, visitor spaces and a communal garden add practical appeal.
Leasehold with a long lease (999 years from 1998) and an annual service charge of approximately £1,537.48. The current passing rent is £740 pcm, so the property is being sold as an income-producing investment. Utilities are mains-connected and there is no identified flood risk.
Important considerations for investors: the building has an EPC rating of D, council tax band A (very cheap) and the local area records higher crime and deprivation indices, which can affect tenant demand and long-term capital growth. The property is conveniently located close to Taunton town centre and the railway station, supporting rental appeal to commuters.
Overall this apartment suits buy-to-let buyers seeking a low-maintenance, let-and-forget asset with immediate income. Prospective purchasers should review tenancy terms, management arrangements and the service charge schedule before committing.
2 bedroom flat for sale in Kingston Road, TA2 — £168,500 • 2 bed • 1 bath • 476 ft²
2 bedroom flat for sale in Chaucer Court, TA1 — £150,000 • 2 bed • 2 bath • 541 ft²
2 bedroom apartment for sale in Youngman Place, Taunton, Somerset, TA1 — £230,000 • 2 bed • 2 bath • 763 ft²
1 bedroom flat for sale in South Gate, TA1 — £120,000 • 1 bed • 1 bath • 590 ft²
1 bedroom flat for sale in One bedroom flat, Eastgate Gardens, TAUNTON, TA1 — £120,000 • 1 bed • 1 bath • 301 ft²
1 bedroom flat for sale in Compass Hill, Taunton, TA1 — £120,000 • 1 bed • 1 bath














































