Newly renovated three-bedroom semi with island kitchen, garden and garage near Knockhill Park..
- Newly renovated three-bedroom semi-detached house
- Open-plan kitchen/dining with large island and French doors
- Two very spacious double bedrooms plus small third bedroom
- Detached single garage and driveway parking
- Gas central heating and double glazing throughout
- EPC rating D (energy performance below modern best practice)
- Overlooks Knockhill Park; private front and rear gardens
- Located in a very deprived wider area; consider resale factors
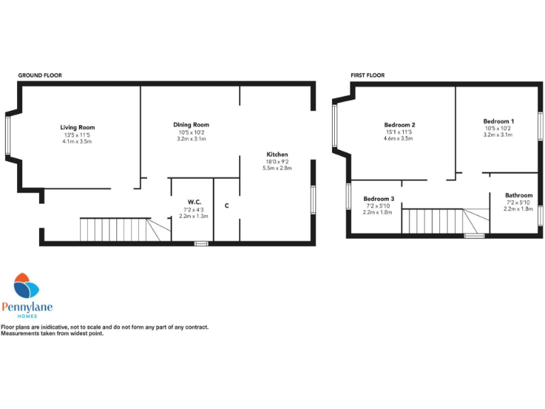
This newly renovated three-bedroom semi-detached home on Marjory Road offers comfortable family living with modern finishes throughout. The ground floor has a bright lounge with bay window and wood burner, a reconfigured layout including a handy downstairs WC, and an open-plan kitchen/dining area with a large island — ideal for family meals and entertaining. French doors lead directly to the rear garden with open outlook over Knockhill Park.
Upstairs provides two very spacious double bedrooms and a smaller third room currently used as a dressing room. The family bathroom includes a walk-in shower and contemporary tiling. Practical features include new internal doors and woodwork, gas central heating, double glazing and generous built-in kitchen storage with integrated appliances.
Outside there are private front and rear gardens, driveway parking and a detached single garage. The property is freehold, offers average overall size at about 1,076 sq ft, and sits in a comfortable suburbia setting that will suit families or buyers seeking easy access to local amenities and green space.
Notable negatives are factual: the Energy Performance Certificate is a D, and the house sits within a very deprived wider area which may affect long-term resale or local services. The garage is single-sized and parking is limited to the driveway plus the garage. Council tax is moderate. These points should be weighed against the high-spec renovation and practical layout.
4 bedroom semi-detached house for sale in Duntocher Road, Clydebank, G81 — £210,000 • 4 bed • 1 bath • 1184 ft²
3 bedroom semi-detached house for sale in Haining Road, Renfrew, PA4 — £185,000 • 3 bed • 1 bath • 801 ft²
3 bedroom semi-detached house for sale in Loganswell Road, Thornliebank, G46 — £220,000 • 3 bed • 1 bath • 883 ft²
4 bedroom semi-detached house for sale in Gowanlea Place, Brookfield, PA5 — £290,000 • 4 bed • 2 bath • 1269 ft²
3 bedroom semi-detached house for sale in 58 Farm Road, Duntocher, G81 6JZ, G81 — £195,000 • 3 bed • 1 bath • 893 ft²
3 bedroom semi-detached house for sale in Linn Park Gardens, Johnstone, PA5 — £185,000 • 3 bed • 1 bath • 1173 ft²






































































































