Practical low-rise retirement flat with scope to modernise and personalise.
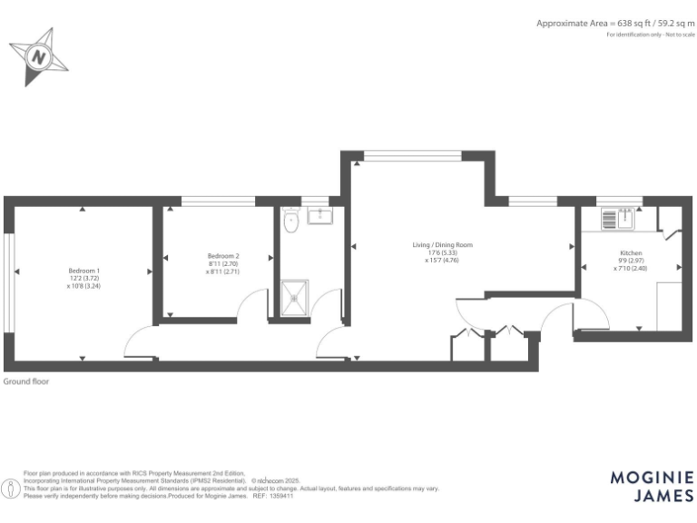
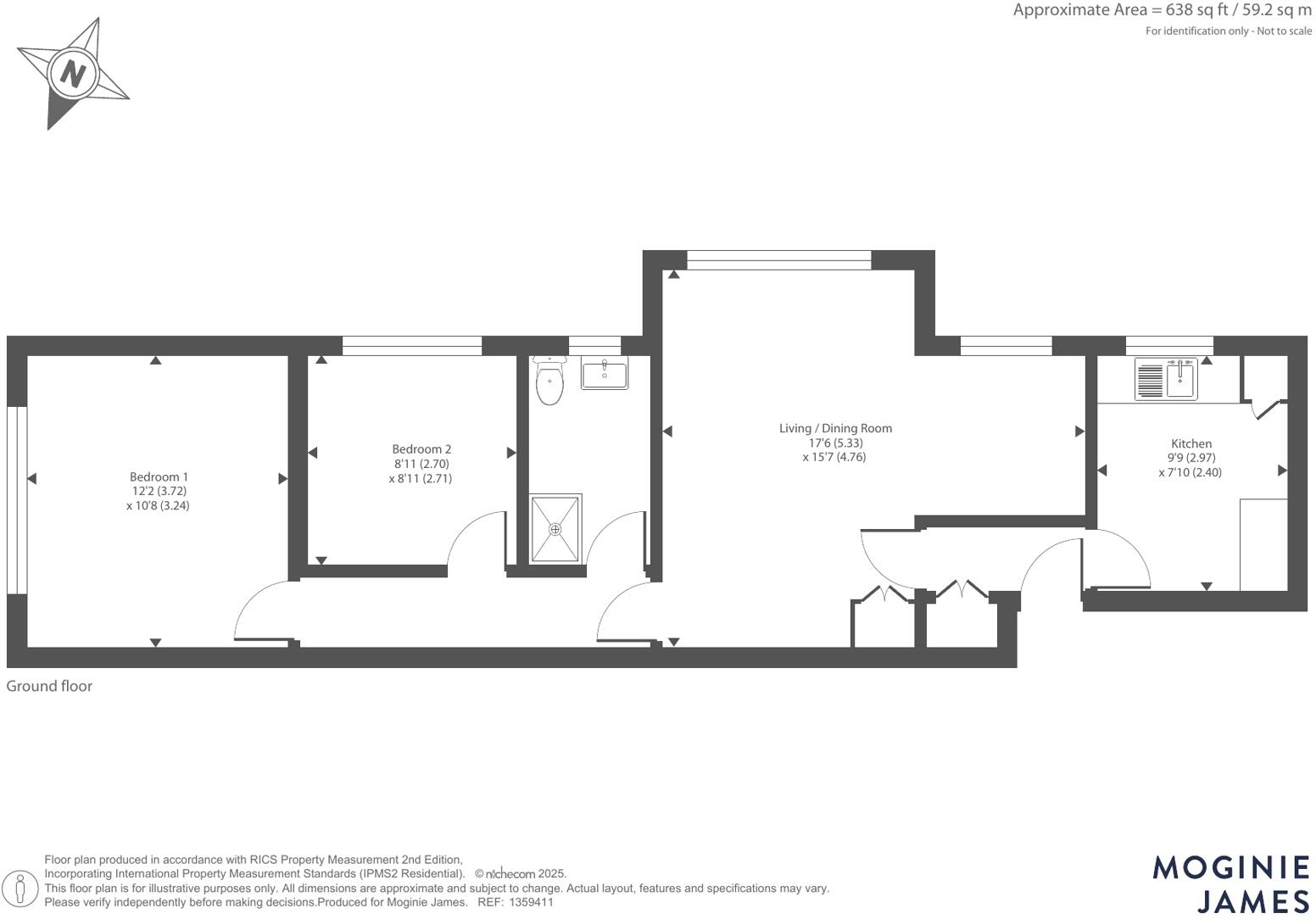
Two double bedrooms provide roomy sleeping accommodation
Open-plan lounge and dining room with good natural light
Mid-20th century building with dated internal fixtures
Signs of potential damp in living area; inspection recommended
Leasehold tenure — check lease length and service charges
Very deprived local area may affect resale and rental demand
Excellent mobile signal and fast broadband for modern needs
Close to shops, transport links, parks and walking routes
A two-bedroom first-floor flat offering practical accommodation for the over-55s in CF5. The open-plan lounge and dining area feels bright thanks to large windows, while both bedrooms are generous doubles that suit comfortable living or visiting family. Broadband and mobile signal are strong, and there is easy access to local shops, transport links and nearby parks for daily walks.
The building and interior are mid-20th century and show a dated finish. Laminate flooring and older-style fixtures are present, and there are signs of potential damp in parts of the living area that will likely need attention. The property is leasehold; buyers should budget for any service charges and seek clarity on lease length and maintenance responsibilities.
This flat suits a retirement buyer seeking a well-located, low-rise home with scope to personalise. It also holds appeal as a buy-to-let option for investors targeting over-55s, though refurbishment costs and the surrounding area’s high deprivation should be factored into valuation and rental expectations. No flood risk, and the apartment’s size and layout make it a straightforward, manageable home for downsizing or simpler living.
2 bedroom apartment for sale in Bishop Hannon Drive, Cardiff, CF5 — £115,000 • 2 bed • 1 bath • 411 ft²
2 bedroom ground floor flat for sale in Beechley Drive, Cardiff, CF5 — £115,000 • 2 bed • 1 bath • 517 ft²
2 bedroom flat for sale in Bishop Hannon Drive, Fairwater, Cardiff, CF5 — £115,000 • 2 bed • 1 bath • 539 ft²
2 bedroom flat for sale in Wentloog Court, Wentloog Road, Rumney, Cardiff, South Glamorgan, CF3 — £110,000 • 2 bed • 1 bath • 550 ft²
1 bedroom retirement property for sale in Restway Court, Danescourt, CF5 — £95,000 • 1 bed • 1 bath • 424 ft²
2 bedroom flat for sale in Flat , Dyfed House, Glenside Court, Tygwyn Road, Penylan, Cardiff, CF23 — £179,995 • 2 bed • 1 bath • 679 ft²


























































