Three-bed family house with garage, driveway and enclosed garden.
End-of-cul-de-sac location with no direct rear neighbours
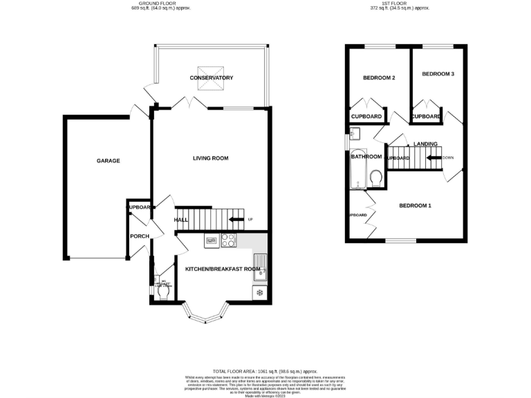
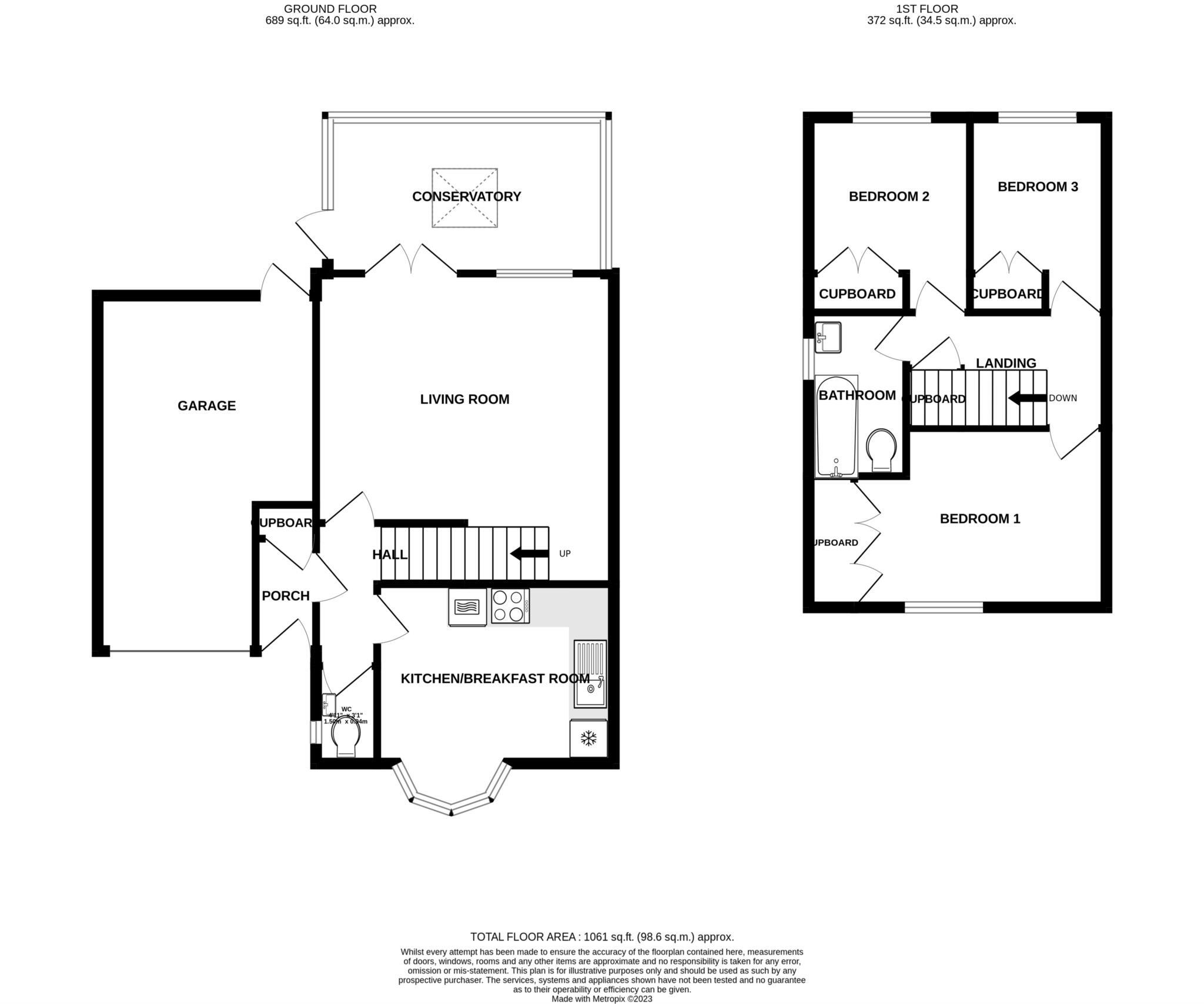
This well-presented 3-bedroom semi-detached home sits at the end of a quiet cul-de-sac in a popular Chard neighbourhood, ideal for families seeking space and school catchment convenience. The ground floor flows from a modern kitchen/breakfast room with integrated appliances into a spacious living room and a bright conservatory that opens onto an enclosed rear garden. Driveway parking for three cars and a powered garage with plumbing add practical everyday convenience.
Upstairs provides two double bedrooms with built-in wardrobes and a single bedroom also fitted for storage, plus a modern family bathroom with both bath and shower. The property benefits from double glazing and gas central heating and has a decent private plot with patio and lawn; a walkway behind the garden means there are no rear neighbours directly overlooking the space.
Practical considerations: the EPC rating is D and broadband speeds are reported as slow in the area, which may matter for remote working or higher-efficiency expectations. There is a single family bathroom only, and the house dates from the late 1970s/early 1980s so some buyers may wish to refresh fixtures or consider longer-term energy upgrades. Council tax sits at band C and the tenure is freehold.
Overall this is a comfortable, modern family home in a very low-crime, affluent area within Redstart Primary School catchment. It will suit buyers wanting move-in-ready accommodation with good parking, garden privacy and scope to personalise energy or cosmetic aspects over time.
3 bedroom semi-detached house for sale in Russell Pope Avenue, Chard, TA20 — £280,000 • 3 bed • 1 bath • 807 ft²
3 bedroom semi-detached house for sale in Norrington Way, Chard, Somerset, TA20 — £245,000 • 3 bed • 1 bath • 975 ft²
3 bedroom detached house for sale in Bracken Way, Chard, Somerset, TA20 — £330,000 • 3 bed • 2 bath • 1012 ft²
3 bedroom semi-detached house for sale in King Athelstan Drive, Chard, TA20 — £270,000 • 3 bed • 1 bath • 1100 ft²
3 bedroom semi-detached house for sale in Englands Way, Chard, TA20 — £260,000 • 3 bed • 1 bath • 952 ft²
4 bedroom house for sale in Kinforde, Chard, Somerset, TA20 — £299,000 • 4 bed • 2 bath • 1125 ft²






































































































