Spacious period living near excellent schools and fast commuting links.
Short walk to town centre and train station
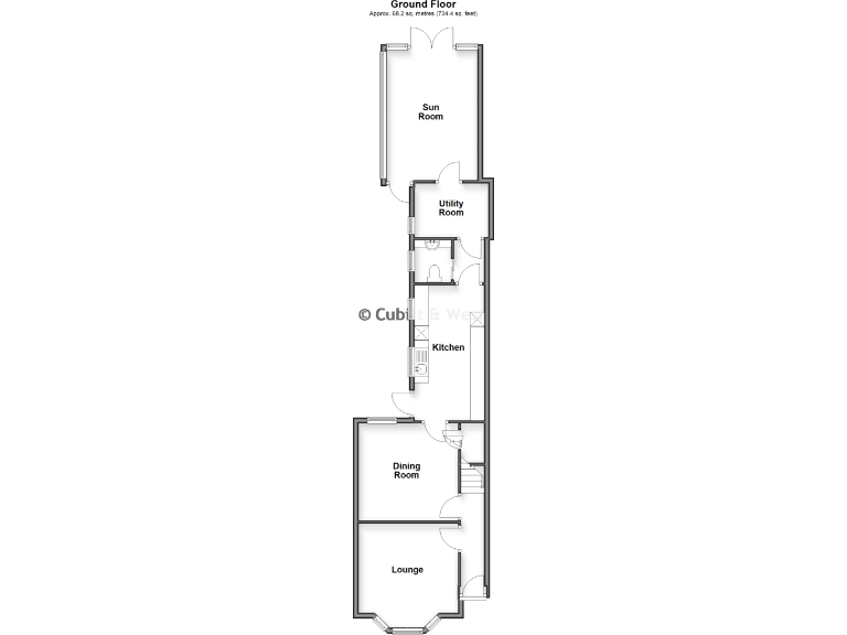
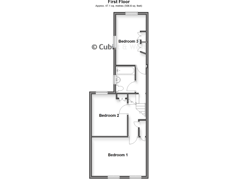
This extended Victorian semi-detached house offers a practical family layout within easy walking distance of Haywards Heath town centre and the train station. Inside are two reception rooms, a generous sun room, and three double bedrooms, providing comfortable living space across approximately 1,464 sq ft.
The property sits on a small, secluded rear garden with a powered workshop—useful for hobbies or storage—and benefits from a useful utility room and mains gas boiler with radiator heating. Local schools rated Good to Outstanding and fast broadband make this a convenient choice for commuting families and multi-ethnic professionals.
The house retains period character such as bay windows and decorative cornices but requires modernization throughout; dated decor and mid-century fittings remain. The cavity walls are likely uninsulated, so buyers should budget for energy-efficiency improvements. Crime is reported above average for the area and the plot is modest, so outdoor space is limited compared with larger suburban gardens.
Overall this freehold home suits a family or buyer looking for a well-located property with scope to update and add value. Verify any planning or building regulation requirements if you plan alterations; dimensions and fixtures should be checked independently.
3 bedroom semi-detached house for sale in Petlands Road, Haywards Heath, West Sussex, RH16 — £307,500 • 3 bed • 1 bath • 1464 ft²
2 bedroom house for sale in Gower Road, Haywards Heath, RH16 — £475,000 • 2 bed • 1 bath • 797 ft²
2 bedroom house for sale in Triangle Road, Haywards Heath, RH16 — £385,000 • 2 bed • 1 bath • 767 ft²
2 bedroom house for sale in Franklynn Road, Haywards Heath, RH16 — £375,000 • 2 bed • 2 bath • 537 ft²
3 bedroom house for sale in Ashenground Road, Haywards Heath, RH16 — £475,000 • 3 bed • 2 bath • 1067 ft²
3 bedroom semi-detached house for sale in Queens Road, Haywards Heath, RH16 — £475,000 • 3 bed • 1 bath • 1025 ft²














































































