Mid-terrace 2-bedroom house in popular cul-de-sac location
Presented clean and tidy; move-in ready condition
31' x 14' rear garden plus small additional external area
Allocated off-street parking space included
Modern double glazing; recently replaced gas boiler
Small overall footprint; limited internal storage space
EPC rating C — potential for energy improvements
Offered freehold and chain free
This tidy two-bedroom terraced house in a quiet cul-de-sac on Haywards Heath’s east side offers a sensible, low-maintenance home for a first-time buyer or investor. Built by Berkeley Homes in the late 1990s, the property presents clean, modern finishes, double glazing and an updated gas boiler — move-in ready in most respects and offered with no onward chain.
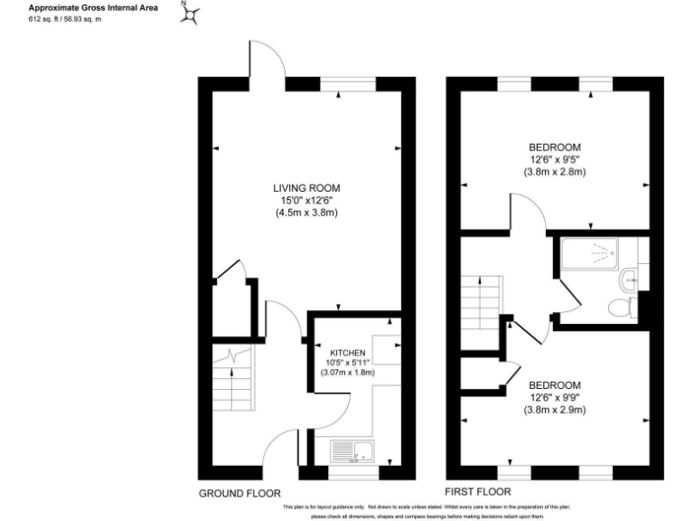
The layout is compact and efficient across two floors: a comfortable living room, a fitted kitchen and two double bedrooms served by a single family bathroom. The rear garden measures approximately 31' x 14' with a small additional area and a shed, providing private outdoor space while remaining easy to maintain. An allocated off-street parking space is included.
Practical considerations are clear: the overall footprint and plot are small, so internal storage and living space are modest. The EPC rating is C and the house has standard mains gas heating and cavity wall construction; buyers wanting top energy performance should factor potential improvements into their plans. Council Tax Band C keeps running costs moderate.
Location is a strong selling point: short walks to local shops, several well-regarded schools and the town centre, and about a mile to Haywards Heath railway station. This property suits buyers prioritising convenience, low upkeep and a straightforward purchase, or investors seeking a well-presented rental with good local demand.















































