Bright two-bed requiring modernisation, ideal for buyers ready to add value.
Top-floor Victorian tenement with high ceilings and large windows
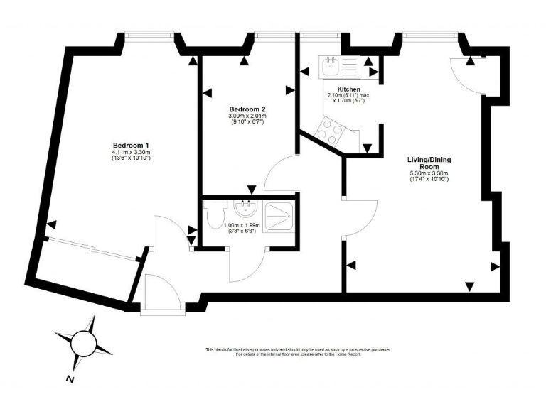
Set on the top floor of a distinctive Victorian tenement in Polwarth, this two-bedroom flat offers bright rooms, high ceilings and period character. The living/dining room is generous and well-lit; the larger bedroom includes a fireplace and deep fitted wardrobe. Double glazing and gas central heating are already in place.
The flat requires modernising throughout, providing a clear opportunity to personalise finishes and add value. The compact footprint (circa 459 sq ft) suits a first-time buyer or buy-to-let investor seeking a central location with strong transport links and local amenities.
Outside, residents share a communal garden and benefit from permit on-street parking. Note the property sits within an area classified as very deprived and in a cosmopolitan student neighbourhood, which may affect local amenity mix and noise at times.
Overall this is a characterful, affordably priced flat in a sought-after part of Edinburgh, best suited to someone prepared to carry out updating to realise its potential.
1 bedroom flat for sale in 1 (1F3) Yeaman Place, Polwarth, Edinburgh, City of Edinburgh, EH11 1BR, EH11 — £150,000 • 1 bed • 1 bath • 508 ft²
1 bedroom flat for sale in 13/9 Fowler Terrace, Polwarth, Edinburgh, EH11 1DD, EH11 — £175,000 • 1 bed • 1 bath • 446 ft²
1 bedroom flat for sale in 29/16 Watson Crescent, Edinburgh, EH11 1EY, EH11 — £150,000 • 1 bed • 1 bath • 481 ft²
1 bedroom flat for sale in 20/3 Fowler Terrace, Edinburgh, EH11 1BZ, EH11 — £265,000 • 1 bed • 1 bath • 700 ft²
1 bedroom flat for sale in Tay Street, Polwarth, Edinburgh, EH11 — £225,000 • 1 bed • 1 bath • 737 ft²
1 bedroom flat for sale in 20/10 Fowler Terrace, Polwarth, Edinburgh, EH11 1BZ, EH11 — £160,000 • 1 bed • 1 bath


































































