SW1P 4SB - 3 bed panoramic westminster apartment in 79 Marsham Street,…

View on Property Piper

3 bedroom flat for sale in St Johns Building, Westminster, London, SW1P

Summary - Marsham Street, London, SW1P SW1P 4SB

3 bed 3 bath Flat

Top-floor, newly renovated three-bedroom with balcony, parking and concierge in central Westminster.
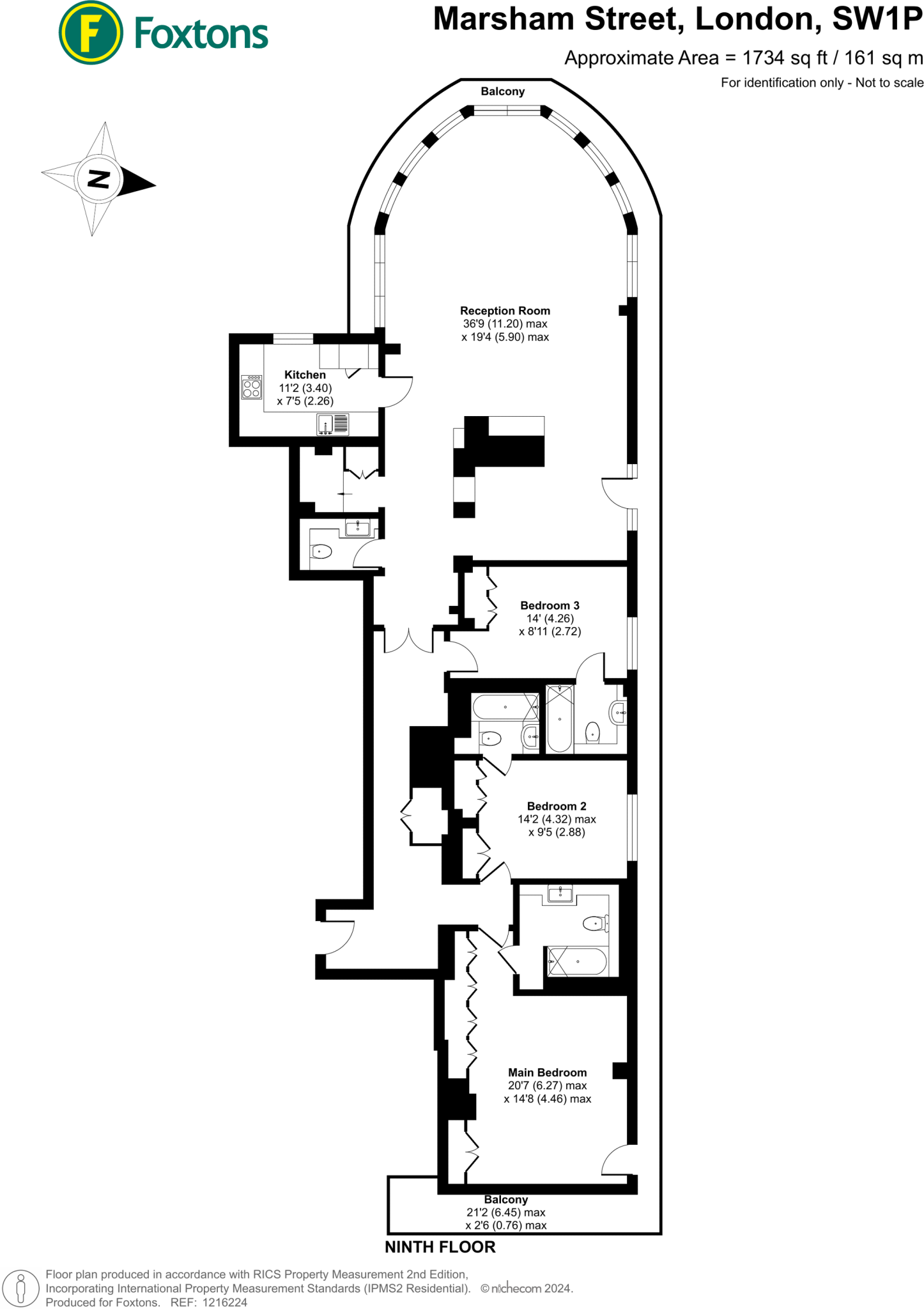
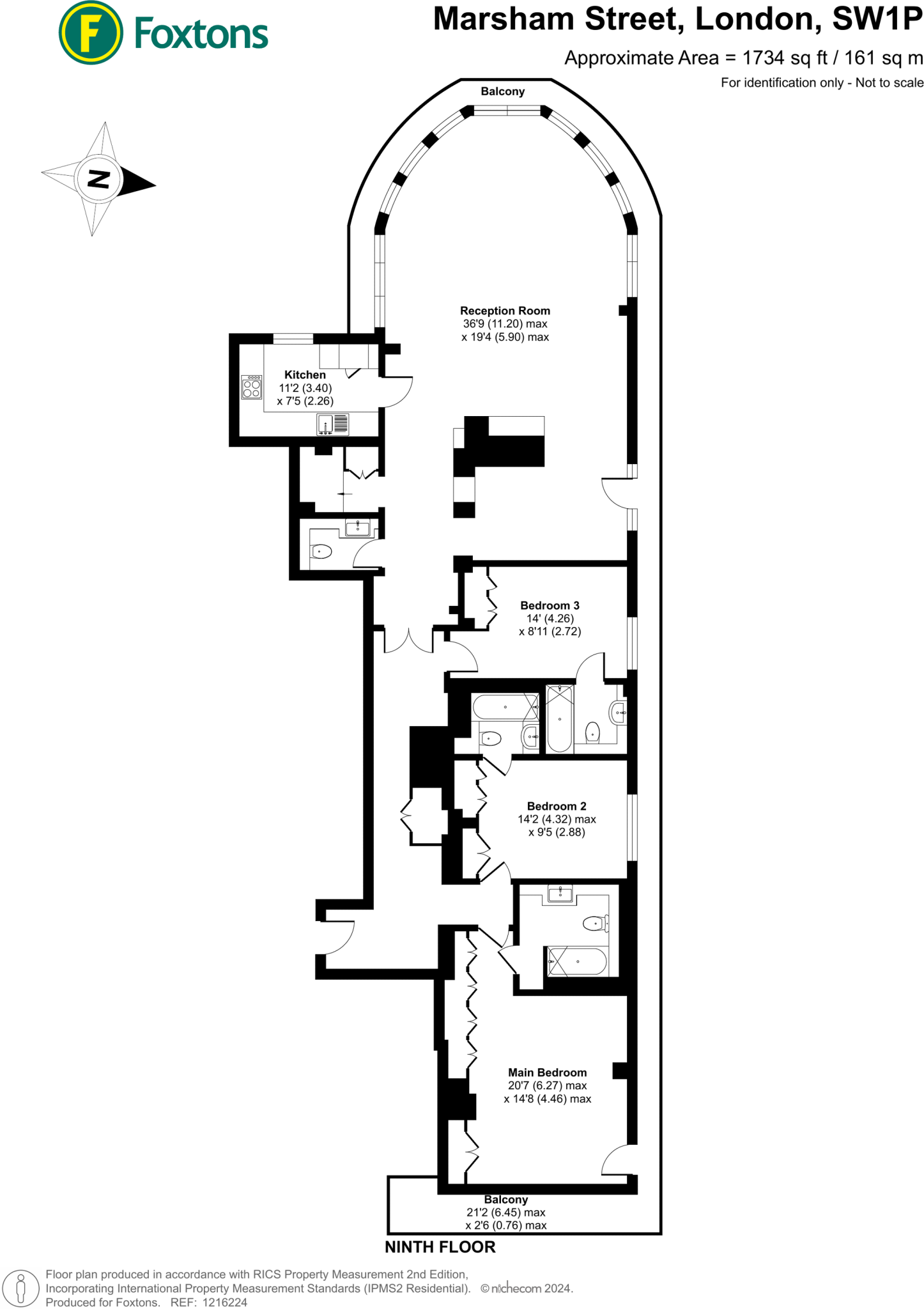
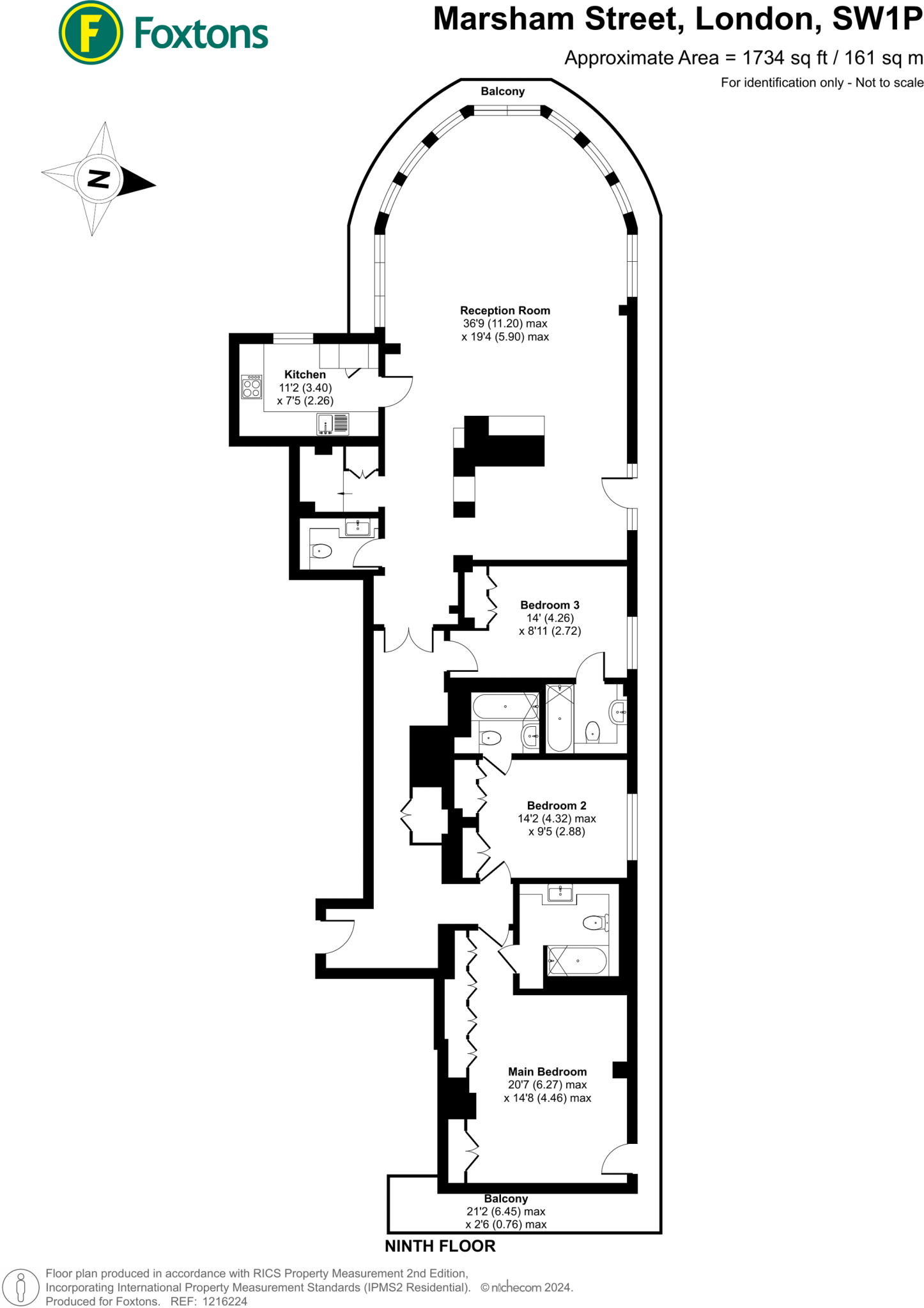
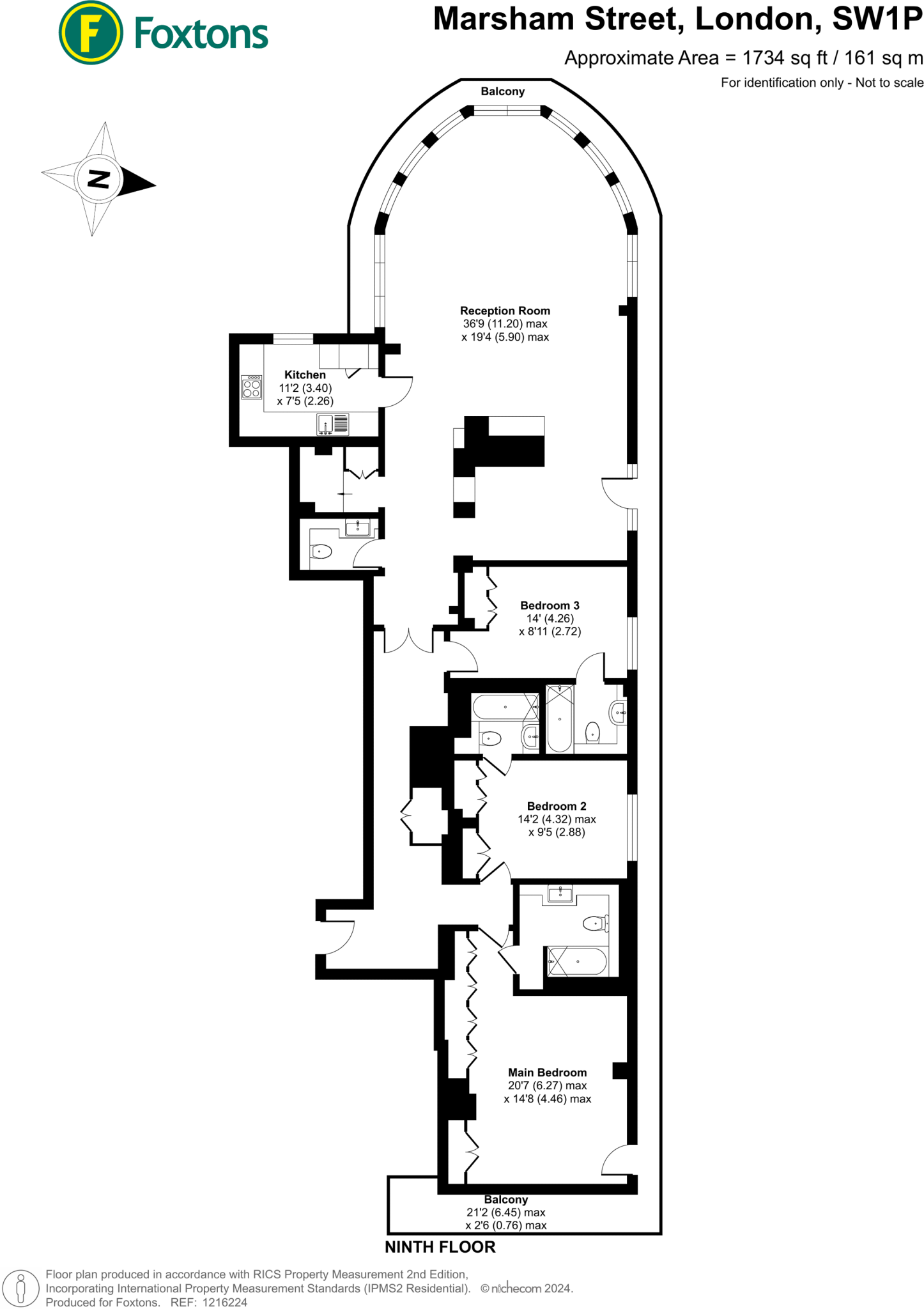
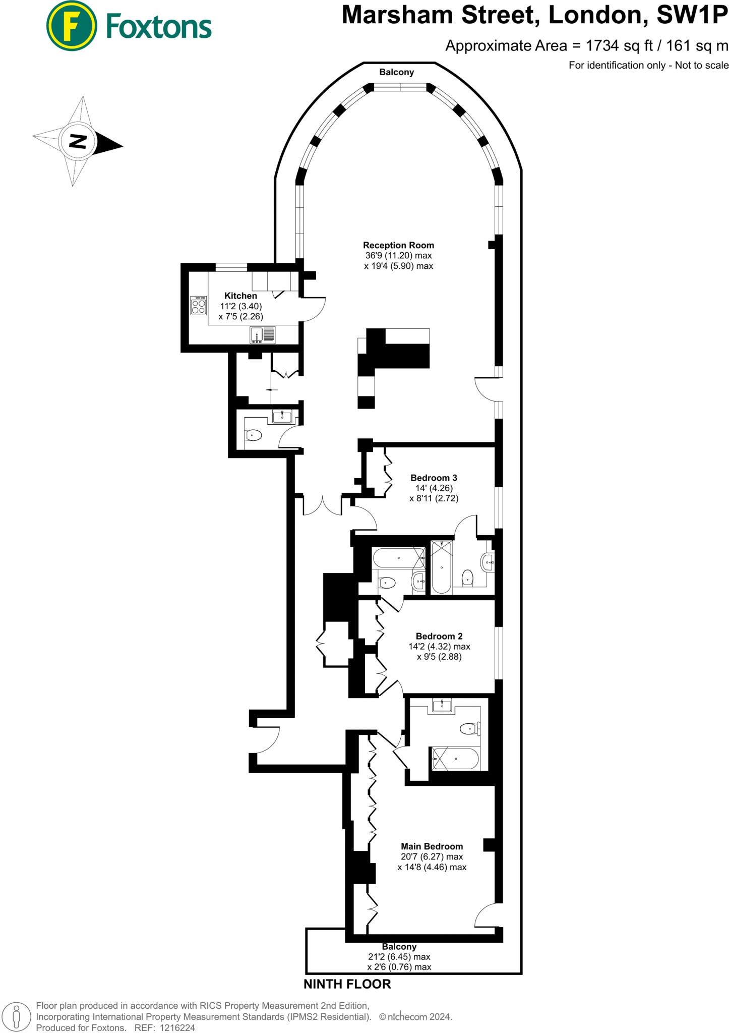
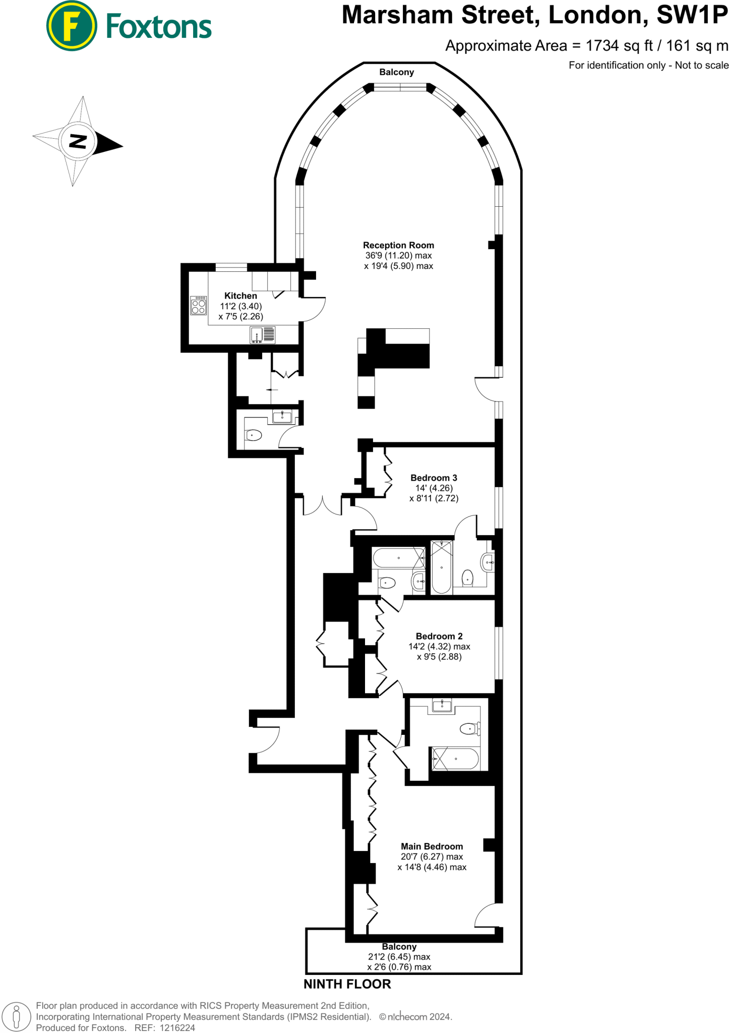
Spacious 1,734 sq ft three-bedroom, top-floor apartment
Panoramic, far-reaching city views from full-length balcony
Three double bedrooms, each with fitted wardrobes and en-suite
Newly renovated with high-spec fixtures and hardwood floors
Building amenities: concierge, lift, leisure suite; underground parking
Long lease (971 years) but leasehold tenure with £700 p.a. ground rent
Heating: air-source heat pump and electric warm-air system (check costs)
Local crime reported above average — factor into location choice
Set on the ninth and top floor of a prestigious Westminster development, this substantial three-bedroom apartment offers expansive living space and uninterrupted, far-reaching views across central London. The bay-fronted reception and separate dining area create a grand entertaining layout, while a full-length balcony provides an exceptional outdoor vantage point. Three double bedrooms each include fitted wardrobes and en-suite bathrooms, delivering privacy and convenience for family life or professional sharers.

The apartment is newly renovated and presented in immaculate condition with high-spec fixtures and fittings throughout. Hardwood floors, high ceilings and large windows emphasise the generous proportions across approximately 1,734 sq ft. Practical comforts include double glazing, an air-source heat pump with warm-air electric heating, in-building concierge, lift access and a leisure suite for residents.

A secure underground parking space is included — a rare asset in this location — and the long lease (971 years) removes common leasehold timing concerns. The property sits in the heart of Westminster Village, within easy walking distance of parks, cafés, cultural landmarks and a range of schools rated Good to Outstanding, making it well placed for families, professionals and downsizers seeking central convenience.

Notable considerations: the property is leasehold with an annual ground rent of £700, which is higher than typical. Crime in the immediate area is reported as above average, and the main heating is electric-based; prospective buyers should check running costs and service charges. Overall, this is a rare, spacious top-floor apartment offering turnkey condition and strong central-London appeal.

Property Details

Image Descriptions

Floorplan Description

Rooms

Textual Property Features

Target Audience

AI Tags

Detected Visual Features

EPC Details

Nearby Schools

Nearest Bars And Restaurants

,,,,}

Nearest General Shops

,,}

Nearest Grocery shops

,,}

Nearest Supermarkets

,,}

Nearest Religious buildings

,,}

Nearest Medical buildings

,,,}

Nearest Airports

,,}

Nearest Leisure Facilities

,,,,}

Nearest Tourist attractions

,,}

Nearest Train stations

,,,,}

Nearest Bus stations and stops

,,,,}

Nearest Hotels

,,}

Tags

Local Market Stats

AirBnB Data

Similar Properties

Meta

High Res Images

Compatible Images

Low res Images

Thumbnails

Raw Images

High Res Floorplan Images

Compatible Floorplan Images

Low res Floorplan Images

FloorplanImages Thumbnail

Raw Floorplan Images