WF8 2FH - 2 bed immaculate twobedroom townhouse in Cherry Drive, WF8…

View on Property Piper

2 bedroom house for sale in Cherry Drive, Pontefract, WF8

Summary - 18, Cherry Drive WF8 2FH

2 bed 1 bath House

Chain-free, move-in ready 50% shared ownership home with garden and parking.
50% shared ownership; monthly rent £287
A bright, immaculately presented two-bedroom mid-terrace townhouse arranged over two floors. The sitting room opens to a private rear garden and the modern kitchen has integrated appliances — ready to move into. Both bedrooms are double-sized for the house type and the bathroom is contemporary. The home remains covered by its new-build warranty.

This property is offered as a 50% shared ownership opportunity with a monthly rental charge of £287 and the option to staircase to full ownership over time. It is chain-free and includes allocated off-street parking and a low-maintenance front garden, making it practical for first-time buyers seeking a straightforward purchase and quick move.

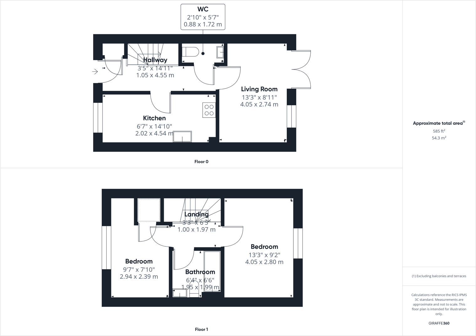
Be realistic about the local context: the immediate area is relatively deprived and recorded local crime levels are high. The house is small (approximately 585 sq ft) and sits on a modest plot, so space is limited compared with larger family homes. For buyers focused on affordability and getting on the ladder, the scheme and price are strong positives; buyers wanting more space or a quieter neighbourhood may find this location less suitable.

Practical benefits include fast broadband, excellent mobile signal and nearby schools with mixed Ofsted results (one outstanding primary). Heating is gas boiler with radiators and the property is built to modern thermal standards. If you plan to increase your share later, the property presents a sensible starter home with straightforward maintenance and move-in readiness.

Property Details

Brochure Descriptions

Image Descriptions

Floorplan Description

Rooms

Textual Property Features

Target Audience

AI Tags

Detected Visual Features

EPC Details

Nearby Schools

Nearest Bars And Restaurants

,,,,}

Nearest General Shops

,,}

Nearest Grocery shops

,,}

Nearest Supermarkets

,,}

Nearest Religious buildings

,,}

Nearest Medical buildings

,,,}

Nearest Airports

,}

Nearest Leisure Facilities

,,,,}

Nearest Tourist attractions

,,}

Nearest Train stations

,,,,}

Nearest Bus stations and stops

,,,,}

Nearest Hotels

,,}

Tags

Local Market Stats

Similar Properties

Meta

High Res Images

Compatible Images

Low res Images

Thumbnails

Raw Images

High Res Floorplan Images

Compatible Floorplan Images

Low res Floorplan Images

FloorplanImages Thumbnail

Raw Floorplan Images