Characterful village pub with marquee and two-bedroom living accommodation, ideal for an owner-operator or investor.
Detached village pub and restaurant in Lower Boddington
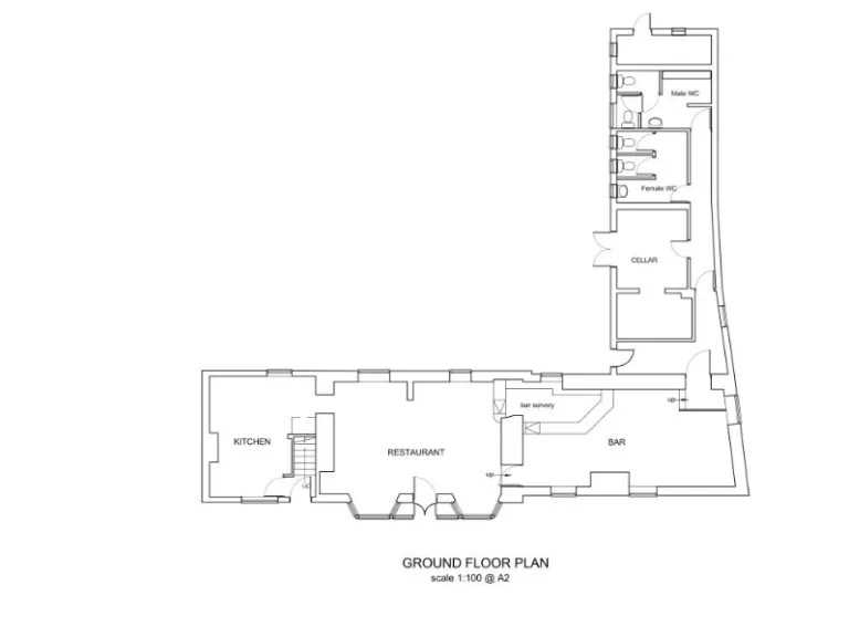
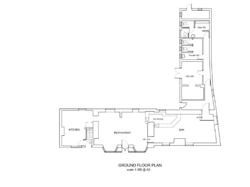
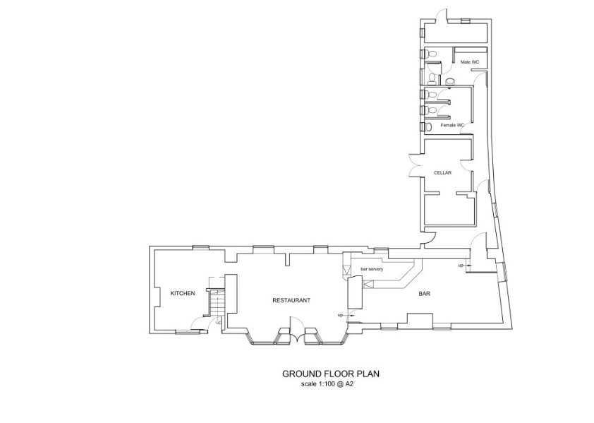
A detached village pub and restaurant with genuine community appeal, located in Lower Boddington between Banbury and Daventry. The property offers two distinct trade areas accommodating around 50 covers, a commercial kitchen, ground-floor cellar and two-bedroom private accommodation — suitable for owner-operators or investors seeking an established rural outlet.
Externally the former car park has been converted to a permanent marquee seating up to 40, plus additional hard-standing, lawns and a covered compound used for storage and wood. The building retains traditional character — exposed beams, stone surrounds and timber floors — giving immediate charm and clear scope for sympathetic refurbishment to increase food-led trade.
Notable practical points: the tenure is not specified and there is only a single bathroom in the accommodation. The former car park conversion reduces formal parking provision; purchasers should verify licensing, running costs and local planning permissions if intending alterations. Overall this is a characterful village pub with strong countryside position and clear potential for trading improvement or continued community use.
Pub for sale in The Carpenter Arms, Hill Road, Lower Boddington, NN11 — £230,000 • 2 bed • 1 bath • 2100 ft²
Pub for sale in Church End, CV47 — £795,000 • 6 bed • 1 bath
Pub for sale in The Dirt House, Southam Road, Little Bourton, Banbury, OX17 1RF, OX17 — £450,000 • 2 bed • 1 bath
3 bedroom link detached house for sale in The Leys, Upper Boddington, NN11 6DG, NN11 — £400,000 • 3 bed • 2 bath • 1514 ft²
5 bedroom detached house for sale in Hill Road, Lower Boddington, NN11 — £799,000 • 5 bed • 3 bath • 2906 ft²
Pub for sale in Oxfordshire - Renowned Village Freehouse In Popular Residential Area, OX15 — £450,000 • 1 bed • 1 bath






























































