### Standout Features:
- **Modern Office Building**: Centrally located with a sleek, contemporary design.
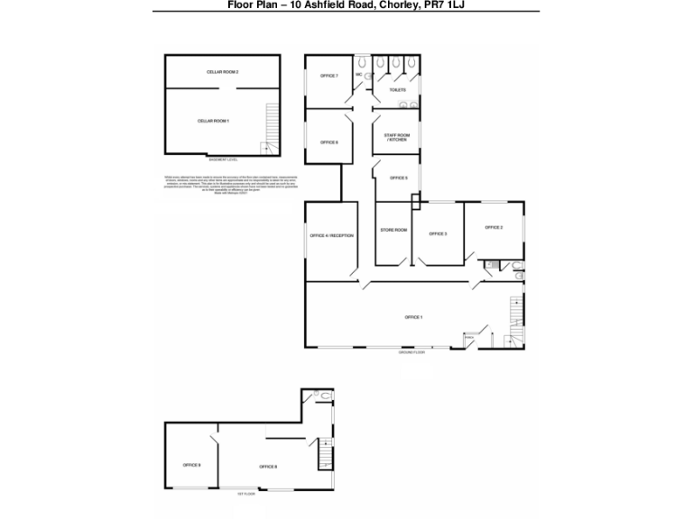
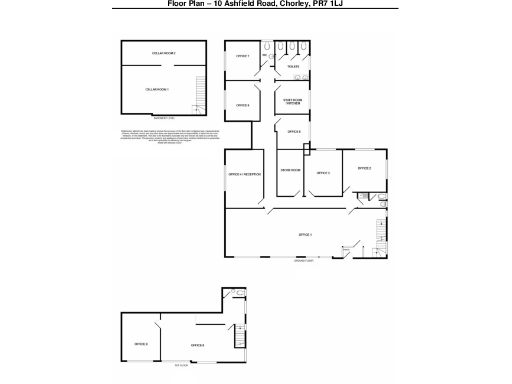
- **Spacious Layout**: Ground floor comprises 145 sq m (1,560 sq ft) and first floor offers an additional 41.8 sq m (450 sq ft).
- **Ample Parking**: Includes 10 dedicated car parking spaces.
- **Storage Solutions**: Additional basement storage of 47.8 sq m (515 sq ft) along with a kitchen and storeroom.
- **Investment Opportunity**: Available with vacant possession or as a rental investment.
- **Planning Permits**: Planning permission already granted for a 33 sq m (355 sq ft) side extension.
### Summary:
This prominent modern office building is an exceptional investment opportunity situated in the heart of Chorley Town Centre. Spanning a sizable 2115 sq ft, the layout features a combination of open-plan and private offices, designed to foster productivity and collaboration. The ground floor's expansive workspace is complemented by additional private offices on the first floor, making it versatile for various business needs. With ten allocated parking spaces, ease of access for clients and staff is assured.
While this property enjoys strengths in design and location, potential buyers should consider that it comes with a lease term of five years, which might pose financing challenges. However, incorporating future renovations or expansions is a distinct possibility, offering flexibility to tailor the space to specific operational needs. The combination of modern amenities, ample storage, and significant parking positions this property as an appealing prospect for established businesses or investors looking to capitalize on a vibrant town center locale.
Act quickly to secure this versatile offering that promises not only functionality but also growth potential in a thriving area.
High street retail property for sale in 41-43 Market Street, Chorley, PR7 2SW, PR7 — £349,995 • 1 bed • 1 bath • 2605 ft²
Office for sale in 29 Chorley New Road, Bolton, Greater Manchester, BL1 4QR, BL1 — £245,000 • 1 bed • 1 bath • 1548 ft²
Commercial property for sale in Market Street, Chorley, Lancashire, PR7 — £460,000 • 3 bed • 1 bath • 4499 ft²
Commercial property for sale in 70-72 Chorley New Road, Bolton, Greater Manchester, BL1 4BY, BL1 — £565,000 • 1 bed • 1 bath • 5045 ft²
Office for sale in St. Thomas House, 18 St. Thomas's Road, Chorley, PR7 1HR, PR7 — £295,000 • 1 bed • 1 bath • 810 ft²
Commercial property for sale in High Street, Chorley, Lancashire, PR7 — £400,000 • 1 bed • 1 bath • 2788 ft²


























