**Standout Features:**
- Spacious detached home in sought-after Round House Park
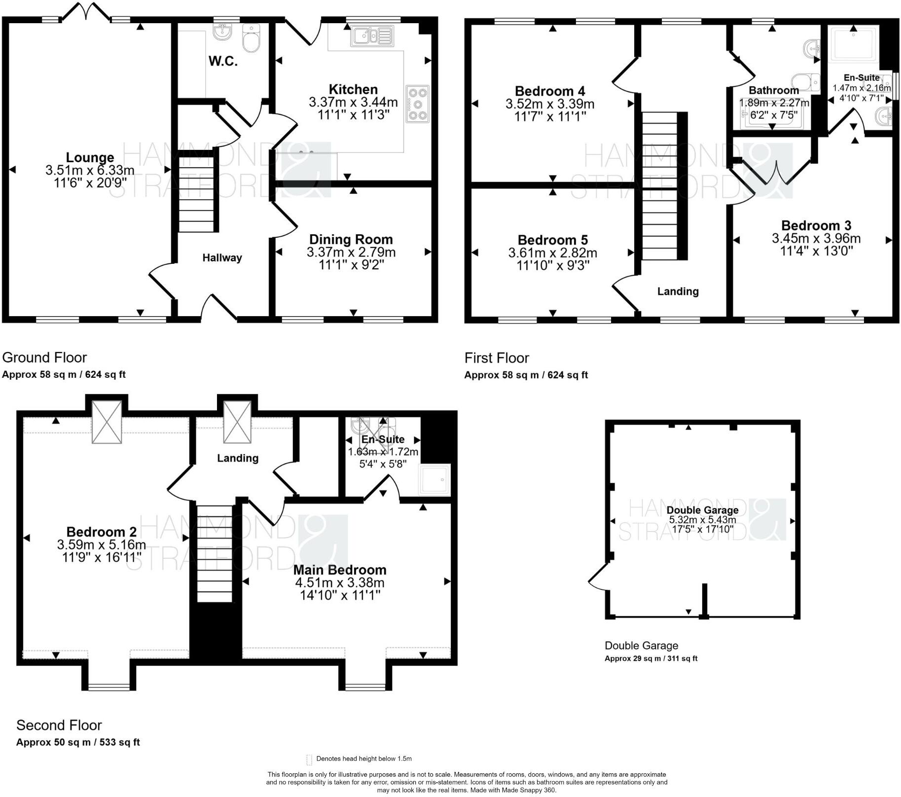
- 5 generous double bedrooms, 2 with en-suite bathrooms
- Modern kitchen with integrated appliances and separate dining room
- Dual aspect lounge with French doors to the garden
- Excellent outdoor space with a split-level garden and double garage
- Off-road parking for multiple vehicles
**Potential Downsides:**
- Located in an affluent area, which may lead to higher council tax (Band F)
- Average-sized plot may limit extensive landscaping or expansion
This beautifully presented detached home in Round House Park offers a perfect blend of contemporary style and family-friendly space, ideal for growing families seeking comfort and accessibility. Boasting five spacious double bedrooms over three levels, this property combines luxury with practicality; two bedrooms feature en-suite shower rooms, ensuring convenience for the whole family. The modern kitchen is equipped with integrated appliances, flowing seamlessly into a separate formal dining room, making it an entertainer’s dream.
The dual aspect lounge, accentuated by French doors that open to a stunning enclosed garden, invites an abundance of natural light — a perfect setting for both relaxing and entertaining. The split-level garden, featuring a shingle and patio area, adds to the charm, offering a peaceful oasis amidst mature shrubs. The double garage and off-road parking provide ample space for vehicles, enhancing your family’s security and convenience.
Perched in desirable Cringleford, residents enjoy proximity to local amenities, schools, and access to Norwich city center, making this a prime spot for families and professionals alike. Don’t miss this opportunity to secure a modern home ready for your personal touch—it won’t last long!











































































