Spacious garden, garage and loft potential near schools and transport.
- Victorian period features and traditional layout
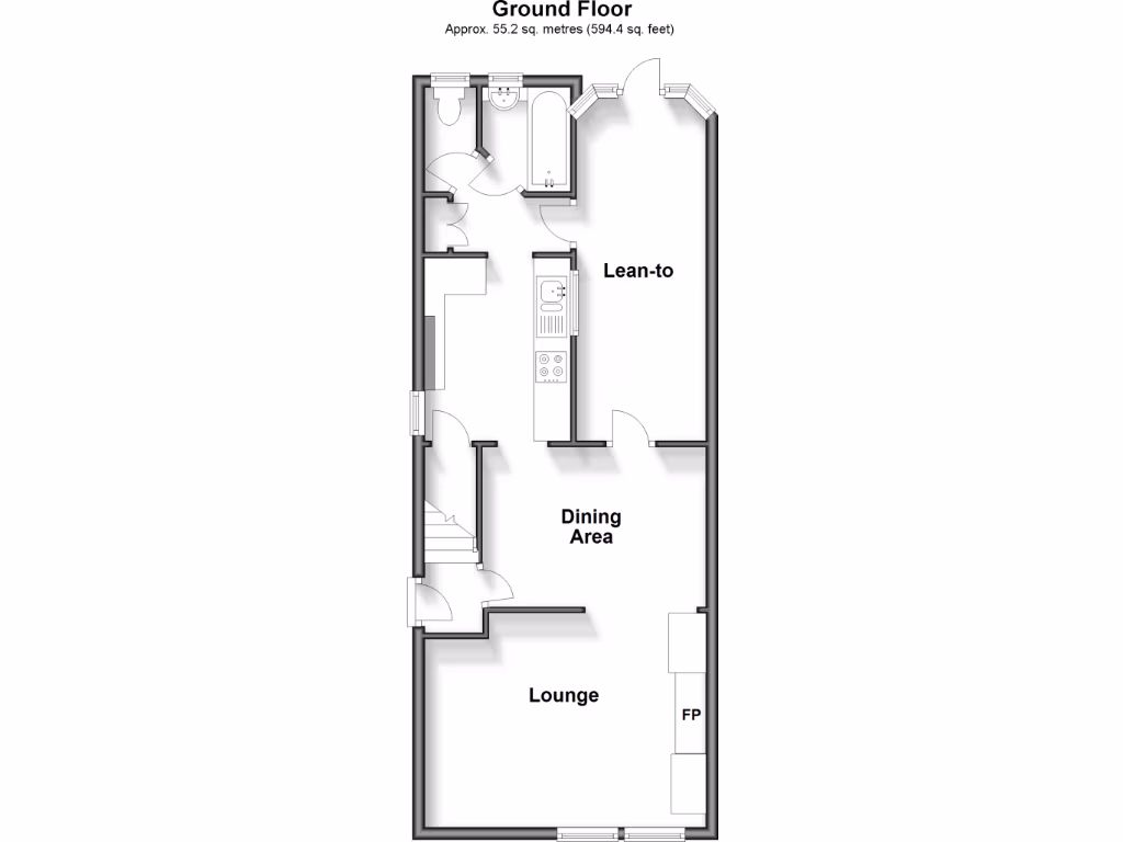
A traditional three-bedroom Victorian semi with genuine period character and a generous rear garden, well suited to growing families who value outdoor space. The house offers flexible living with a separate lounge, dining room and a long utility/conservatory opening onto the garden. A large loft (15'1 x 11'8) provides clear scope to create an additional bedroom or home office, subject to consents.
Practical details are strong: freehold tenure, a garage and shared driveway parking, mains gas central heating with boiler and radiators, double glazing (installation date unknown) and easy walking access to parks, shops and several ‘Good’ rated primary and secondary schools. Transport connections are convenient for Gatwick and London commuters.
The property is presented as a characterful fixer-upper. Some internal areas show dated decor and finishes and a professional residential survey is recommended to confirm services, insulation and any structural or refurbishment costs. Room sizes are modest overall (total about 840 sq ft) so buyers should check space requirements against the floorplan before viewing.
This is a straightforward family opportunity for buyers wanting period features, outdoor space and commuter convenience — with scope to add value through targeted updating and loft conversion (subject to planning and building regulations).
3 bedroom semi-detached house for sale in Norwood Hill Road, Charlwood, Horley, Surrey, RH6 — £425,000 • 3 bed • 3 bath • 1200 ft²
2 bedroom semi-detached house for sale in Charlesfield Road, Horley, Surrey, RH6 — £400,000 • 2 bed • 1 bath • 1217 ft²
3 bedroom house for sale in Charlesfield Road, Horley, Surrey, RH6 — £400,000 • 3 bed • 2 bath • 969 ft²
3 bedroom detached house for sale in Kingsley Close, Horley, Surrey, RH6 — £700,000 • 3 bed • 2 bath • 1633 ft²
3 bedroom semi-detached house for sale in Hevers Avenue, Horley, RH6 — £525,000 • 3 bed • 2 bath • 1119 ft²
3 bedroom semi-detached house for sale in Frenches Road, Redhill, Surrey, RH1 — £500,000 • 3 bed • 2 bath • 1029 ft²














































