Spacious two-bedroom apartment with private terrace, parking and 24-hour concierge in central Wimbledon..
Large private terrace accessed from reception room
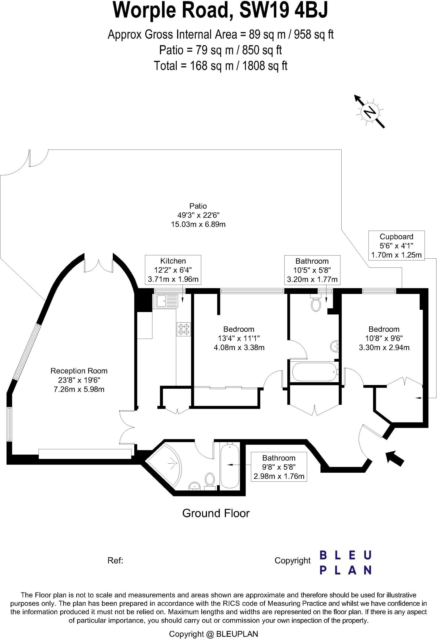
A roomy two-bedroom ground-floor apartment in the heart of Wimbledon, set within a gated development and offering a large private terrace. The layout includes a generous reception room with double doors to the terrace, a principal bedroom with en suite and fitted wardrobes, plus a second double bedroom and modern bathroom — all arranged across about 958 sq ft. Allocated parking, a 24-hour concierge and an EV charging point add convenience for everyday life.
This property suits buyers seeking central town living with strong transport links: Wimbledon mainline and District Line services are roughly 300 metres away, and local shops, cafés and schools are within easy walking distance. The long lease (share of freehold) provides ownership stability.
Practical points to note: heating is electric (room heaters) rather than gas central heating, and the EPC rating is D. Service charges are substantial (listed at £7,690) and council tax is described as expensive — factors that will affect running costs. The apartment is well maintained and contemporary in style, but buyers seeking lower ongoing costs or gas central heating should factor this in.
Overall, this is a large, centrally positioned apartment with strong commuter appeal and immediate outdoor space. It offers good scope for buyers who prioritise location, security and low-maintenance living, but running costs are higher than average and should be checked against personal budgets.
2 bedroom ground floor flat for sale in Garden Apartment, Wimbledon Central, SW19 — £700,000 • 2 bed • 2 bath • 958 ft²
2 bedroom apartment for sale in Worple Road, Wimbledon, SW19 — £780,000 • 2 bed • 2 bath • 1078 ft²
2 bedroom apartment for sale in Chorus Building, 2 Stanley Road, Wimbledon, SW19 — £750,000 • 2 bed • 2 bath • 843 ft²
2 bedroom apartment for sale in Worple Road, Wimbledon, London, SW19 — £625,000 • 2 bed • 2 bath • 930 ft²
2 bedroom apartment for sale in The Broadway, Wimbledon, SW19 — £585,000 • 2 bed • 2 bath • 771 ft²
1 bedroom flat for sale in Worple Road, London, SW19 — £400,000 • 1 bed • 1 bath • 700 ft²














































