**Standout Features:**
- Two-bedroom penthouse with breathtaking panoramic views of the Solent and Isle of Wight.
- Share of the freehold, affording greater ownership flexibility.
- Versatile loft space ideal for storage or potential renovation.
- Modern bathroom suite and fitted kitchen.
- Prime seafront location amidst vibrant local amenities.
**Potential Downsides:**
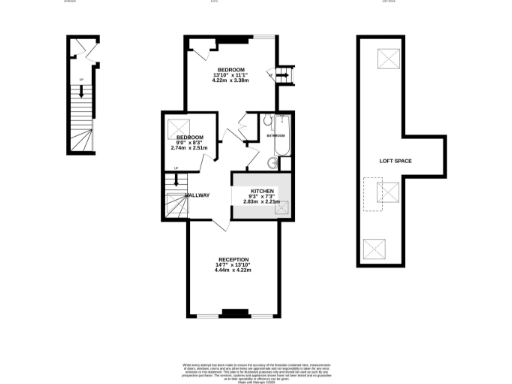
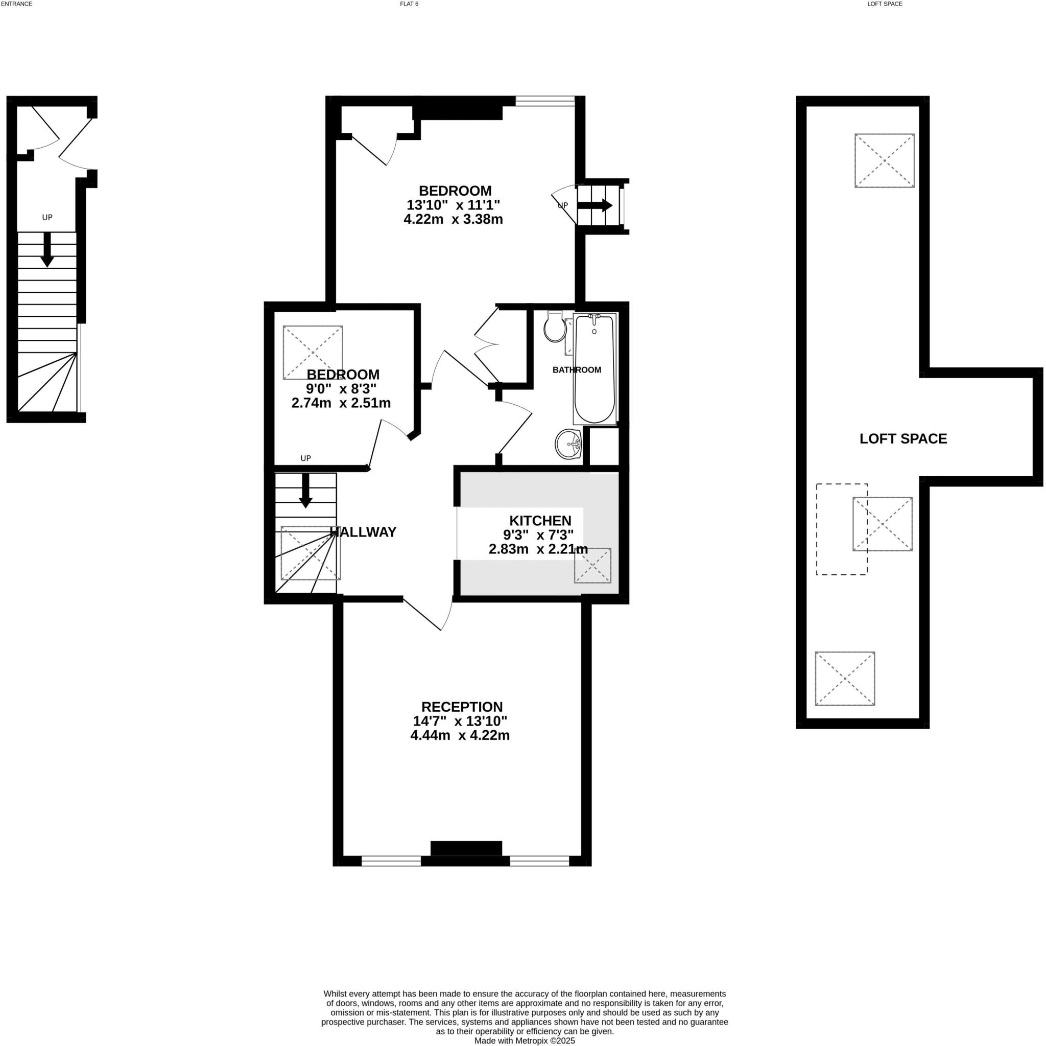
- Small overall size (495 sq. ft.) may not suit larger families.
- Higher crime rates in the local area might be a concern.
- Older property constructed between 1900-1929 may need future maintenance.
**Summary:**
Discover a unique two-bedroom penthouse apartment in the sought-after Osborne Road of Southsea, where stunning views of the Solent and the Isle of Wight create a truly luxurious living experience. This charming residence boasts a bright, airy living room perfect for entertaining, alongside a well-appointed kitchen and modern bathroom suite. Both bedrooms are generous in size, with the master providing access to a delightful rooftop courtyard, adding to the allure of outdoor city living.
While the apartment's compact layout (495 sq. ft.) is perfect for first-time buyers or those seeking a cozy retreat, potential exists for future enhancements within the versatile loft space. Nestled within a vibrant cosmopolitan neighborhood, you'll enjoy easy access to local restaurants, bars, and shops, ensuring convenience at your fingertips. However, be mindful of the local crime rates and the property’s age, indicating the need for eventual maintenance. With its share of freehold, this penthouse offers an exceptional opportunity for comfortable seaside living—schedule your viewing today and seize this exclusive offer before it’s gone!
2 bedroom apartment for sale in South Parade, Southsea, PO5 — £875,000 • 2 bed • 1 bath • 1464 ft²
2 bedroom flat for sale in South Parade, Southsea, PO5 — £337,000 • 2 bed • 2 bath • 712 ft²
2 bedroom flat for sale in South Parade, Southsea, PO5 — £220,000 • 2 bed • 1 bath • 768 ft²
3 bedroom penthouse for sale in Clarence Parade, Southsea, PO5 — £399,950 • 3 bed • 2 bath • 1071 ft²
2 bedroom apartment for sale in South Parade, Southsea, PO4 — £350,000 • 2 bed • 2 bath • 1688 ft²
3 bedroom penthouse for sale in Penthouse, Solent View, St. Helens Parade, Southsea, PO4 — £750,000 • 3 bed • 3 bath • 1495 ft²














































































