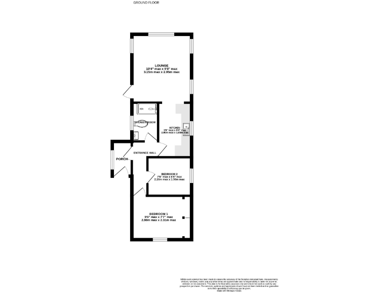
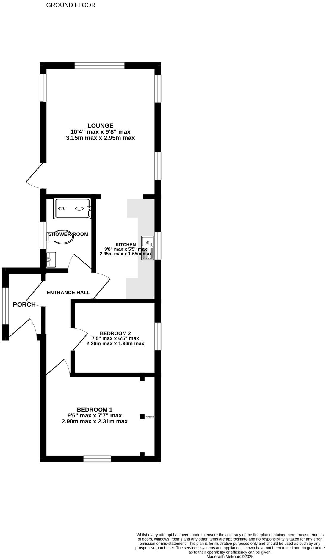
**Standout Features:**
- 2 bedrooms and modern shower room
- Open plan lounge/dining/kitchen area
- Gas central heating and double glazing
- Private enclosed gardens with patio and storage shed
- Located in a mature community (over 50s)
- Chain-free sale
- Proximity to local amenities and the coastal path
**Potential Concerns:**
- Ground rent is relatively high at £1920 per year
- Small living spaces with low ceilings may not suit everyone
- Notable damp issues in living room require attention
- Slow broadband speeds and average mobile signal
This charming two-bedroom park home in the desirable Rustic Park community, situated in the peaceful enclave of Severn Beach, offers a unique opportunity for those seeking comfort in a mature environment. Boasting an airy open-plan living area, well-appointed kitchen, and a pristine modern shower room, the space is perfect for relaxation and easy entertaining.
Step outside to discover private gardens that wrap around the property, creating an ideal outdoor retreat. With essential amenities including a convenience store, bakery, and train station within walking distance, you’ll enjoy easy access to local life and leisure. The community is well-rated for its schools, making it perfect for those who appreciate tranquility while valuing convenience.
Although the home has some renovation potential, including addressing damp issues, this property is ready for you to personalize. Priced attractively at £110,000 with no chain, seize the chance to become part of this delightful community before it's too late.
2 bedroom park home for sale in Salthouse Farm, Shaft Road, Severn Beach, Bristol, BS35 — £245,000 • 2 bed • 1 bath • 572 ft²
2 bedroom park home for sale in Shaft Road, BS35 — £193,500 • 2 bed • 1 bath • 652 ft²
2 bedroom park home for sale in Portbury, Bristol, BS20 — £175,000 • 2 bed • 2 bath • 771 ft²
2 bedroom park home for sale in Woodlands Park, Almondsbury, BS32 — £189,995 • 2 bed • 1 bath
2 bedroom park home for sale in Severn Bridge Park Homes, Beachley, Chepstow, NP16 — £145,000 • 2 bed • 2 bath • 581 ft²
1 bedroom park home for sale in Severn Bridge Park Homes, Beachley, Chepstow, NP16 — £130,000 • 1 bed • 1 bath • 386 ft²










































































