Period charm and modern comfort within sought‑after school catchment.
Chain free freehold cottage in Duffield village centre
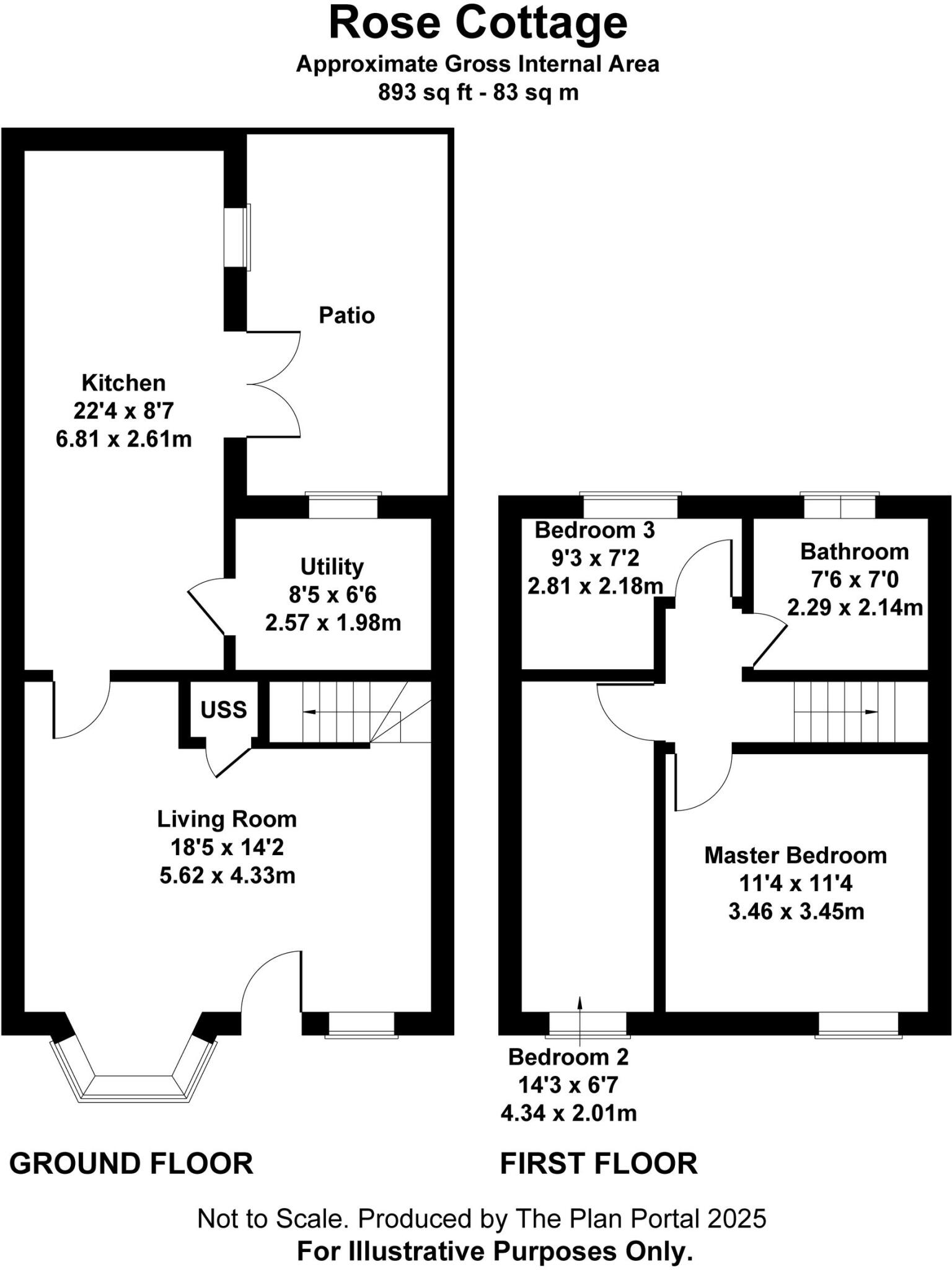
Set in the heart of Duffield Village, Rose Cottage blends late‑Victorian character with a comprehensive, recent refurbishment. The ground floor has been reconfigured for modern family life, with a sociable breakfast kitchen featuring an island and integrated appliances, plus a cosy lounge with a marble‑hearth log burner. A handy utility room with WC adds everyday practicality.
Upstairs provides three bedrooms and a single, well‑finished bathroom — a good fit for young families or professionals seeking village living within the Ecclesbourne School catchment. The house is deceptively spacious at just under 900 sq ft and benefits from mains gas central heating, double glazing and excellent broadband and mobile connectivity.
Outdoors, the cottage garden is small but well planned, with porcelain‑tiled patio areas and established planting providing private, low‑maintenance space for al fresco dining. The property is chain free and freehold, with low local crime and low flood risk, making it straightforward to transact.
Buyers should note a few practical points: the property has an EPC rating of E and the original stone walls are assumed to lack cavity insulation, which may affect running costs. The plot is modest and there is only one bathroom, which could be limiting for larger families. Overall, this is a period cottage that offers immediate move‑in quality with some remaining opportunities for energy improvements.
2 bedroom cottage for sale in King Street, Duffield, DE56 — £160,000 • 2 bed • 1 bath • 437 ft²
2 bedroom end of terrace house for sale in Tamworth Street, Duffield, Belper, Derbyshire, DE56 — £249,950 • 2 bed • 1 bath • 711 ft²
2 bedroom cottage for sale in Eaton Bank, Duffield, DE56 — £240,000 • 2 bed • 1 bath • 550 ft²
3 bedroom cottage for sale in Bank Buildings, Milford, Belper, Derbyshire, DE56 — £335,000 • 3 bed • 1 bath • 1044 ft²
3 bedroom cottage for sale in Sun Lane, Crich, Matlock, DE4 — £180,000 • 3 bed • 1 bath • 840 ft²
1 bedroom cottage for sale in Cromford Road, Crich, Matlock, DE4 — £179,950 • 1 bed • 1 bath • 369 ft²


















































































































































































































































