South-facing garden and rare double garage — good schools nearby, scope to modernise..
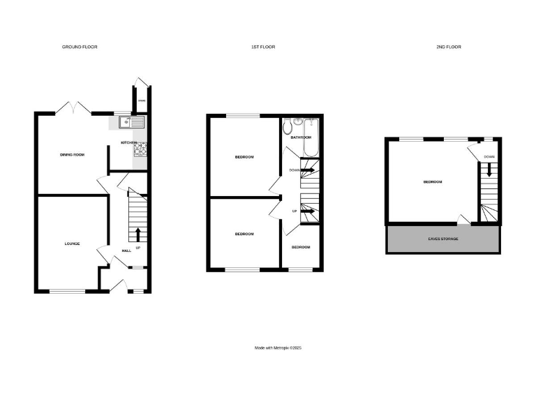
Extended mid-terrace with four bedrooms
Set on a quiet no-through road, this extended four-bedroom mid-terrace offers practical family living and a rare double garage accessed from the rear. Ground floor accommodation includes two reception rooms and a kitchen; upstairs hosts two double bedrooms, a single and a three-piece bathroom, with a large master bedroom occupying the top floor and garden views.
Outdoor space is a genuine strength: a generous south-facing rear garden and block-paved frontage provide private outdoor living and off-street parking. The large double garage is a significant asset for storage, workshop use or secure parking — uncommon for this property type.
The house sits in a popular area with several Good-rated primary and secondary schools nearby, fast broadband and excellent mobile signal, making it suitable for families or buyers seeking practical connectivity. The property is freehold and priced to reflect its size and condition.
Buyers should be aware of material negatives: the total internal area is modest (approx. 786 sq ft), there is only one bathroom for four bedrooms, and the home was constructed 1930–49 with solid brick walls likely lacking cavity insulation. Flooding risk is medium and local crime is above average; the wider area is relatively deprived. Double glazing predates 2002 and the property will benefit from updating and energy-efficiency improvements. These factors mean the house suits buyers willing to refurbish or adapt the space to their needs.
3 bedroom terraced house for sale in Birchfield Road, Coundon, Coventry, West Midlands, CV6 — £220,000 • 3 bed • 2 bath • 1016 ft²
4 bedroom terraced house for sale in Barkers Butts Lane, Coundon, Coventry, CV6 — £310,000 • 4 bed • 3 bath • 1544 ft²
4 bedroom end of terrace house for sale in Westhill Road, Coundon, Coventry, CV6 — £335,000 • 4 bed • 3 bath • 1399 ft²
4 bedroom town house for sale in Grenadier Drive, New Stoke Village, Coventry, CV3 — £265,000 • 4 bed • 2 bath • 1195 ft²
4 bedroom detached house for sale in Bardley Drive, Radford, Coventry, CV6 — £400,000 • 4 bed • 3 bath • 1033 ft²
4 bedroom detached house for sale in Coleby Close, Coventry, West Midlands, CV4 — £600,000 • 4 bed • 2 bath • 1306 ft²


































































