Ready-to-trade ground-floor supermarket unit with strong footfall — short lease and high service charge..
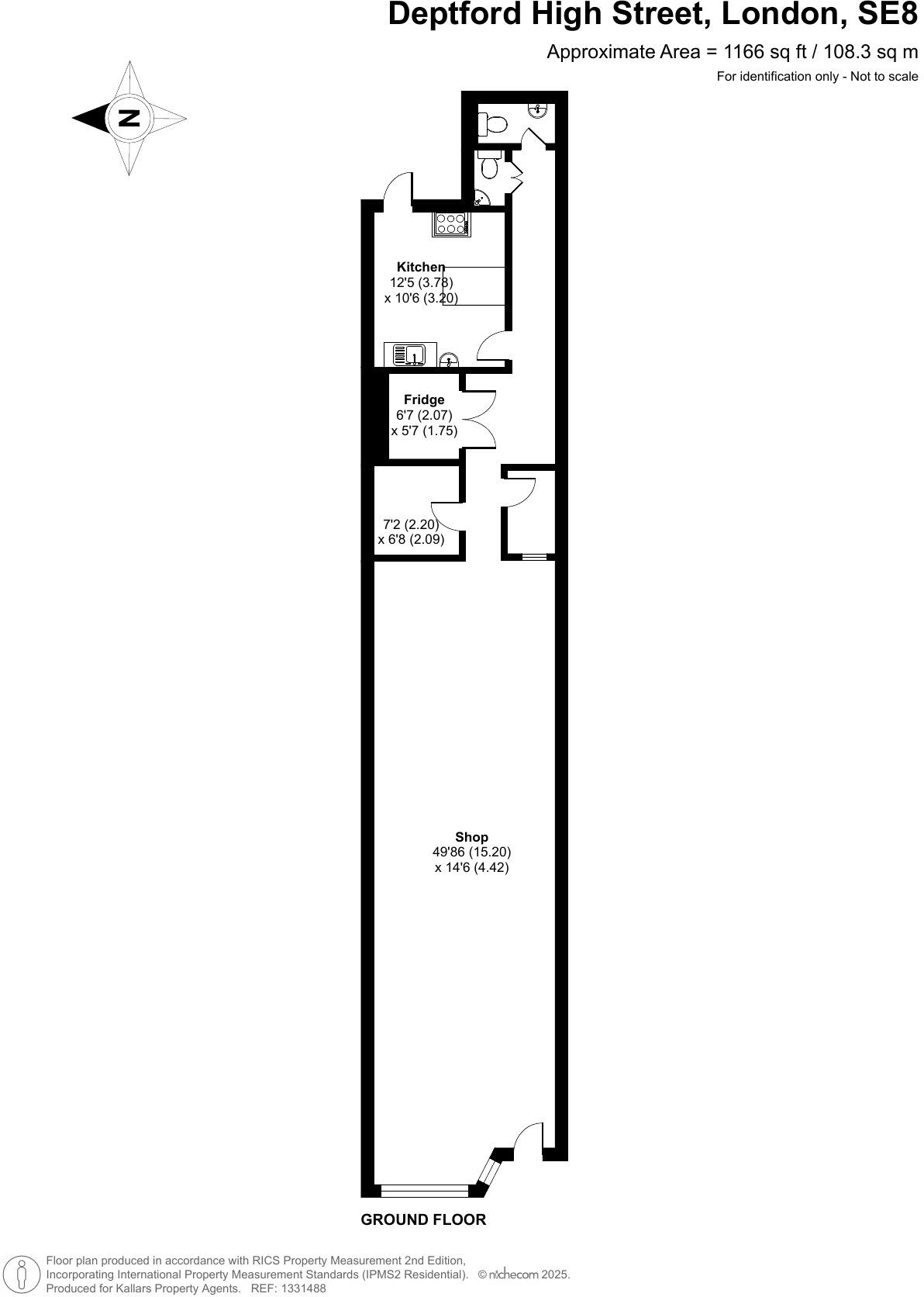
Prominent Deptford High Street ground-floor retail unit, 1,109 sq ft
Currently configured and trading as a supermarket — ready for immediate use
Lease runs to 30.08.2038 (approx. 13 years) — short for lenders
Service charge £23,000 pa — significantly high operating cost
High local crime and very deprived area — increased operational risk
Very slow broadband but excellent mobile signal on site
Requires maintenance/refurbishment to modern standards
Freeholder approval required for purchase
This ground-floor commercial unit on Deptford High Street offers immediate trading potential in a prominent, high-footfall location. The 1,109 sq ft linear layout has been used as a supermarket and is set up for retail operations, reducing initial fit-out costs for a new occupier or investor.
Important commercial constraints are clear: the lease runs only until 30 August 2038 (about 13 years remaining), which will deter many mortgage lenders and may limit purchaser options. The unit carries an annual service charge of £23,000 and sits in an area with high recorded crime and very high deprivation—factors that will affect operating costs, insurance and tenant risk assessments.
Practical considerations include very slow broadband despite excellent mobile signal, and the premises require routine maintenance and potential refurbishment to modern standards. Qualified buyers should verify freeholder acceptance as a condition of purchase and be prepared for immediate operational responsibilities.
For experienced investors or owner-operators who understand inner-city retail risk and can operate on a short lease term, this property provides a visible, ready-to-trade asset in a busy Deptford parade. The location’s strong local amenities and transport links support steady footfall, but purchase decisions should weigh the lease length, high service charge and local socio-economic challenges carefully.
Commercial property for sale in Deptford High Street, SE8 — £700,000 • 3 bed • 1 bath • 2423 ft²
Commercial property for sale in Deptford High Street, London, SE8 — £300,000 • 1 bed • 1 bath • 1400 ft²
Commercial property for sale in Deptford High Street, London, SE8 — £600,000 • 1 bed • 1 bath • 2361 ft²
Office for sale in Unit 3, 1 Creekside, Deptford, SE8 4SA, SE8 — £1,500,000 • 1 bed • 1 bath • 10624 ft²
Commercial property for sale in Creek Road, London, SE8 — £6,000 • 1 bed • 1 bath • 394 ft²
Commercial property for sale in catford Broadway, London, SE6 4, SE6 — £40,000 • 1 bed • 1 bath • 18999 ft²


































