Detached two-bedroom bungalow on a good-sized corner plot
Set on a good-sized corner plot in Shotley Gate, this detached two-bedroom bungalow offers single-storey living ideal for downsizers seeking village life by the estuary. The property includes a detached garage, driveway parking and an enclosed rear garden — easy-to-manage outdoor space with scope for planting or a low-maintenance layout.
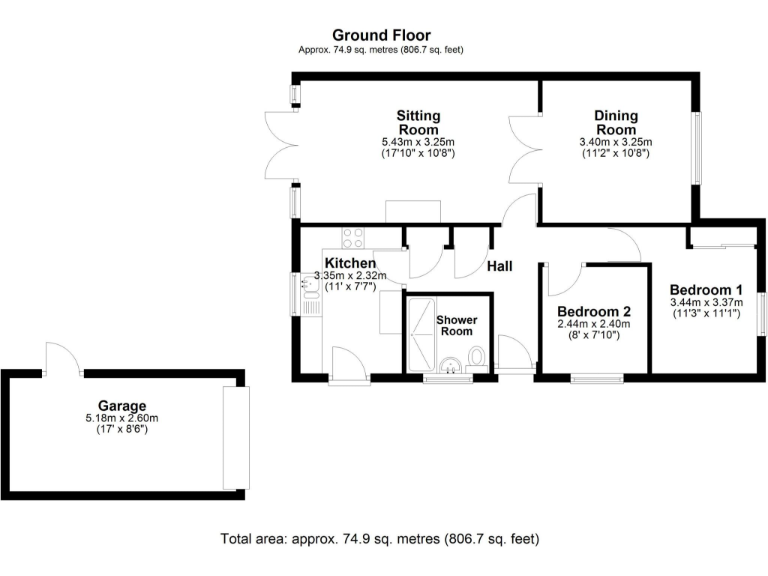
Internally the accommodation is straightforward and comfortable: entrance hallway, two bedrooms, two reception rooms, kitchen and a shower room within approximately 806 sq ft. Double glazing is fitted, but the home is served by electric storage heaters and the cavity walls are only partially insulated, so buyers should expect to review heating efficiency and possible insulation improvements.
There is no onward chain and the freehold tenure simplifies purchase. The bungalow dates from the late 1970s/early 1980s and presents a good opportunity to personalise finishes or upgrade heating and insulation to modern standards. Flood risk is low and local crime levels are very low, adding to the appeal for quieter, secure living.
Shotley Gate is popular for estuary walks and boating amenities and offers local shops, a surgery and regular bus links; Ipswich and larger facilities are within reach. For purchasers seeking a compact, single-floor home with parking, a garden and riverside access potential, this property merits an early internal inspection to assess ongoing maintenance and improvement plans.
2 bedroom detached bungalow for sale in Estuary Crescent, Shotley Gate, Ipswich, IP9 — £300,000 • 2 bed • 1 bath • 881 ft²
3 bedroom bungalow for sale in Estuary Road, Shotley Gate, Ipswich, Suffolk, IP9 — £450,000 • 3 bed • 1 bath • 1133 ft²
2 bedroom bungalow for sale in The Street, Shotley, Ipswich, Suffolk, IP9 — £140,000 • 2 bed • 1 bath • 478 ft²
3 bedroom detached house for sale in Stourside, Shotley Gate, Ipswich, Suffolk, IP9 — £475,000 • 3 bed • 1 bath • 1505 ft²
3 bedroom detached bungalow for sale in Queensland, Shotley, Ipswich, IP9 — £190,000 • 3 bed • 1 bath • 593 ft²
2 bedroom semi-detached house for sale in Orwell View Road, Shotley, IP9 — £260,000 • 2 bed • 1 bath • 764 ft²


































































































