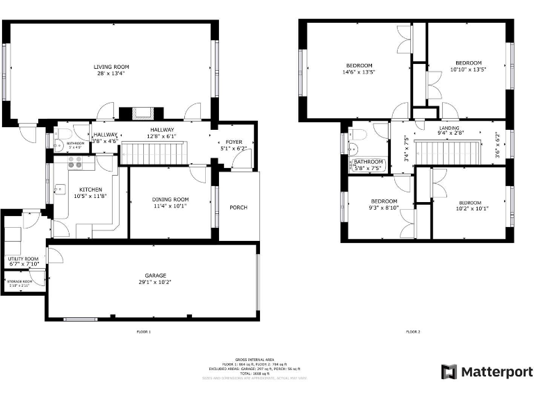
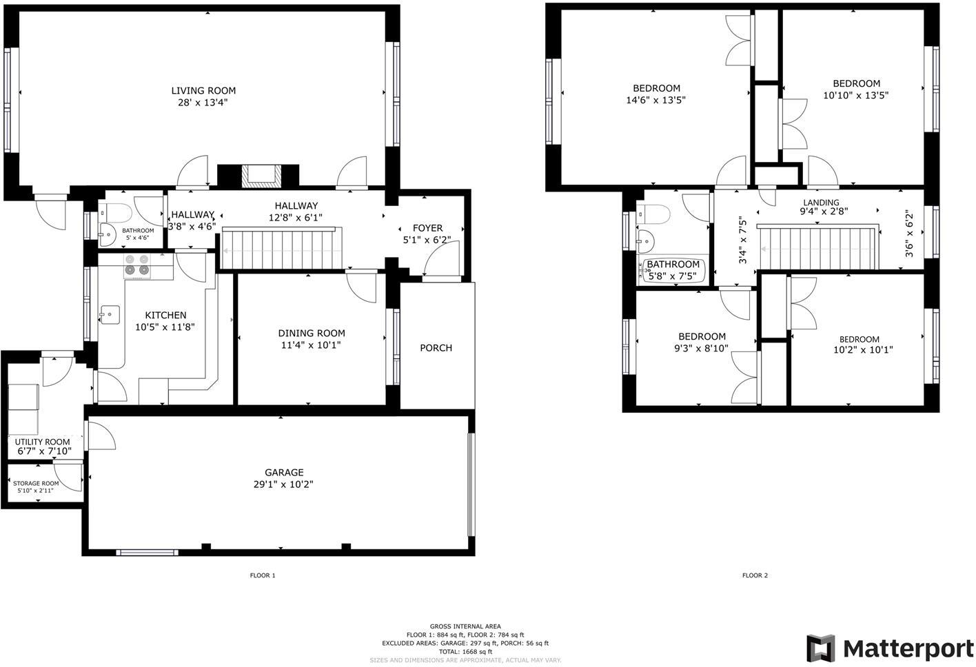
Large four-bedroom detached home with huge garden and renovation potential in Llantwit Major..
Four good-sized bedrooms, spacious principal living room
South-facing private rear garden backing open countryside
Large double-length integrated garage and generous driveway parking
Requires full modernisation; renovation project with scope
EPC rating E; oil-fired heating and likely higher running costs
Cavity walls assumed uninsulated — insulation recommended
Good school catchments, fast broadband and low local crime
Located in popular West End, elevated position with views
A substantial four-bedroom detached house set on a large, south-facing plot in Llantwit Major’s popular West End. The property offers generous living space including a very large living room, separate dining room, utility room, downstairs WC and a double-length integrated garage. Elevated position provides attractive outlooks over open countryside from the front and rear.
The house dates from the late 1960s/early 1970s and retains mid-century character and original features, but it needs modernization throughout. The vendor notes the property requires renovation work; heating is oil-fired via boiler and radiators and walls are cavity-built with no added insulation (assumed). The EPC rating is E and council tax banding is high — these are important running-cost considerations.
This home will suit a family or buyers seeking a renovation project with scope to improve energy efficiency and modernise interiors. Good school catchments, fast broadband, low local crime and easy access to local amenities and the coastal rail line are practical advantages. The sizeable, private rear garden offers room for landscaping, extension or outdoor living improvements (subject to consent).
Buyers should expect to budget for refurbishment, heating and insulation upgrades, and general maintenance to bring the house up to modern standards. Its combination of plot size, layout and location make it a strong proposition for buyers prepared to invest in renovation to unlock long-term value.
4 bedroom detached house for sale in 1 White House Close, Flanders Road, Llantwit Major, The Vale of Glamorgan CF61 1RL , CF61 — £595,000 • 4 bed • 3 bath • 2007 ft²
4 bedroom detached house for sale in Manor Park, Llantwit Major, CF61 — £289,950 • 4 bed • 1 bath • 1149 ft²
4 bedroom detached house for sale in River Walk, Llantwit Major, CF61 — £499,950 • 4 bed • 3 bath • 1301 ft²
4 bedroom detached house for sale in 32 Cardigan Crescent, Llantwit Major, The Vale of Glamorgan CF61 2GP, CF61 — £340,000 • 4 bed • 2 bath • 1347 ft²
4 bedroom detached house for sale in Clos Y Wiwer, Llantwit Major, CF61 — £400,000 • 4 bed • 2 bath • 1088 ft²
4 bedroom detached house for sale in Colhugh Street, Llantwit Major, CF61 — £585,000 • 4 bed • 1 bath • 2443 ft²


















































































