PL28 8DS - 3 bedroom semidetached house for sale in Alan Road, Padstow…

View on Property Piper

3 bedroom semi-detached house for sale in Alan Road, Padstow, PL28

Summary - 15 Alan Road, PADSTOW PL28 8DS

3 bed 1 bath Semi-Detached

**Standout Features:**
- Characterful red brick semi-detached house
- Three bedrooms with estuary views
- Stylish family bathroom and integrated modern kitchen
- Fully enclosed, south-facing garden with patio
- Utility room with shower and additional storage
- Short walk to Padstow’s vibrant harbor, cafes, and restaurants

**Notable Concerns:**
- Average broadband speeds (though superfast available in area)
- Average room sizes, notable only but no explicit downsides stated

Nestled in a tranquil residential area of picturesque Padstow, 15 Alan Road is a charming three-bedroom semi-detached home that stylishly blends modern updates with original character. With its attractive red brick façade and flooded with natural light, this property offers a spacious kitchen/diner perfect for family gatherings and a cozy living room featuring a traditional fireplace. Enjoy the convenience of a utility room and a lovely south-facing garden, ideal for summer evenings.

The property is centrally located, just a short stroll from the bustling harbor, renowned dining spots, and essential amenities, making it a prime choice for families or as a charming holiday retreat. With excellent connectivity options and access to highly rated schools, this home not only offers comfort and security but also the potential for future personalization and expansion. Don't miss the opportunity to claim a slice of Padstow living in this desirable location—properties like this don’t stay on the market for long!

Property Details

Brochure Descriptions

Image Descriptions

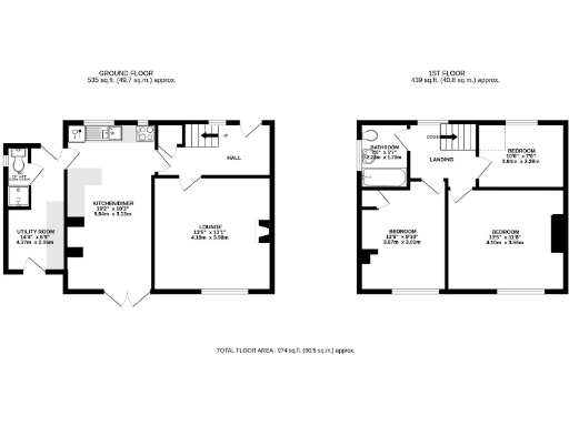
Floorplan Description

Rooms

Textual Property Features

Detected Visual Features

EPC Details

Nearby Schools

Nearest Bars And Restaurants

,,,,}

Nearest General Shops

,,}

Nearest Grocery shops

,,}

Nearest Supermarkets

,,}

Nearest Religious buildings

,,}

Nearest Medical buildings

,,,}

Nearest Leisure Facilities

,,,,}

Nearest Tourist attractions

,,}

Nearest Train stations

,,,,}

Nearest Bus stations and stops

,,,,}

Nearest Hotels

,,}

Tags

Local Market Stats

AirBnB Data

Similar Properties

Meta

High Res Images

Compatible Images

Low res Images

Thumbnails

Raw Images

High Res Floorplan Images

Compatible Floorplan Images

Low res Floorplan Images

FloorplanImages Thumbnail

Raw Floorplan Images