PE13 3RB - 3 bedroom detached bungalow for sale in Church Road, Walsok…

View on Property Piper

3 bedroom detached bungalow for sale in Church Road, Walsoken, PE13

Summary - Church Road, Walsoken PE13 3RB

3 bed 2 bath Detached Bungalow

Spacious new-build bungalow with garage, garden and personalised finish options.
127m² (approx.1367 sq ft) contemporary single-storey living
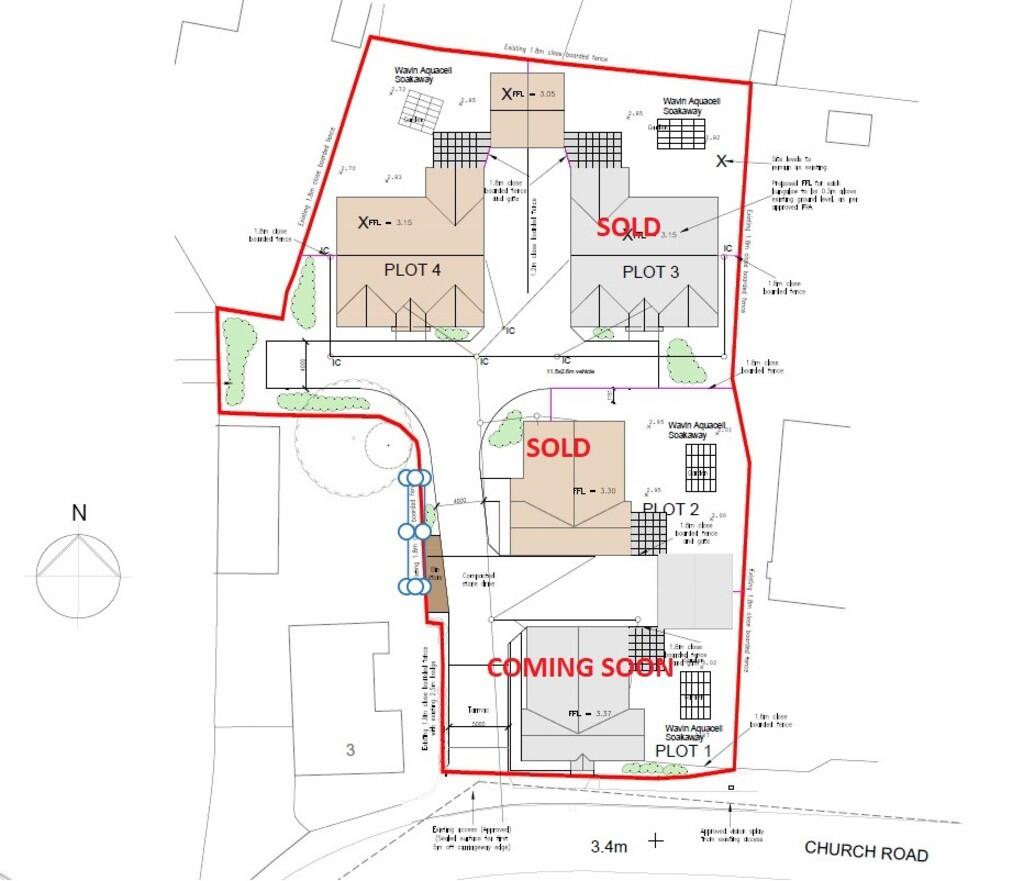
This three-bedroom detached bungalow offers 127m² (approx. 1,367 sq ft) of contemporary single-storey living in a small, private development on Church Road, Walsoken. The layout centres on a large open-plan kitchen/dining/living space with bi-fold doors to the rear garden, a master bedroom with en suite, a family bathroom and an attached single garage. High-spec energy features include air-source heating and underfloor heating throughout.

The home is under construction with estimated completion in late 2025 and purchasers can work with the developer (stage permitting) to personalise finishes and select floor coverings from the developer’s range. External landscaping is unfinished at present; the plot includes driveway parking, a fenced rear garden and a patio area once complete. New-home warranty will be provided.

Practical local factors: the property sits in a semi-rural area with good access to nearby town amenities, low recorded crime and fast broadband. Mobile signal is average and the wider area shows higher levels of deprivation — factors to weigh if you need immediate local services or resale considerations. The site is an active construction area; viewings will be managed for safety until completion.

This bungalow suits buyers seeking a modern, single-storey executive home — families wanting ground-floor living, downsizers seeking generous space, or those looking to personalise a new build. Be aware the specification is a guide and some internal or external details may be adjusted by the builder during completion.

Property Details

Image Descriptions

Rooms

Textual Property Features

Target Audience

AI Tags

Detected Visual Features

Nearby Schools

Nearest Bars And Restaurants

,,,,}

Nearest General Shops

,,}

Nearest Grocery shops

,,}

Nearest Supermarkets

,,}

Nearest Religious buildings

,,}

Nearest Medical buildings

,,,}

Nearest Leisure Facilities

,,,,}

Nearest Tourist attractions

,,}

Nearest Train stations

,,,,}

Nearest Bus stations and stops

,,,,}

Nearest Hotels

,,}

Tags

Local Market Stats

AirBnB Data

Similar Properties

Meta

High Res Images

Compatible Images

Low res Images

Thumbnails

Raw Images

High Res Floorplan Images

Compatible Floorplan Images

Low res Floorplan Images

FloorplanImages Thumbnail

Raw Floorplan Images