Affordable entry-level purchase near parks, schools and fast city links.
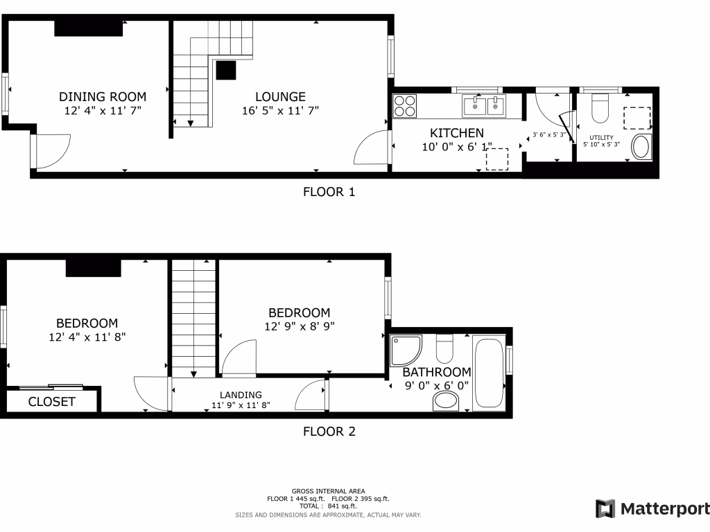
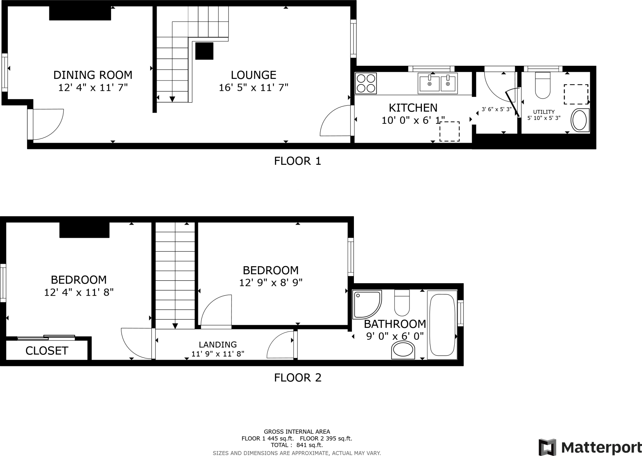
- Freehold mid-terrace with vacant possession
- Two double bedrooms and one family bathroom
- Gas central heating and uPVC double glazing
- Utility room plus integrated gas hob in kitchen
- Private rear yard; communal council-maintained courtyard
- Solid brick construction; no known wall insulation
- Very small plot and limited private outdoor space
- Area classed as very deprived; good rental demand potential
A straightforward two-bedroom mid-terrace offering an entry point into Manchester property ownership. The house benefits from gas central heating, uPVC double glazing and a practical layout with a front reception, lounge, kitchen with integrated hob and a separate utility room. Two double bedrooms and a bathroom sit over the first floor, giving comfortable accommodation for a couple or small family.
Outside, there is a private rear yard and access to a council-maintained communal garden/courtyard opposite Bradford Park, plus very low local crime and excellent transport links toward the city centre. The property is offered with vacant possession and is presented as average-sized overall — suitable for first-time buyers or investors seeking a let-ready home after minor updating.
Buyers should note this Victorian/Edwardian-era terrace likely has solid brick walls with no known insulation and an unknown age of glazing and services. The area is classed as very deprived, and the plot is very small, so outdoor space is limited. Interested parties should verify all services, fittings and measurements independently, and consider potential energy-efficiency upgrades during any refurbishment.
2 bedroom terraced house for sale in Alexandra Avenue, Manchester, Greater Manchester, M14 — £210,000 • 2 bed • 1 bath • 797 ft²
2 bedroom terraced house for sale in Wadeson Road, Manchester, M13 — £270,000 • 2 bed • 1 bath • 894 ft²
2 bedroom terraced house for sale in Old Road, Failsworth, Manchester, M35 — £144,950 • 2 bed • 1 bath • 821 ft²
3 bedroom terraced house for sale in Mill Street, Bradford Beswick, M11 — £250,000 • 3 bed • 1 bath • 969 ft²
3 bedroom terraced house for sale in Lloyd Street South, Manchester, Greater Manchester, M14 — £250,000 • 3 bed • 1 bath • 975 ft²
2 bedroom terraced house for sale in Boscombe Street, Manchester, Greater Manchester, M14 — £220,000 • 2 bed • 1 bath • 760 ft²






















































































































































