Three-bedroom semi with strong renovation potential in a well-connected suburb.
Chain free and ready for immediate purchase
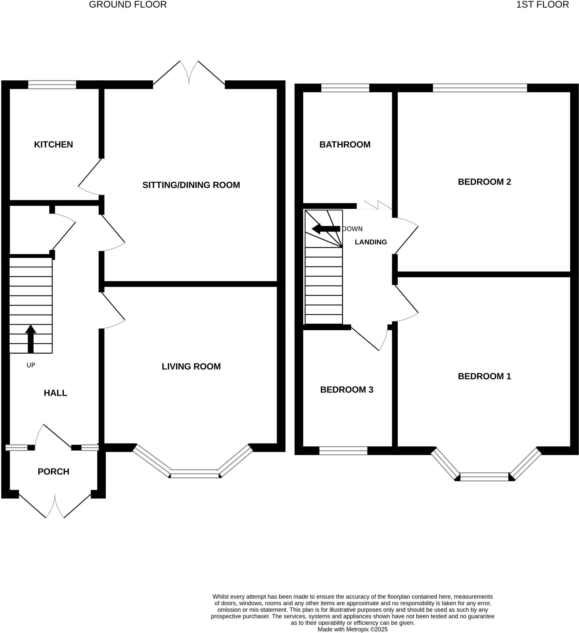
Three generous bedrooms, circa 732 sq ft overall
Private driveway for two to three cars, off-street parking
Small, low-maintenance rear garden
Requires full renovation and modernisation throughout
EPC D; mains gas boiler and double glazing present
Medium flood risk in area; local crime levels are high
Freehold tenure; compact plot in a deprived area
Offered with no onward chain, this three-bedroom semi-detached home on Worcester Road is a clear project for buyers who want to add value. The house dates from the 1930s and retains period features such as bay windows and a traditional red-brick exterior. Internally it is a blank canvas with carpets removed and décor stripped back, ready for full modernisation.
Practical elements include a private driveway with space for two to three cars, a small but easily maintainable rear garden, and double glazing (install date unknown). Heating is by mains gas boiler and radiators; mains services are present. The property is freehold and compact at about 732 sq ft, suited to buyers who prioritise location and renovation potential over generous internal space.
Buyers should factor in clear renovation needs: the home requires updating throughout and likely improvements to insulation and electrics. The area has a medium flood risk and higher local crime levels; surrounding neighbourhood indicators show deprivation and mixed public services. EPC rating D and council tax band B are positives for running costs while improvements are undertaken.
This property will suit first-time buyers seeking a lower-price entry with scope to add value, or investors comfortable with a refurbishment project. Local schools include several rated Good, with transport links and basic amenities nearby. Be realistic about carrying costs, renovation time, and local area factors when considering this purchase.
3 bedroom semi-detached house for sale in HALESOWEN, Bournes Crescent, B63 — £250,000 • 3 bed • 1 bath • 816 ft²
3 bedroom semi-detached house for sale in Northwood Park Road, Wolverhampton, WV10 — £170,000 • 3 bed • 1 bath
3 bedroom semi-detached house for sale in Westgate, Aldridge, WS9 8BS, WS9 — £260,000 • 3 bed • 1 bath
2 bedroom end of terrace house for sale in Telford Avenue, Walsall, WS6 — £200,000 • 2 bed • 1 bath • 646 ft²
3 bedroom semi-detached house for sale in Pelsall Lane, Walsall, WS4 1NQ, WS4 — £200,000 • 3 bed • 1 bath • 758 ft²
3 bedroom semi-detached house for sale in Devon Road, Willenhall, WV13 — £230,000 • 3 bed • 1 bath






































