**Standout Features:**
- Single building plot with full planning consent for a three-bedroom detached cottage
- Located in a sought-after conservation village
- Off-road parking and attractive gardens on three sides
- Quiet no-through road with a serene rural setting
- Close proximity to local amenities, including a restaurant, public house, and primary school
- Near Yeovil for broader shopping and transport options
**Summary:**
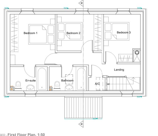
Discover an exciting opportunity to build your dream home in the picturesque village of East Coker. This spacious single building plot, nestled in a tranquil no-through road, boasts full planning consent for a charming three-bedroom cottage with standout features such as natural hamstone construction and heritage clay tiled roof. The proposed layout includes a delightful lounge/dining area, well-equipped kitchen, three inviting bedrooms—one with an en suite—and generous gardens enveloping the property, perfect for family gatherings or quiet afternoons.
Situated just a stone's throw from local amenities, including a beloved public house and primary school, this plot offers the ideal blend of rural charm and modern convenience. With Yeovil only 3.5 miles away, access to shopping and transport options, including mainline rail links, is easily within reach. This rare opportunity is attractively priced at £125,000 and ready for you to seize. Don't miss your chance to create a personalized retreat in this thriving countryside community. A truly unique property with potential that won't last long on the market!
Plot for sale in East Coker, Yeovil, BA22 — £500,000 • 1 bed • 1 bath
Plot for sale in East Coker, Yeovil, BA22 — £400,000 • 1 bed • 1 bath
4 bedroom detached house for sale in East Coker, Yeovil, Somerset, BA22 — £735,000 • 4 bed • 2 bath • 1944 ft²
3 bedroom house for sale in Burton Lane, East Coker, Yeovil, BA22 — £640,000 • 3 bed • 2 bath • 1354 ft²
2 bedroom bungalow for sale in Townsend Mead, East Coker, Yeovil, Somerset, BA22 — £380,000 • 2 bed • 1 bath • 931 ft²
3 bedroom detached house for sale in Mill Lane, East Coker, Yeovil, BA22 — £495,000 • 3 bed • 2 bath • 1925 ft²














































