Well‑presented 2‑bed bungalow with estuary views, garage and driveway parking.
Extended single‑storey bungalow with orangery and flexible living space
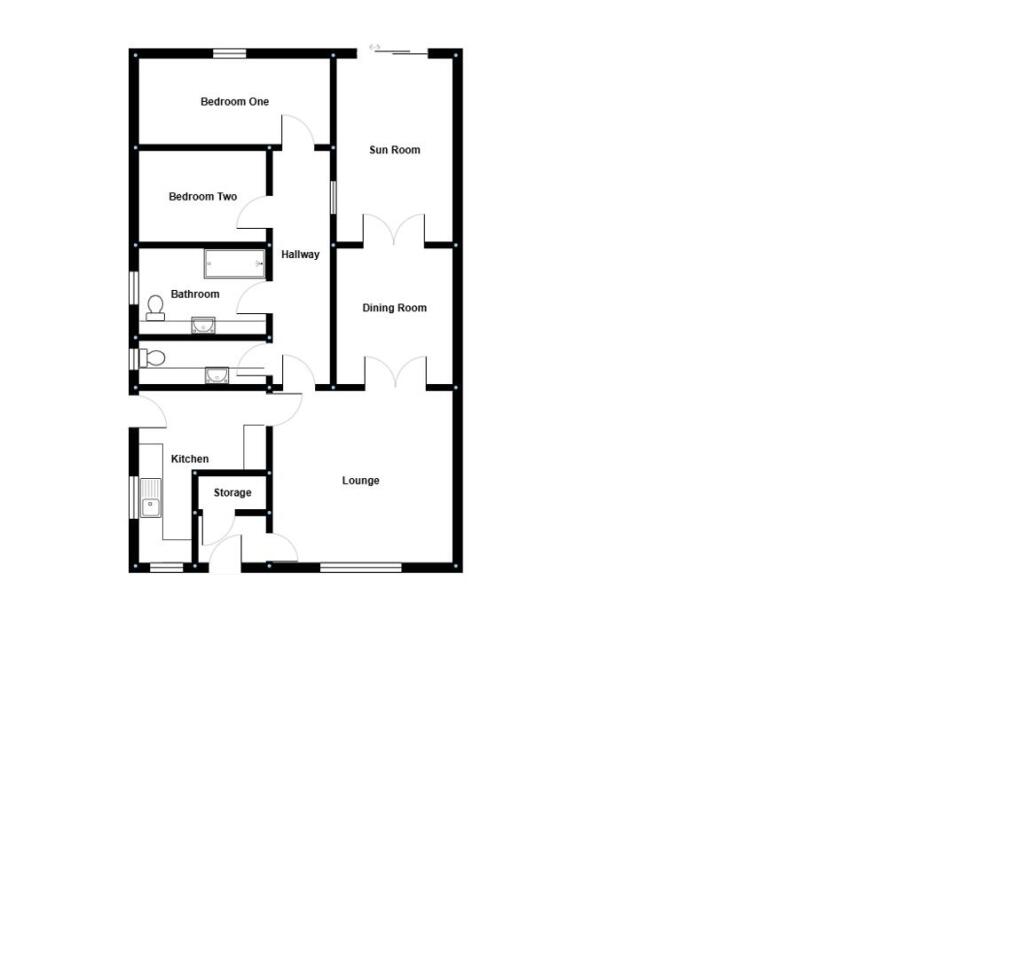
This extended semi‑detached bungalow on Cadnant Drive offers comfortable single‑storey living with versatile rooms and far‑reaching estuary views. The orangery and a generous lounge create bright living space, while the dining room can serve as an occasional third bedroom or home office. Practical additions include a utility room, separate W.C., and detached garage with driveway parking.
Finished in tidy, modern decor with contemporary kitchen fittings and a low‑maintenance rear garden, the house suits downsizers, first‑time buyers or investors seeking a well‑presented property with easy access to local amenities. The single‑storey layout removes the need for stairs and the plot provides decent outdoor space without onerous upkeep.
Buyers should note local context: the area records above‑average crime and a high level of deprivation, which may affect insurance, resale timings and community services. Measurements and fixtures should be independently checked; the vendor’s particulars are for guidance only. There is no reported flood risk for the site.
Overall, this bungalow balances practical, updated accommodation and estuary views with straightforward maintenance and parking — a sensible move for those prioritising single‑storey convenience and location over a rural, secluded setting.
2 bedroom detached bungalow for sale in Field Park, Connah's Quay, Deeside, CH5 — £220,000 • 2 bed • 1 bath • 672 ft²
2 bedroom semi-detached bungalow for sale in Bagillt, Flintshire, CH6 — £175,000 • 2 bed • 1 bath • 657 ft²
3 bedroom bungalow for sale in Merllyn Lane, Bagillt, Flintshire, CH6 — £265,000 • 3 bed • 1 bath • 1303 ft²
3 bedroom bungalow for sale in Sunnyside, Bagillt, Flintshire, CH6 — £185,000 • 3 bed • 1 bath • 1304 ft²
2 bedroom semi-detached bungalow for sale in Bryntirion Road, Bagillt, CH6 — £210,000 • 2 bed • 1 bath • 775 ft²
2 bedroom detached bungalow for sale in Sevenacre Close, Bagillt, Flintshire, CH6 — £210,000 • 2 bed • 1 bath • 1010 ft²














































































