**Charming Four-Bedroom Farmhouse in Serene Rural Retreat**
- **Standout Features:**
- Spacious and character-filled four-bedroom detached farmhouse
- Modern bathroom suites and large living areas
- Double-height entrance with exposed beams
- Unique sunken plunge pool, perfect for wellness renovations
- Expansive lawned gardens with a cobbled driveway
- **Concerns:**
- Potential renovation needed for the extension and plumbing
- Property constructed before 1900; some solid brick walls lack insulation
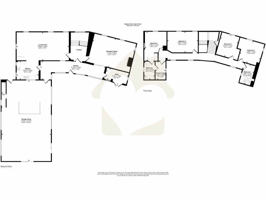
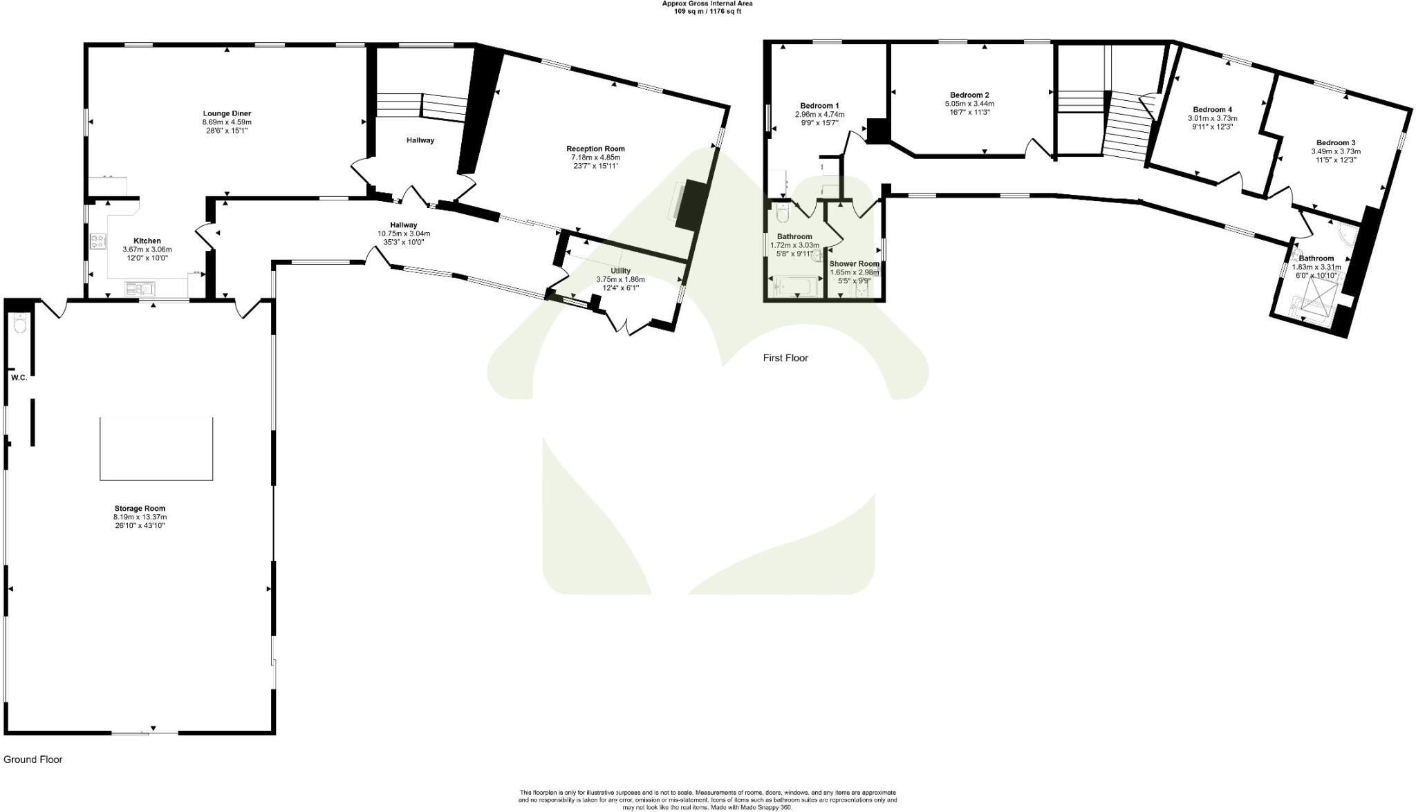
Discover a unique blend of rustic charm and modern comfort in this stunning four-bedroom farmhouse, nestled in the heart of an affluent rural community. With ample living spaces, including a grand open-plan kitchen and dining area, this home is perfect for families or those seeking a tranquil retreat—ideal for entertaining or just enjoying cozy evenings in front of the magnificent brick fireplace.
The double-height entrance hall showcases the property’s character, while the large bedrooms, including a master suite with en-suite, provide generous accommodation for all your needs. The standout feature of this residence is the expansive outdoor space, complete with serene gardens that invite relaxation and outdoor hosting. Additionally, the unique sunken plunge pool offers versatility for future wellness or recreation spaces, giving you the creative freedom to personalize this charming residence further.
Families will appreciate access to several well-rated primary schools in the area, ensuring a supportive community environment. While the property has some requirements for modernization, its extraordinary character and potential make it truly special. Don’t miss this rare opportunity to embrace comfortable countryside living in a desirable hamlet; schedule your viewing today before it’s gone!
4 bedroom detached house for sale in Bartle Lane, Lower Bartle, Preston, Lancashire, PR4 — £750,000 • 4 bed • 2 bath • 2439 ft²
5 bedroom farm house for sale in Trigg Lane, Heapey, PR6 — £1,250,000 • 5 bed • 3 bath • 2781 ft²
4 bedroom semi-detached house for sale in Preston Road, Crossmoor, Preston, Lancashire, PR4 — £485,000 • 4 bed • 2 bath • 1962 ft²
4 bedroom detached house for sale in Goosnargh Lane, Goosnargh, Preston, PR3 — £650,000 • 4 bed • 3 bath • 2917 ft²
4 bedroom detached house for sale in Fox Lane, Hoghton, Preston, PR5 — £800,000 • 4 bed • 2 bath • 4804 ft²
3 bedroom semi-detached house for sale in Fairhurst Lane, Inglewhite, Preston, Lancashire, PR3 — £325,000 • 3 bed • 1 bath • 1211 ft²


















































































































































































































