**Standout Features:**
- Spacious four-bedroom detached chalet bungalow with scenic views
- Master bedroom with en-suite and additional guest rooms with en-suites
- Oversized garage and ample off-road parking
- Generous outdoor space with landscaped gardens backing onto open fields
- EPC Rating: C; Council Tax Band: D
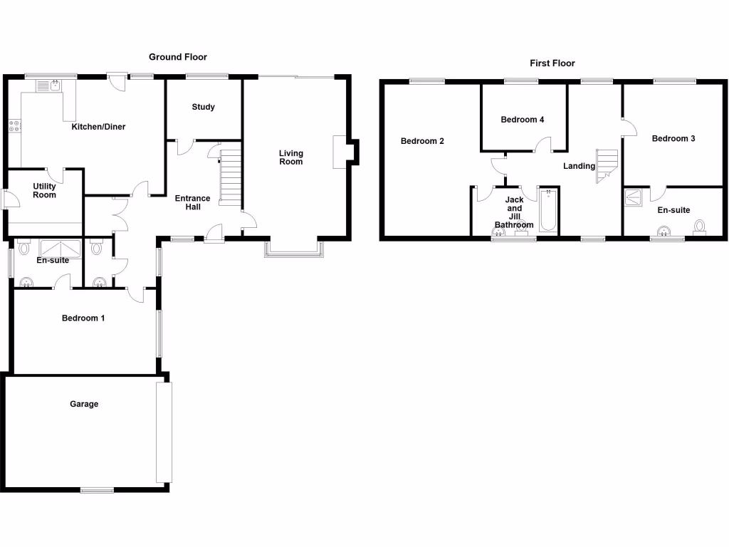
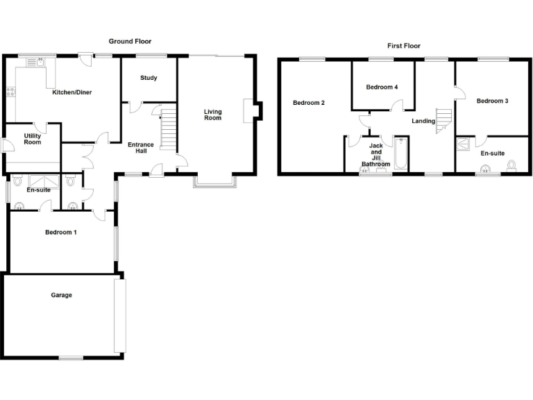
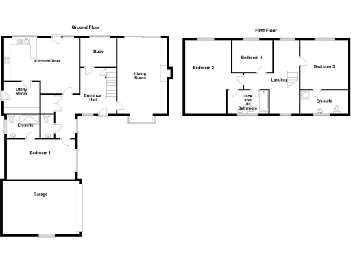
Nestled in a tranquil setting, this four-bedroom detached chalet bungalow combines comfort and versatility with its thoughtfully designed layout. The spacious living areas include a welcoming lounge with an open fire, a bright kitchen/dining room with a utility room, and a dedicated study space. The master suite features an en-suite bathroom, while the upper level offers three additional bedrooms, including two with en-suite facilities, ensuring convenience for family or guests.
Outside, enjoy a beautifully landscaped garden perfect for leisurely afternoons, along with a large gravelled driveway leading to a spacious garage. With the stunning backdrop of open fields, this property is an ideal retreat for families or those looking to invest in a peaceful rural lifestyle. However, interested buyers should note the need for routine maintenance to keep the property at its best. This appealing home offers both immediate comfort and future renovation potential, making it a noteworthy opportunity in a desirable village setting. Don't miss your chance to secure such a unique property!
3 bedroom detached house for sale in Edenham Road, Hanthorpe, Bourne, Lincolnshire, PE10 — £400,000 • 3 bed • 2 bath • 2033 ft²
4 bedroom detached bungalow for sale in Pointon Road, Sleaford, NG34 — £465,000 • 4 bed • 2 bath • 3402 ft²
4 bedroom detached house for sale in Horse Chestnut Lane, Rippingale, Bourne, Lincolnshire, PE10 — £510,000 • 4 bed • 2 bath • 1577 ft²
4 bedroom detached house for sale in Horsepit Lane, Pinchbeck, Spalding, Lincolnshire, PE11 — £475,000 • 4 bed • 2 bath • 2416 ft²
3 bedroom bungalow for sale in Woolram Wygate, Spalding, Lincolnshire, PE11 — £450,000 • 3 bed • 2 bath
3 bedroom bungalow for sale in Grosvenor Avenue, Bourne, Lincolnshire, PE10 — £335,000 • 3 bed • 2 bath • 2029 ft²


























































