Immediate income with car park and value-add refurbishment potential.
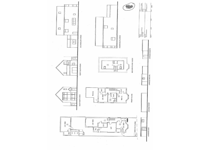
Freehold development: three separate income-producing units
A rare freehold investment comprising three let units: a 6-bedroom detached HMO, a 5-bedroom semi-detached HMO and a separate nine-space car park. Together they produce £104,460pa (c.8.2% yield) with tenants in situ, offering immediate income for a buyer seeking hands-on rental returns.
The two Victorian semi-detached units present high ceilings and spacious rooms suited to HMO layouts; the detached mock-Tudor house provides medium-sized rooms and off-street parking bays. The site’s configuration and existing tenancies reduce void risk and create clear short-term cash flow, while the car park adds ancillary income or redevelopment potential (subject to consent).
Buyers should note this is an operating investment sold with tenants in place, so new ownership will assume existing tenancy agreements and management responsibility. Some units will likely benefit from targeted refurbishment and ongoing HMO compliance and upkeep costs. The properties sit in an affluent area with fast broadband, excellent mobile signal and good local schools, supporting stable demand from professionals and students.
This purchase suits an investor or portfolio buyer wanting immediate rental income and scope to enhance value through management, selective upgrades or long-term repositioning. All material factors, including the need for ongoing HMO management and potential refurbishment, are reflected in the price and projected yield.
5 bedroom detached house for sale in Southbourne Road, Southbourne, Southbourne, BH6 — £500,000 • 5 bed • 5 bath • 2017 ft²
6 bedroom detached house for sale in Mcwilliam Close, Poole, BH12 — £500,000 • 6 bed • 3 bath • 1411 ft²
5 bedroom terraced house for sale in Riggs Gardens, Wallisdown, BH11 — £350,000 • 5 bed • 2 bath • 1111 ft²
5 bedroom detached house for sale in Student House, Bournemouth, BH9 — £385,000 • 5 bed • 2 bath • 1243 ft²
6 bedroom detached house for sale in Jameson Road, Bournemouth, BH9 — £480,000 • 6 bed • 4 bath • 2218 ft²
5 bedroom terraced house for sale in Langhorn Road, Southampton, Hampshire, SO16 — £350,000 • 5 bed • 2 bath • 1090 ft²














































































