Compact, school‑close townhouse with garage and approved extension potential.
Four bedrooms over three storeys with ensuite to principal bedroom
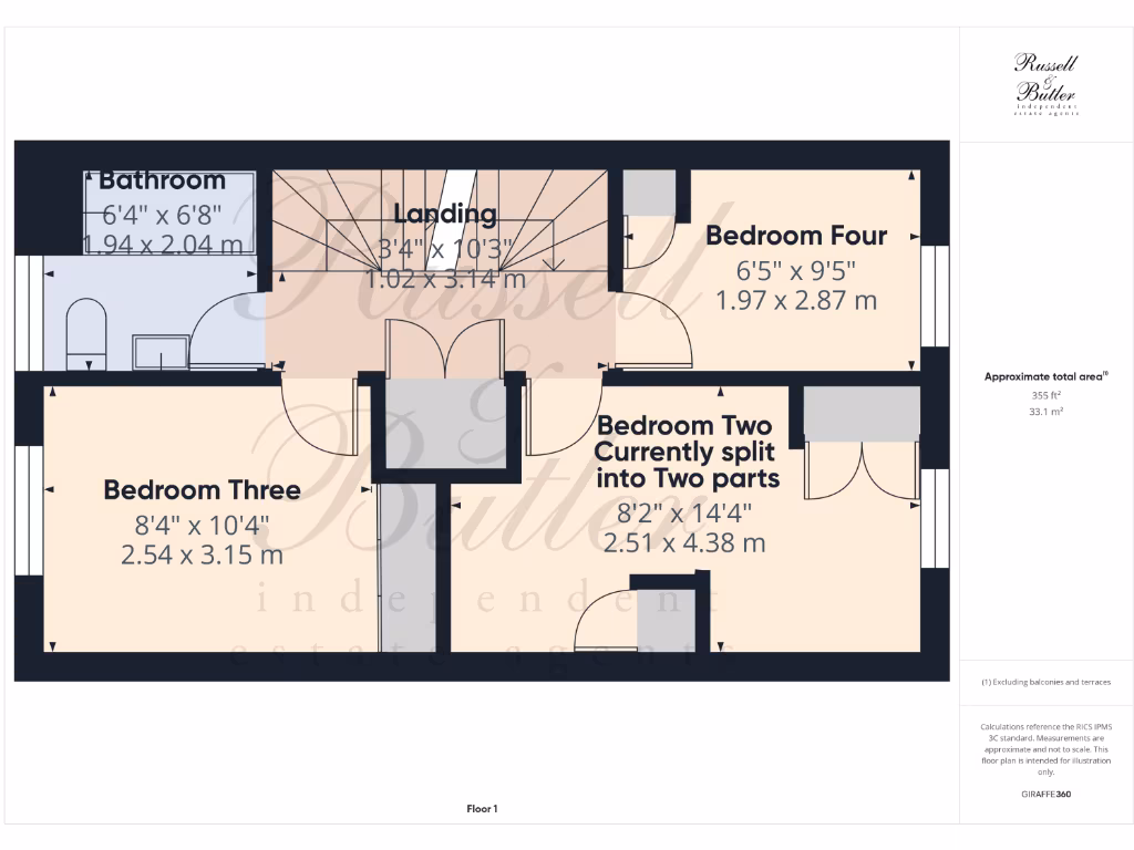
A well-arranged three-storey townhouse on Lace Hill, this four-bedroom semi-detached home suits a growing family needing good local schools and easy parking. The ground floor flows from an open-plan kitchen/diner into a sitting room, both with French doors to the garden, creating bright, practical living space for daily life and entertaining. The top-floor principal bedroom is spacious and benefits from built-in wardrobes and a double-width shower ensuite. A large garage and allocated driveway space are useful extras in this development.
The house is compact overall (approximately 899 sq ft) but cleverly laid out: bedroom two has been split into two areas to increase flexibility for study or storage. There is planning permission (approved June 2025) for a two-storey side extension, offering a straightforward route to add significant living space if required. EPC rating C and mains gas central heating provide reasonable running costs for the area.
Material drawbacks are straightforward: the plot and rear garden are small, so outdoor space is limited and front amenity is minimal. The property’s overall footprint is compact, so buyers seeking large rooms or extensive gardens will find this home constrained. Council tax sits in Band E, above average for the immediate area. The bedroom split may not suit those wanting four full-sized bedrooms without alteration.
Located within walking distance of Lace Hill Academy and the Royal Latin School and close to local amenities and playgrounds, this home offers convenience, good connectivity, and low local crime. Freehold tenure, no flood risk, fast broadband and excellent mobile signal make it practical for family life or a buy-to-let investor seeking a ready-made, adaptable property with permitted expansion potential.
3 bedroom semi-detached house for sale in Threads Lane, Buckingham, Buckinghamshire, MK18 — £375,000 • 3 bed • 2 bath • 1270 ft²
4 bedroom detached house for sale in Pillow Way, Buckingham, MK18 — £650,000 • 4 bed • 4 bath • 1740 ft²
3 bedroom semi-detached house for sale in Catchpin Street, Buckingham, MK18 — £369,995 • 3 bed • 2 bath • 1093 ft²
4 bedroom detached house for sale in Spindle Mews, Buckingham, MK18 — £520,000 • 4 bed • 2 bath • 1339 ft²
4 bedroom town house for sale in Bernardines Way, Buckingham, Buckinghamshire, MK18 — £489,995 • 4 bed • 3 bath • 1549 ft²
3 bedroom semi-detached house for sale in Pillow Way, Buckingham, MK18 — £355,000 • 3 bed • 2 bath • 890 ft²






















































































































































