Bright, modern living close to East Croydon station and transport links.
Chain-free split-level two-bedroom apartment, ready to move into
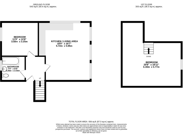
This split-level two-bedroom apartment on Lower Addiscombe Road offers a bright, modern living space ideal for first-time buyers seeking commuter convenience. The open-plan kitchen and reception benefits from large windows and hardwood floors, creating an easy-to-live-in home that’s ready to move into.
Practical features include double glazing, mains gas central heating, and a substantial upper-floor master bedroom that feels loft-like in scale. East Croydon station is about 0.5 miles away, putting central London within a 35-minute commute and making the flat a strong choice for professionals and commuters.
Be aware of a few material points: the tenure is not specified in the details provided, the bathroom is compact, and the local area records above-average crime levels — factors to check before purchase. The property dates from 1900–1929 with solid brick walls and internal insulation, so while it has period character it may show typical maintenance needs for an older building.
Overall, this chain-free apartment combines immediate usability with commuter appeal and potential long-term value. Viewings will suit anyone wanting an easy commute, good broadband and mobile connectivity, and a sizeable split-level layout in an inner-city location.
2 bedroom apartment for sale in Lower Addiscombe Road, Croydon, London, CR0 — £299,995 • 2 bed • 1 bath • 1035 ft²
2 bedroom apartment for sale in Ashburton Road, Addiscombe, CR0 — £280,000 • 2 bed • 1 bath • 486 ft²
2 bedroom apartment for sale in Clyde Road, Croydon, London, CR0 — £267,500 • 2 bed • 1 bath
2 bedroom apartment for sale in Furze Court, Ashburton Road, Croydon, CR0 — £265,000 • 2 bed • 1 bath • 663 ft²
2 bedroom apartment for sale in Thanet House, Coombe Road, Central Croydon, South Croydon, CR0 — £275,000 • 2 bed • 1 bath • 750 ft²
3 bedroom flat for sale in Lower Addiscombe Road, Croydon, Surrey, CR0 — £350,000 • 3 bed • 1 bath • 955 ft²






































