Spacious five-bedroom property on a secluded half-acre plot near excellent schools.
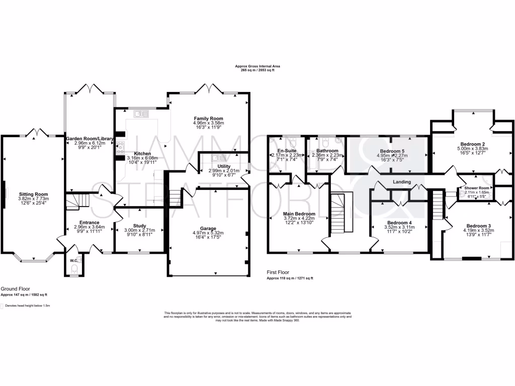
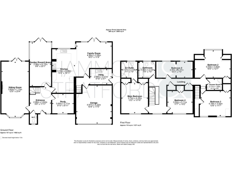
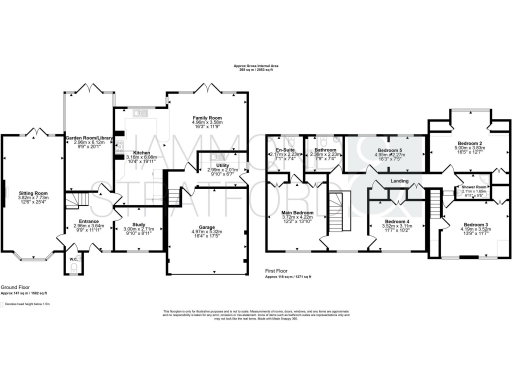
Over 2,500 sq ft of extended living space
Set well back down a private lane, this extended detached house offers more than 2,500 sq ft of flexible family accommodation on about 0.6 acres. The ground floor layout centres on an impressive kitchen/family room with garden views and French doors to a terrace, plus a dual-aspect sitting room with a central wood burner for year-round comfort. Four additional reception spaces include a study and a versatile garden room/library, giving plenty of scope for home working, play and entertaining.
Upstairs are five good-sized bedrooms, including a 13'10" principal with built-in wardrobes and an en-suite, alongside a separate shower room and family bathroom. Practical features include a utility with internal access to a double garage (electric door, power and light) and a substantial driveway providing multiple off-road parking spaces.
The landscaped grounds are a standout: expansive lawns, mature trees, fruiting specimens, an ornamental pond, patios and a summerhouse provide private outdoor living and entertaining opportunities. The location balances seclusion with convenience — close to local shops, Waitrose, strong schooling options and straightforward access into Norwich and the A11.
Notable practical points: the property is in Council Tax Band G, so running costs will be higher than average. Broadband speeds are reported as average, which may be a consideration for heavy home users. There is no noted flood risk and crime levels are very low, but prospective buyers should verify services, measurements and any planning or conservation details independently.
5 bedroom detached house for sale in Off Newmarket Road, Norwich, NR4 — £1,000,000 • 5 bed • 1 bath
5 bedroom detached house for sale in Off Greenways, Eaton, NR4 — £475,000 • 5 bed • 3 bath • 1420 ft²
5 bedroom detached house for sale in Earlham Road, Norwich, NR4 — £575,000 • 5 bed • 4 bath • 2301 ft²
6 bedroom detached house for sale in Drayton High Road, Drayton, NR8 — £895,000 • 6 bed • 3 bath • 3551 ft²
5 bedroom detached house for sale in Branksome Road, Norwich, NR4 — £1,250,000 • 5 bed • 2 bath • 2138 ft²
4 bedroom detached house for sale in Cromer Road, Norwich, NR6 — £500,000 • 4 bed • 2 bath • 2569 ft²






































































































