Versatile 6-bed detached property with 2-bed annexe, indoor pool and expansive grounds..
Six-bedroom main residence plus self-contained two-bedroom annexe with separate meter
Indoor heated swimming pool with changing room; recently upgraded heating system
Gym/games room with bar, storage, covered hot tub and multiple outbuildings
Extensive, landscaped 0.7-acre grounds with gated in-and-out driveway and parking
Two electric vehicle charging points; useful utility room and substantial loft storage
Only two main-house bathrooms for six bedrooms; annexe has one shower room
Property dated to 1930s–1940s; cavity walls assumed uninsulated and may need upgrading
Indoor pool and timber pool-house require ongoing maintenance and running costs
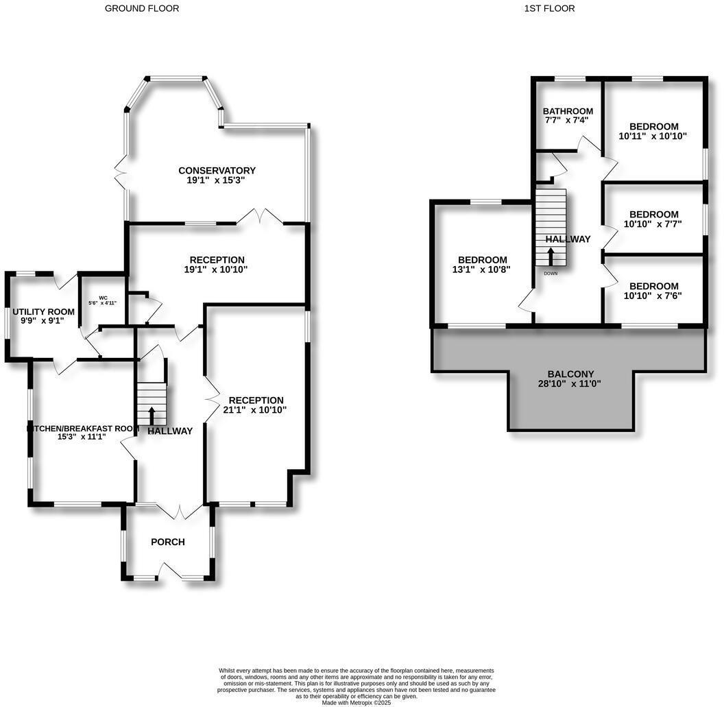
Norfolk House is a substantial detached home on a rare 0.7-acre plot, offering flexible accommodation for large families or multi-generational living. The main house provides four bedrooms, generous reception rooms and a large conservatory that opens onto a sun terrace and south-facing gardens. A fully self-contained two-bedroom annexe with its own electric meter and postal address adds rental or independent-living potential.
Leisure facilities are a clear strength: a heated indoor swimming pool with changing room and recently upgraded heating, a separate gym/games room with bar and storage, a covered hot-tub area and extensive grounds for outdoor recreation. Practical features include a gated in-and-out driveway, ample parking, two electric vehicle chargers and useful outbuildings.
Buyers should factor in maintenance and upgrading costs. The house dates from the 1930s–1940s with cavity walls assumed uninsulated; double glazing installation dates are unknown. The indoor pool and wooden-beam pool house will require ongoing servicing and running costs despite recent heating upgrades. The property has only two bathrooms for six bedrooms (plus annexe), which may be inconvenient for large households.
Located within protected Green Belt land near Basildon and Billericay, the setting is private and semi-rural but shown against an area with pockets of deprivation; nearby schools include highly rated primary and secondary options. This is a characterful, versatile country residence that will suit buyers seeking space, leisure facilities and annex income potential, while accepting the responsibilities of upkeep and possible modernisation.
4 bedroom detached house for sale in De Beauvoir Chase, Downham, Billericay, CM11 — £1,750,000 • 4 bed • 4 bath • 3687 ft²
5 bedroom detached house for sale in Bicknacre Road, Danbury, CM3 — £2,000,000 • 5 bed • 1 bath • 6754 ft²
4 bedroom detached house for sale in Fairview Road, Basildon, Essex, SS14 — £675,000 • 4 bed • 2 bath • 1875 ft²
6 bedroom detached house for sale in Ulting Road, Hatfield Peverel, CM3 — £2,250,000 • 6 bed • 3 bath • 7000 ft²
6 bedroom detached house for sale in Pierce Williams, Hatfield Broad Oak, Bishop's Stortford, Essex, CM22 — £2,250,000 • 6 bed • 1 bath • 8000 ft²
4 bedroom detached house for sale in Acorn Avenue, Braintree, CM7 — £1,150,000 • 4 bed • 2 bath • 2223 ft²


















































































































































































