Large plot with outline planning — ideal for builders or rental investors.
- 1.47 acre plot (stms) offering substantial development potential
- Outline planning submitted for two self‑build dwellings (2025/0606)
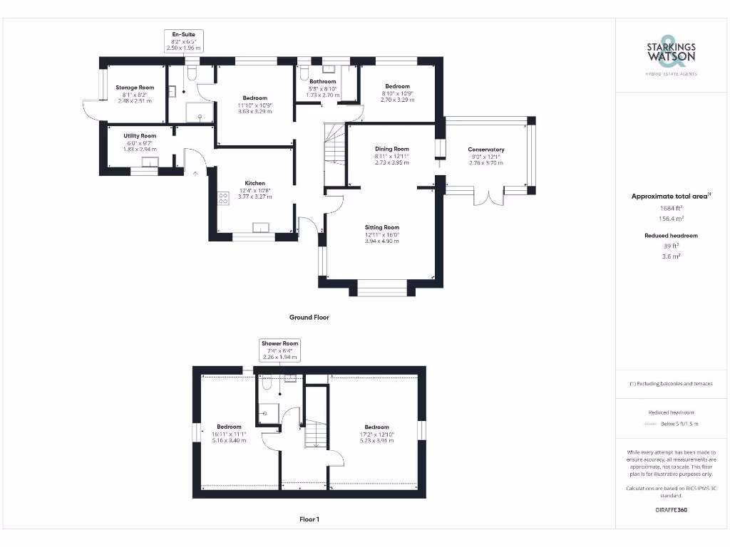
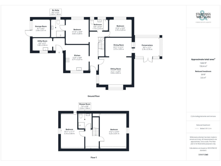
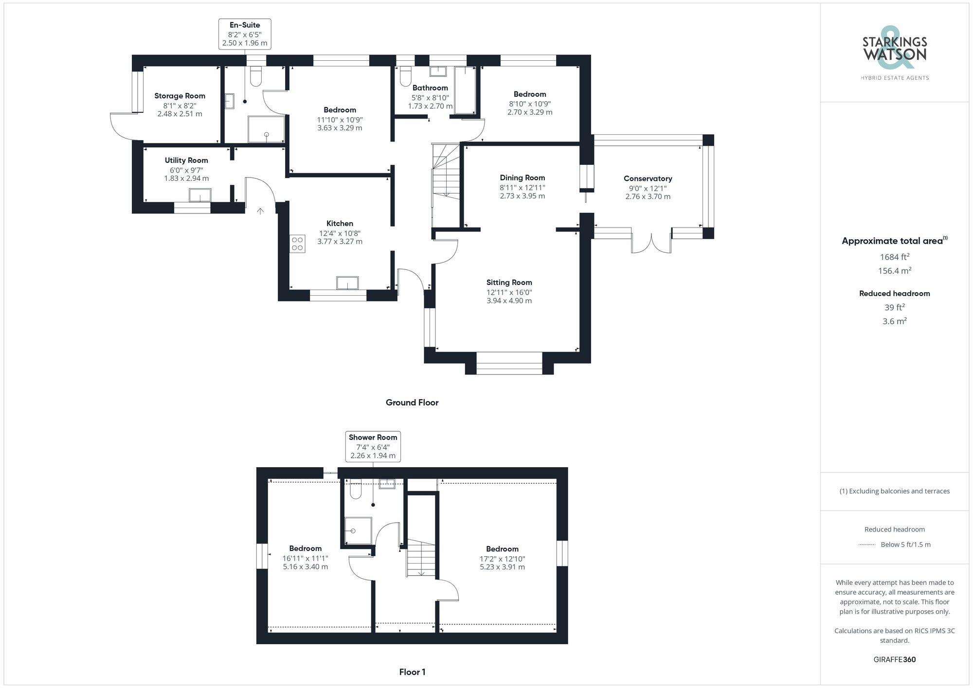
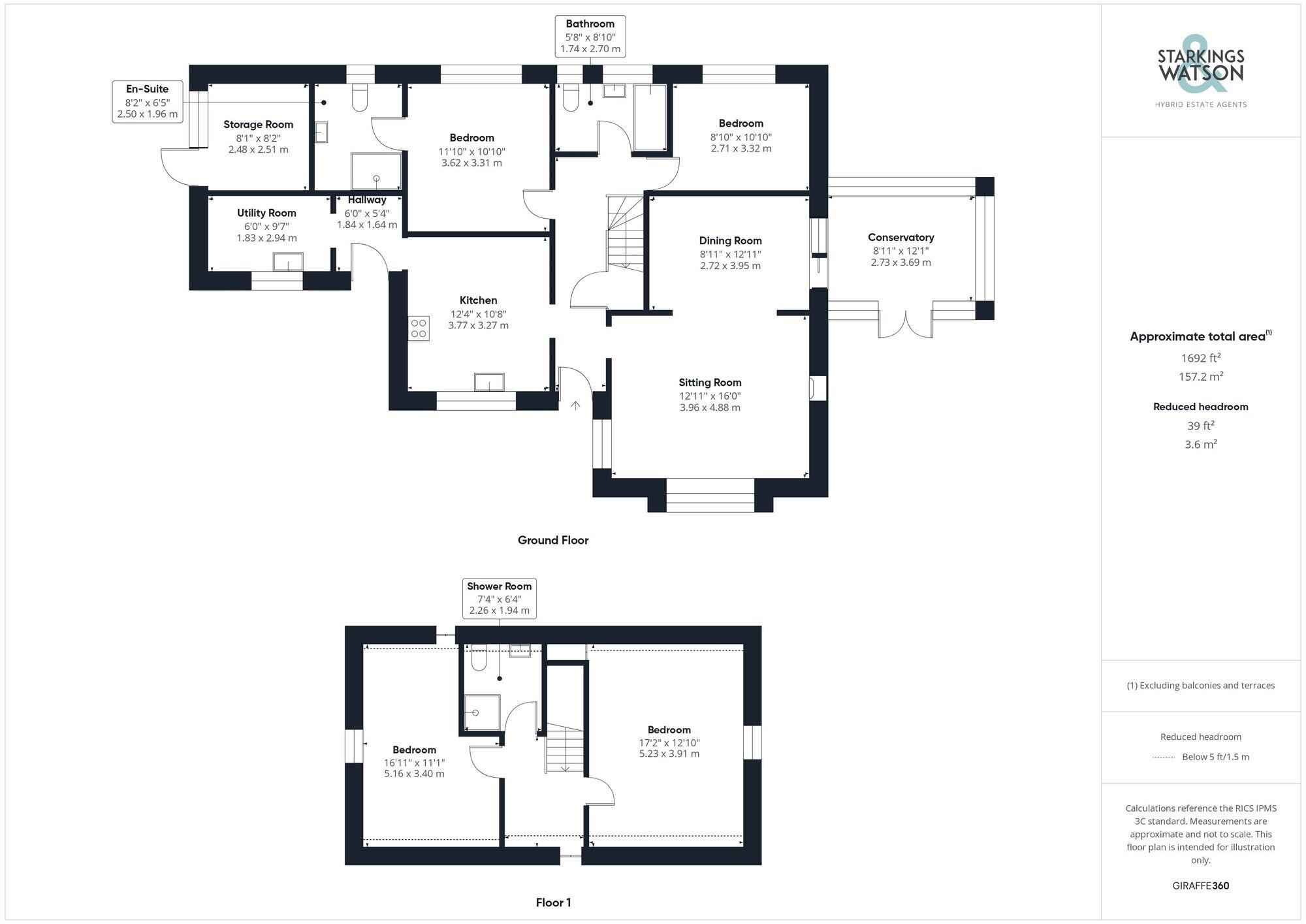
- Detached chalet approx 1,683 sq ft with three reception rooms
- Four bedrooms, ground floor bathroom, ensuite and first floor shower
- Rural field views and multiple patio areas for outdoor living
- Heating by bottled LPG; boiler and radiators in place
- Solid brick walls likely uninsulated (assumed) — retrofit needed
- No mobile signal on site; council tax classed as expensive
Set on about 1.47 acres (stms) on the edge of Moulton St. Mary, this spacious chalet offers clear development and income potential. The existing home extends to approximately 1,683 sq ft (stms) with three reception rooms, four bedrooms and a mix of ground-floor and first-floor bathrooms. An outline planning application (2025/0606) has been submitted for two detached self‑build plots — buyers should note this is outline only, with all matters reserved except access.
For an investor or self-builder the site is the primary asset: expansive gardens, separate parking/yard areas and rural field views create space for new dwellings, ancillary buildings or holiday lets (subject to planning). The chalet itself is habitable and offers immediate letting or rental income while longer-term planning is resolved. Off‑street parking and multiple patio areas add to the property’s usability.
Buyers should be aware of several practical considerations. Heating is by bottled LPG with a boiler and radiators; mains mobile signal is reported as none. The property is of solid brick construction likely without wall insulation (assumed), and it carries an EPC rating of D. Council tax is noted as expensive. The planning application is referenced 2025/0606 and is outline only — approval is not guaranteed and reserved matters will be required.
This property suits purchasers seeking a rural redevelopment opportunity or those wanting a roomy countryside home with future plot potential. Viewings are recommended for anyone considering either short-term occupation with rental potential or a longer-term development project; professional surveys are advised to confirm construction, services and planning prospects.
5 bedroom bungalow for sale in The Street, Haddiscoe, Norwich, NR14 — £425,000 • 5 bed • 2 bath • 1204 ft²
3 bedroom chalet for sale in Middle Road, Great Plumstead, Norwich, NR13 — £515,000 • 3 bed • 2 bath • 1576 ft²
Land for sale in Fakenham Road, Morton on the Hill, NR9 — £350,000 • 1 bed • 1 bath • 1639 ft²
3 bedroom detached house for sale in Ranworth Road, South Walsham, Norwich, NR13 — £299,000 • 3 bed • 1 bath • 807 ft²
4 bedroom detached house for sale in Green Lane East, Rackheath, Norwich, NR13 — £475,000 • 4 bed • 2 bath • 1630 ft²
3 bedroom detached bungalow for sale in Old Road, Acle, Norwich, NR13 — £405,000 • 3 bed • 1 bath • 1038 ft²






















































































































































































