**Standout Features:**
- Spacious upper maisonette within a Grade I Listed Georgian Town House
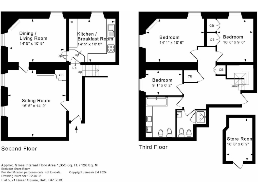
- Over 1,355 square feet of living space
- Three generous bedrooms, large sitting room, and a separate dining/living room
- Modern kitchen and two bathrooms, including a separate shower room
- Beautifully landscaped surroundings with an open outlook
- Chain-free and permit parking available
**Potential Downsides:**
- Listed status limits renovation potential
- Higher service charge of £3,000 per annum
- High local crime rate in the area
Discover urban living at its finest in this elegant upper maisonette nestled within a historic Georgian town house in Queen Square, Bath. Spanning over 1,355 square feet, this spacious residence offers an inviting layout, featuring three well-sized bedrooms, a bright sitting room, and a generous dining/living area accentuated by large windows that bathe the space in natural light. The modern kitchen and two bathrooms provide the convenience families or guests seek, while a basement store room adds to the practicality.
Enjoy the exclusivity of living in the heart of Bath, with access to a plethora of local shops, restaurants, and the serene Royal Victoria Park just steps away. Ideal for families, this property combines classic charm with contemporary needs, all while being chain-free for a swift move. However, as a Listed property, the potential for renovations is limited, and it's essential to consider the higher service charge. With a desirable location and open outlook, this maisonette invites you to envision a comfortable lifestyle amidst Bath's vibrant community. Don’t miss out—properties like this, combining character with modern living, are rare and may not be available for long!



































































