### Key Features:
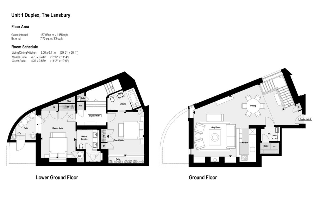
- **Spacious Apartment**: 1,485 sq ft with 2 bedrooms, 3 bathrooms.
- **Modern Design**: High-end finishes and contemporary style throughout.
- **Prime Location**: Knightsbridge, with easy access to luxury dining and shopping.
- **Natural Light**: Large windows enhance the bright, welcoming atmosphere.
- **Amenities Nearby**: Close to various shops, restaurants, and transport options.
### Property Summary:
Discover this exceptional two-bedroom apartment, perfectly nestled in the prestigious Knightsbridge area, renowned for its upscale lifestyle. Spanning 1,485 sq ft, the apartment features an open-plan living space adorned with modern luxury finishes and plush seating, complemented by a stylish, fully equipped kitchen with quartz countertops and integrated appliances. The contemporary design is accentuated by triple glazing and underfloor heating, ensuring both comfort and energy efficiency.
This residence provides not only sophistication but also functionality, making it ideal for entertaining or enjoying a serene evening at home. While situated in an affluent area, be aware that the local crime rate is high, which may require consideration for security. The vibrant neighborhood offers myriad amenities, including trendy restaurants, fitness centers, and comprehensive public transport, catering to a cosmopolitan lifestyle.
With its combination of luxury and practicality, this property presents a unique opportunity for discerning buyers seeking a home in one of London's most coveted locales. Don’t miss out on making this stylish apartment your new sanctuary in Knightsbridge!
3 bedroom flat for sale in Basil Mansions, Basil Street, Knightsbridge, London, SW3, United Kingdom, SW3 — £5,250,000 • 3 bed • 3 bath • 2437 ft²
2 bedroom apartment for sale in Basil Street, Knightsbridge, SW3 — £1,750,000 • 2 bed • 2 bath • 1031 ft²
3 bedroom flat for sale in Cadogan Gardens, Knightsbridge, London, SW3, United Kingdom, SW3 — £5,850,000 • 3 bed • 3 bath • 1823 ft²
3 bedroom flat for sale in Lancelot Place, London, SW7 — £7,500,000 • 3 bed • 3 bath • 2731 ft²
3 bedroom apartment for sale in The Knightsbridge Apartments, Knightsbridge, London, SW7, United Kingdom, SW7 — £7,500,000 • 3 bed • 3 bath • 2013 ft²
3 bedroom apartment for sale in Lowndes Square, SW1X — £5,950,000 • 3 bed • 4 bath • 2354 ft²


















































































